6 900 000 Р 88 650 $ или 75 920

Информация о квартире

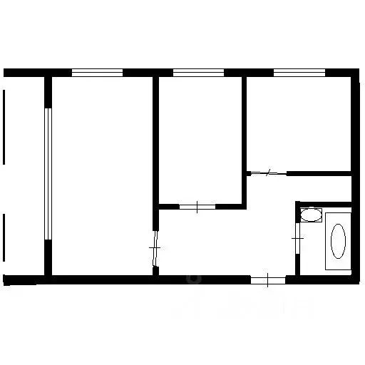
75 м2
Площадь
12 м2
Кухня
2
Комнаты
10
Этаж
15
Этажность
Развернуть
Агент
+7 (919) 943-03-17
Начать чат с агентом

2-к кв. Тюменская область, Тюмень Широтная ул., 189к1 (75.9 м)

Продается современная 2-комнатная квартира в кирпичном доме. Общие сведенияПлощадь: 75,9 м Расположение: 10 этаж, монолитно-кирпичный дом 2012 года район: Восточный-2, Тюмень Планировка и ремонтПросторная и светлая квартира с полностью изолированными комнатами. Удобная кухня 12,56 м.Раздельный санузел для максимального удобстваВысота потолков — 2,55 метра, создающая ощущение простораЕсть застекленный балкон для отдыха или хранения КоммуникацииНадежные системы водоснабжения с счетчиками водыЭлектропроводка и инженерные сети — современная и исправная Безопасность и комфортНадежные входные двери, домофонВ подъезде есть грузовой и пассажирский лифты Местоположение и инфраструктураВ пешей доступности: школа 65 видна из окна, до нее можно дойти без пересечения дорог через двор, детские сады, магазины, аптеки, торгово-развлекательные центры (ОКей)Развитая транспортная сеть для комфортных поездок по городуНаземная парковка, охраняемая и оборудованная для легкого доступа Особенности жилого комплексаСовременная архитектура и качественное строительствоХорошая звукоизоляция и теплоизоляцияТихий и безопасный двор с зонами отдыха Готовность к заселениюКвартира готова Можно заехать и начать жить сразу Не упустите шанс стать обладателем современного жилья в одном из лучших районов Тюмени Звоните сейчас, чтобы организовать просмотр и узнать подробнее. Ваша новая уютная квартира уже ждет вас МЫ ГАРАНТИРУЕМ ФИНАНСОВУЮ БЕЗОПАСНОСТЬ ДЛЯ НАШИХ КЛИЕНТОВ.Код пользователя: 86842Номер в базе:

Читать полностью

    Для того, чтобы купить двухкомнатную квартиру по адресу: Тюмень, ул. Широтная, 189к1, позвоните по телефону +7 (919) 943-03-17. Торопитесь! Объявление №30093359874 о продаже двухкомнатной квартиры опубликовано 2 дня назад.

    Позвонить Написать
    6 900 000 Р88 650 $ или 75 920
    Агент
    +7 (919) 943-03-17
    Начать чат с агентом
    Похожие предложения
    3-к кв. Тюменская область, Тюмень Широтная ул., 104к1 (91.1 м) - Фото 1
    3-к кв. Тюменская область, Тюмень Широтная ул., 104к1 (91.1 м) - Фото 2
    3-комнатная квартира, общая площадь 91м², кухня 13м²

    Продается просторная трехкомнатная квартира, расположенная в одном из самых удобных для проживания районов города, рядом такие объекты социальной инфраструктуры как новая средняя школа 92, детский сад ТРЦ Клен, в шаговой доступности ТРЦ Матрешка, очень...
    • 91 м²
    • 3-ком
    • 4/9 эт.
    • панельный
    6 850 000 Р
    Агент
    +7 (912) Показать номер
    Посмотреть контакты
    3-к кв. Тюменская область, Тюмень Широтная ул., 171к6 (91.3 м) - Фото 1
    3-к кв. Тюменская область, Тюмень Широтная ул., 171к6 (91.3 м) - Фото 2
    3-комнатная квартира, общая площадь 91м², кухня 14м²

    3-комнатная квартира, в которую можно сразу же въехать без дополнительных вложений. Особенности квартиры:• Трёхстворчатые окна обеспечивают отличное освещение и уют.• Балкон остеклен. Инфраструктура:Придомовая территория оборудована парковочными местами...
    • 91 м²
    • 3-ком
    • 1/10 эт.
    • панельный
    6 830 822 Р
    Агент
    +7 (912) Показать номер
    Посмотреть контакты
    1-к кв. Тюменская область, Тюмень Широтная ул., 209к1 (40.0 м) - Фото 1
    1-к кв. Тюменская область, Тюмень Широтная ул., 209к1 (40.0 м) - Фото 2
    1-комнатная квартира, общая площадь 40м², кухня 14м²

    Продается квартира в современном кирпичном доме с закрытой охраняемой территорией и просторной парковкой. Объект расположен в районе с развитой инфраструктурой: в пешей доступности находятся детские сады, школы, а также крупные торговые центры, включая...
    • 40 м²
    • 1-ком
    • 10/16 эт.
    • кирпичный
    6 800 000 Р
    Агент
    +7 (982) Показать номер
    Посмотреть контакты
    1-к кв. Тюменская область, Тюмень Широтная ул., 83ак1 (47.9 м) - Фото 1
    1-к кв. Тюменская область, Тюмень Широтная ул., 83ак1 (47.9 м) - Фото 2
    1-комнатная квартира, общая площадь 47м², кухня 12м²

    Квартира с панорамным видом на тихий зеленый парк и архитектурную доминанту района — историческую церковь. Окна выходят на спокойную, озелененную территорию, что обеспечивает приватность и круглогодичный контакт с природой. Объект расположен в развитом...
    • 47 м²
    • 1-ком
    • 6/10 эт.
    • кирпичный
    6 950 000 Р
    Агент
    +7 (919) Показать номер
    Посмотреть контакты
    2-к кв. Тюменская область, Тюмень Широтная ул., 130 (63.9 м) - Фото 1
    2-к кв. Тюменская область, Тюмень Широтная ул., 130 (63.9 м) - Фото 2
    2-комнатная квартира, общая площадь 63м², жилая 45м², кухня 13м²

    Продается отличная 2-комнатная квартира в Тюмени с отличным расположением Общая площадь — 64 кв.м, просторная кухня — 13 кв.м Квартира находится на 4 этаже 10-этажного дома 2005 года постройки. Высота потолков — 2.7 м.В квартире выполнен косметический...
    • 63 м²
    • 2-ком
    • 4/10 эт.
    • панельный
    6 850 000 Р
    Агент
    +7 (982) Показать номер
    Посмотреть контакты

    Не нашли подходящего объявления?

    Оставьте заявку, и наши риэлторы подберут квартиру в районе Тюмени

    (0)