Россия, Тюменская область, Тюмень, Судоремонтная улица, 28
10 000 000 Р 129 900 $ или 110 200

Информация о квартире

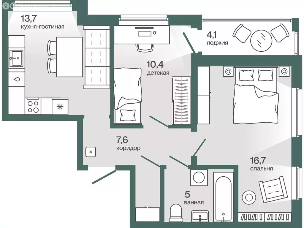
88 м2
Площадь
50 м2
Жилая
16 м2
Кухня
3
Комнаты
5
Этаж
10
Этажность
Развернуть
Агент
+7 (919) 951-57-38
Начать чат с агентом

3-комнатная квартира: Тюмень, микрорайон Мыс, Судоремонтная улица, 28 ...

Трехкомнатная квартира площадью 89,9 м расположена в зеленом районе города Мыс, в доме 2011 года постройки. Планировка продумана до мелочей: просторная кухня-гостиная 16,2 м объединена с зоной отдыха, три изолированные комнаты площадью 17,3 м, 16,7 м и 16,8 м обеспечивают приватность для всех членов семьи. Две спальни ориентированы на разные стороны света, что создает оптимальное естественное освещение и циркуляцию воздуха. Санузел раздельный, дополнительное удобство — большая гардеробная для хранения вещей. В квартире выполнен качественный современный ремонт с использованием практичных материалов. Район отличается развитой инфраструктурой и транспортной доступностью. В 100 метрах от дома расположена школа №48 (корпус 2), три детских сада находятся в шаговой доступности, что избавляет от необходимости ежедневных поездок. В пешей доступности — спортивные школы, бассейн, кружки и секции для детей. Для повседневных нужд вблизи работают торговые сети «Пятёрочка и «Монетка , а также ТЦ «Сити Молл . Любителям прогулок понравится близость Гагаринского парка и благоустроенных скверов с велодорожками. Дом расположен в экологически благоприятной зоне с минимальным уровнем шума. Район популярен среди семей с детьми благодаря безопасности, обилию зелени и продуманной инфраструктуре. Квартира подойдет как для постоянного проживания, так и для долгосрочных инвестиций — спрос на аренду в этом районе стабильно высокий. Техническое состояние дома отличное: современные инженерные коммуникации, ухоженная придомовая территория с парковочными местами. Для осмотра доступна в любое удобное время.Лот №1161288

Читать полностью

    Для того, чтобы купить трехкомнатную квартиру по адресу: Тюмень, Судоремонтная улица, 28, позвоните по телефону +7 (919) 951-57-38. Торопитесь! Объявление №30093378288 о продаже трехкомнатной квартиры опубликовано Вчера.

    Позвонить Написать
    10 000 000 Р129 900 $ или 110 200
    Агент
    +7 (919) 951-57-38
    Начать чат с агентом
    Похожие предложения
    2-комнатная квартира: Тюмень, улица Игоря Комиссарова, 28 (55.24 м) - Фото 1
    2-комнатная квартира: Тюмень, улица Игоря Комиссарова, 28 (55.24 м) - Фото 2
    2-комнатная квартира, общая площадь 55м², кухня 13м²

    Продается квартира в ЖК Эклипт
    • 55 м²
    • 2-ком
    • 4/4 эт.
    9 630 000 Р
    Агент
    +7 (961) Показать номер
    Посмотреть контакты
    5-комнатная квартира: Тюмень, улица Николая Чаплина, 123 (96.8 м) - Фото 1
    5-комнатная квартира: Тюмень, улица Николая Чаплина, 123 (96.8 м) - Фото 2
    5-комнатная квартира, общая площадь 96м², кухня 24м²

    Продается просторная 5-комнатная квартира с двумя лоджиями, в кирпичном доме. Окна выходят на две стороны. Кухня и гостиная гармонично объединены аркой, создавая идеальное пространство для общения: вы всегда останетесь в центре событий и сможете легко...
    • 96 м²
    • 5-ком
    • 3/9 эт.
    11 000 000 Р
    Агент
    +7 (961) Показать номер
    Посмотреть контакты
    3-к кв. Тюменская область, Тюмень ул. Фармана Салманова, 26 (69.8 м) - Фото 1
    3-к кв. Тюменская область, Тюмень ул. Фармана Салманова, 26 (69.8 м) - Фото 2
    3-комнатная квартира, общая площадь 69м², кухня 18м²

    Продается уютная трехкомнатная квартира в жилом комплексе Преображенский с прекрасным видом на город. Квартира расположена на высоком этаже, что позволяет наслаждаться панорамными видами и обилием света. Площадь квартиры составляет 69,8 квадратных...
    • 69 м²
    • 3-ком
    • 14/18 эт.
    • монолит
    10 500 000 Р
    Агент
    +7 (982) Показать номер
    Посмотреть контакты
    3-к кв. Тюменская область, Тюмень Комбинатская ул., 54к1 (96.0 м) - Фото 1
    3-к кв. Тюменская область, Тюмень Комбинатская ул., 54к1 (96.0 м) - Фото 2
    3-комнатная квартира, общая площадь 96м², кухня 23м²

    Уважаемые покупатели Шикарное предложение в новом КИРПИЧНОМ доме в районе Дома Обороны Заключительный самый комфортный, особенный дом ЖК Олимпия Предлагаем Вашему вниманию квартиру удобного и востребованного формата 3+ в мега-популярном жилом комплексе...
    • 96 м²
    • 3-ком
    • 1/16 эт.
    • кирпичный
    10 500 000 Р
    Агент
    +7 (982) Показать номер
    Посмотреть контакты
    2-к кв. Тюменская область, Тюмень ул. Михаила Сперанского, 17 (56.9 м) - Фото 1
    2-к кв. Тюменская область, Тюмень ул. Михаила Сперанского, 17 (56.9 м) - Фото 2
    2-комнатная квартира, общая площадь 56м², кухня 10м²

    Чистая сделка. Продается 2-комнатная квартира площадью 56,9 кв.м.Никаких обременений, занижений, детских долей. Все, что видите на фото - остается.О доме: Монолитно-кирпичный. Современный чистый и светлый подъезд. Безопасный и уютный район для комфортного...
    • 56 м²
    • 2-ком
    • 7/16 эт.
    10 000 000 Р
    Агент
    +7 (982) Показать номер
    Посмотреть контакты

    Не нашли подходящего объявления?

    Оставьте заявку, и наши риэлторы подберут квартиру в районе Тюмени

    (0)