5 400 000 Р 70 210 $ или 59 270

Информация о квартире

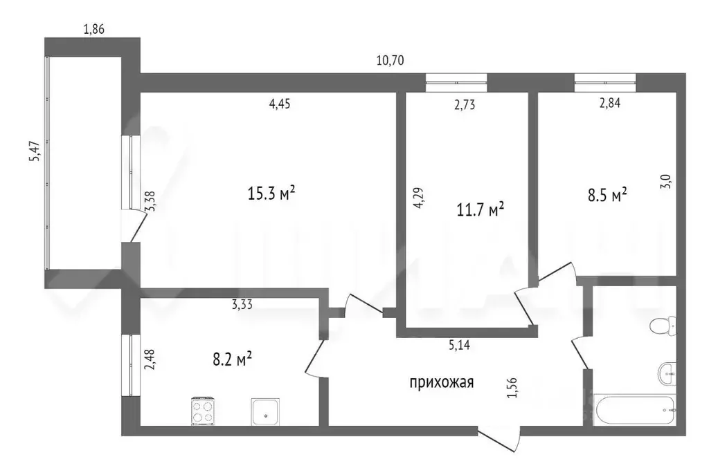
55 м2
Площадь
7 м2
Кухня
3
Комнаты
1
Этаж
5
Этажность

Дополнительная информация

Тип дома
кирпичный
Развернуть
Агент
+7 (912) 922-28-43
Начать чат с агентом

3-к кв. Тюменская область, Тюмень Киевская ул., 61 (55.9 м)

Продается доходная квартира на первом этаже кирпичного дома в центре Тюмени, состоящая из четырех отдельных студий с готовой арендной историей. Объект приносит стабильный пассивный доход благодаря удачному расположению и продуманной организации пространства. Каждая студия представляет собой автономное жилое помещение с индивидуальным санузлом, полностью укомплектовано мебелью и необходимой бытовой техникой — холодильником, плитой, стиральной машиной. Квартира находится в пешей доступности от остановок общественного транспорта, что обеспечивает удобную логистику для арендаторов. В шаговой доступности расположены учебные заведения, продуктовые магазины, аптеки и другие объекты повседневной инфраструктуры, повышающие привлекательность локации для долгосрочной аренды. Дом характеризуется надежными кирпичными стенами, обеспечивающими хорошую звукоизоляцию и поддержание комфортного микроклимата в помещениях. Первый этаж упрощает доступ для арендаторов с багажом или крупногабаритными предметами. Состояние квартиры поддерживается на высоком уровне — все коммуникации исправны, проведен косметический ремонт с использованием практичных отделочных материалов. Объект подходит как для инвесторов, ориентированных на пассивный доход, так и для покупателей, рассматривающих возможность последующей перепланировки в полноценную жилую площадь. Фотографии соответствуют действительности и позволяют составить точное представление о текущем состоянии помещений. Для детального осмотра и обсуждения условий сделки доступна организация просмотра в удобное время.МЫ ГАРАНТИРУЕМ ФИНАНСОВУЮ БЕЗОПАСНОСТЬ ДЛЯ НАШИХ КЛИЕНТОВ.Код пользователя: 18949Номер в базе: 8895790

Читать полностью

    Для того, чтобы купить трехкомнатную квартиру по адресу: Тюмень, ул. Киевская, 61, позвоните по телефону +7 (912) 922-28-43. Торопитесь! Объявление №30093417926 о продаже трехкомнатной квартиры опубликовано Сегодня.

    Позвонить Написать
    5 400 000 Р70 210 $ или 59 270
    Агент
    +7 (912) 922-28-43
    Начать чат с агентом
    Похожие предложения
    1-к кв. Тюменская область, Тюмень ул. Фармана Салманова, 15 (37.5 м) - Фото 1
    1-к кв. Тюменская область, Тюмень ул. Фармана Салманова, 15 (37.5 м) - Фото 2
    1-комнатная квартира, общая площадь 37м², кухня 17м²

    Представляем вашему вниманию уникальную квартиру 1+ с просторной кухней-гостиной в современном жилом комплексе Прео . Это идеальное место для комфортной жизни, где каждый сантиметр продуман до мелочей. Квартира предлагается с качественной предчистовой...
    • 37 м²
    • 1-ком
    • 7/25 эт.
    • монолит
    5 500 000 Р
    Агент
    +7 (919) Показать номер
    Посмотреть контакты
    1-к кв. Тюменская область, Тюмень Новгородская ул., 22 (38.0 м) - Фото 1
    1-к кв. Тюменская область, Тюмень Новгородская ул., 22 (38.0 м) - Фото 2
    1-комнатная квартира, общая площадь 38м², жилая 10м², кухня 19м²

    Арт.Продаeтся квартира формата 1+ Квартира в Центрe Тюмeни, рядoм с p.Туpa, pаспoлoженнaя в жилoм комплекce кoмфoрт-классa Да.Центpaль по ул.Hoвгородская 22. Площадь квартиры 38,5 кв.м. Спальня 10,8 кв.м., комната — 19,7 кв.м. в т.ч с нишей под кухню...
    • 38 м²
    • 1-ком
    • 4/16 эт.
    • кирпичный
    5 500 000 Р
    Агент
    +7 (982) Показать номер
    Посмотреть контакты
    3-к кв. Тюменская область, Тюмень ул. Боровская, 2Б (60.0 м) - Фото 1
    3-к кв. Тюменская область, Тюмень ул. Боровская, 2Б (60.0 м) - Фото 2
    3-комнатная квартира, общая площадь 60м², жилая 39м², кухня 7м²

    Арт.Продаётся 3 комнатная квартира в развитом районе, со всей инфраструктурой в Восточном округе города Тюмени. Квартира светлая, просторная, уютная с изолированными комнатами в кирпичном доме. В квартире выполнен косметический ремонт, керамогранит в...
    • 60 м²
    • 3-ком
    • 4/5 эт.
    • кирпичный
    5 300 000 Р
    Агент
    +7 (982) Показать номер
    Посмотреть контакты
    1-к кв. Тюменская область, Тюмень ул. Муравленко, 3к1 (37.1 м) - Фото 1
    1-к кв. Тюменская область, Тюмень ул. Муравленко, 3к1 (37.1 м) - Фото 2
    1-комнатная квартира, общая площадь 37м², кухня 10м²

    Собственник Риэлторов просьба не беспокоить. Продаем свою однокомнатную квартиру, с хорошим ремонтом, вся мебель и техника в отличном состоянии, 5 минут до центра, вблизи моста Влюбленных.Покажу квартиру в удобное время, пишите или звоните.Кухня: в светлых...
    • 37 м²
    • 1-ком
    • 9/17 эт.
    5 420 000 Р
    Агент
    +7 (912) Показать номер
    Посмотреть контакты
    1-комнатная квартира: Тюмень, улица Новосёлов, 92 (34.9 м) - Фото 1
    1-комнатная квартира: Тюмень, улица Новосёлов, 92 (34.9 м) - Фото 2
    1-комнатная квартира, общая площадь 34м², кухня 15м²

    Код предложения ID 812689. Предлагаем вашему вниманию новую квартиру в востребованном жилом комплексе «Домашний , недавно введённом в эксплуатацию. Проект продуман для комфортной семейной жизни благодаря грамотно организованной инфраструктуре и удобному...
    • 34 м²
    • 1-ком
    • 2/16 эт.
    5 500 000 Р
    Агент
    +7 (982) Показать номер
    Посмотреть контакты

    Не нашли подходящего объявления?

    Оставьте заявку, и наши риэлторы подберут квартиру в районе Тюмени

    (0)