Россия, Тюменская область, Тюмень, улица Александра Звягина, 10

Реализация объекта недвижимости приостановлена

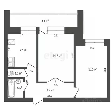
Информация о квартире

35.0 м2
Площадь
30.0 м2
Жилая
5.0 м2
Кухня
1
Комната
2
Этаж
4
Этажность
Развернуть

1-комнатная квартира: Тюмень, улица Александра Звягина, 10 (35.2 м)

Эта квартира идеально подойдет тем, кто ценит комфорт и уют. Ремонт выполнен в благородных, сдержанных тонах, создающих атмосферу спокойствия и стиля. При входе справа вас встречает пространство под гардеробную, далее просторная кухня гостиная, где вы можете собираться по вечерам для просмотра телевизора, вся техника и мебели которую вы видете на фото остается по продаже этой квартиры . В спальне есть выход на просторную теплую лоджию— идеальное место для утреннего кофе.Расположение квартиры в тихом зеленом районе всего в 10 минутах езды от центра города обеспечивает отличную транспортную доступность, включая регулярное автобусное сообщение. Вы будете наслаждаться тишиной и спокойствием, не теряя при этом связи с городской жизнью.Инфраструктура комплекса полностью сформирована и предлагает все необходимое для комфортной жизни: на первых этажах расположены магазины, аптека, пекарня, кондитерская и салон красоты. Для семей с детьми предусмотрен собственный детский сад, что делает жизнь еще более удобной.Особая гордость комплекса — благоустроенная территория. Прогулочные аллеи, спортивная зона и пруд с лебедями создают уникальную атмосферу для отдыха и активного времяпрепровождения. Профессиональный уход за территорией обеспечивает её безупречный вид в любое время года.Комплекс застроен таунхаусами и четырехэтажными домами, создавая камерную и спокойную атмосферу для жизни. Не упустите возможность стать обладателем этой уютной квартиры — готовое решение для комфортного проживания с продуманной средой и развитой инфраструктурой ждет вас Записывайтесь на просмотр уже сегодня МЫ ГАРАНТИРУЕМ ФИНАНСОВУЮ БЕЗОПАСНОСТЬ ДЛЯ НАШИХ КЛИЕНТОВ.Код пользователя: 176569Номер в базе:

Читать полностью

    Реализация объекта недвижимости приостановлена

    Не нашли подходящего объявления?

    Оставьте заявку, и наши риэлторы подберут квартиру в районе Тюмени

    (0)