Россия, Тюменская область, Тюмень, ул. Героев Сталинградской битвы, 5к1

Реализация объекта недвижимости приостановлена

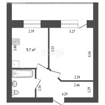
Информация о квартире

44.0 м2
Площадь
12.0 м2
Жилая
20.0 м2
Кухня
1
Комната
7
Этаж
11
Этажность

Дополнительная информация

Тип дома
монолит
Развернуть

1-к кв. Тюменская область, Тюмень ул. Героев Сталинградской битвы, 5к1 ...

Продается великолепная квартира формата 1+ в престижном доме Delux, которая станет вашим идеальным уголком для жизни Эта квартира с самой функциональной планировкой порадует вас просторной кухней-гостиной площадью 19,8 кв.м., где вы сможете проводить время с семьей и друзьями. Уютная спальня площадью 12,5 кв.м. обеспечит вам комфортный отдых, а гардеробная площадью 3,76 кв.м. поможет организовать ваше пространство. Лоджия с витражным остеклением площадью 4,7 кв.м. подарит вам возможность наслаждаться утренним кофе с видом на благоустроенный двор. Просторный санузел и прихожая с нишей под шкаф-купе добавляют удобства в повседневной жизни. Высота потолков 2,7 м создает ощущение простора и свободы. В квартире установлены счетчики холодной и горячей воды, а также счетчики тепла, что позволит вам контролировать расходы. Также предусмотрен домофон и возможность подключения телеметрии для вашего удобства.Закрытый двор обеспечит вам безопасность и спокойствие. Для вашего удобства предусмотрен наземный паркинг, в подъезде есть колясочная. Расположение дома просто великолепное: рядом река, озеро Круглое и живописный лесопарк имени Гагарина, где вы сможете наслаждаться прогулками на свежем воздухе. Благоустройство двора выполнено с акцентом на интеграцию с природным ландшафтом, а современные детские площадки, изготовленные из экологически чистых материалов, порадуют ваших детей.В шаговой доступности находятся школа 48 с двумя корпусами и три детских сада, что делает это место идеальным для семей с детьми. Не упустите возможность стать владельцем этой замечательной квартиры Мы поможем вам с оформлением ипотеки. Звоните прямо сейчас и запишитесь на просмотр Ваш новый дом ждет вас МЫ ГАРАНТИРУЕМ ФИНАНСОВУЮ БЕЗОПАСНОСТЬ ДЛЯ НАШИХ КЛИЕНТОВ.Код пользователя: 907Номер в базе: 1405861

Читать полностью

    Реализация объекта недвижимости приостановлена

    Не нашли подходящего объявления?

    Оставьте заявку, и наши риэлторы подберут квартиру в районе Тюмени

    (0)