Россия, Тюменская область, Тюмень, ул. Павла Шарова, 25

Реализация объекта недвижимости приостановлена

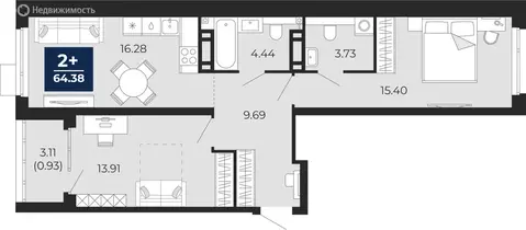
Информация о квартире

67.0 м2
Площадь
17.0 м2
Кухня
2
Комнаты
13
Этаж
14
Этажность

Дополнительная информация

Тип дома
панельный
Развернуть

2-к кв. Тюменская область, Тюмень ул. Павла Шарова, 25 (67.4 м)

Продается новая квартира с дизайнерским ремонтом ПРОСТОРНАЯ И СТИЛЬНАЯ КВАРТИРА 2 (кухня-гостиная и две изолированные комнаты). В квартире никто не жил, все новое.Особенности квартиры:- ОБСАЛЮТНО ВСЕ НОВОЕ, НА ГОРАНТИИ- Современный ремонт в спокойных тонах- Полная готовность к проживанию: мебель и техника остаются новым покупателям- Две изолированные комнаты, одна с просторной гардеробной- Раздельный санузел- Встроенные шкафы-купе - Встроенные бытовые приборы: холодильник, варочная панель, духовой шкаф, посудомоечная машина, микроволновка, вытяжка, кондиционер, эл. полотенцесушитель- Натяжные потолки с разноуровневым освещением- Межкомнатные двери с магнитными замками- Ламинат и керамогранит в х и санузле- Теплые полы в коридоре и санузлеПреимущества:- Гарантия на ремонт, мебель и технику- Идеальное местоположение: в 5 минутах новая школа, детские сады, банный комплекс Биография , стоматология, - Развитая соц. инфраструктура: сетевые магазины, кофейни, аптеки, пункты выдачи- Отличная транспортная доступность: до центра города 15-20 минут на автомобилеОдин собственник, обременения нет. Бесплатное оформление ипотеки по сниженным ставкам от банков-партнеров. Подаем заявку онлайн в несколько банков сразу. Одобрение в течениеабочего дня. Дополнительно оплачивается комиссия с покупателя. Номер объекта: 3983060

Читать полностью

    Реализация объекта недвижимости приостановлена

    Не нашли подходящего объявления?

    Оставьте заявку, и наши риэлторы подберут квартиру в районе Тюмени

    (0)