Россия, Тюменская область, Тюмень, улица Андрея Приказнова, 7
6 280 000 Р 80 720 $ или 69 200

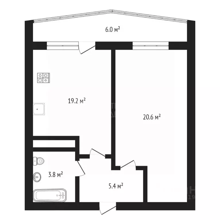
Информация о квартире

34 м2
Площадь
12 м2
Жилая
14 м2
Кухня
1
Комната
7
Этаж
14
Этажность
Развернуть
Агент
+7 (961) 202-27-07
Начать чат с агентом

1-комнатная квартира: Тюмень, улица Андрея Приказнова, 7 (34.6 м)

Apт.2544790. Продается однокомнатная квартира с предчистовой отделкой в ЖК Мотивы на 7 этаже. Общая площадь: 34.6 кв.м., жилая: 12.61 кв.м., площадь просторной кухни-столовой: 14.86 кв.м. Все окна выходят на одну сторону. В квартире одна лоджия, один совмещенный санузел. Высота потолков 2.7 м. Квартира будет сдаваться с предчистовой отделкой – White Box: выровнены и оштукатурены стены, проведено электричество и отопление, установлены радиаторы. Вы также можете приобрести квартиру с ремонтом от застройщика, представленным в трех цветовых решениях – Scandi, Wood и Coffee и включающим ламинат, обои под покраску, двери, натяжной потолок и санузел с сантехникой. При желании вы можете заказать отделку под ключ, варианты возможных решений представлены в альбоме фотографий. Дом монолитный, черырехподъездный, переменной этажности, от 12 до 14 этажей. Квартира находится во 2-й секции высотой 14 этажей в корпусе ГП-3. На этаже 12 квартир. В подъезде 1 пассажирский и 1 грузовой лифт. На сегодняшний день строительство окончено, дом сдан в 4 квартале 2024 года. Оформление сделки по договору купли-продажи. Закрытая от автомобилей территория, безопасный двор и камеры видеонаблюдения - гаранты вашего спокойствия. Квартал будет располагать богатой инфраструктурой: на первых этажах разместятся магазины, пекарни, кофейни, пункты выдачи, аптеки, детские центры, цветочные салоны и многое другое, что сделает жизнь поистине комфортной. Рядом находится парк общей площадью почти 5000 м, в котором располагаются локации для игр и отдыха жителей, здесь можно совершить утреннюю пробежку или прогуляться после рабочего дня. В парке есть зона воркаута с тренажерами для взрослых, игровые комплексы с горками и канатный комплекс для детей разных возрастов, качели и лавочки для отдыха, площадки для командных видов спорта и для панна-футбола. В ЖК «Мотивы всё продумано до мелочей: светлые холлы входных групп, оформленные в едином стиле, просторные колясочные, лапомойки для питомцев. На территории комплекса находятся 2 8-ми этажных паркинга и более 1000 м/м на открытой парковке. Жилой комплекс находится в одном из экологически благоприятных районов Тюмени, недалеко от Плехановского бора. При этом до центра города можно добраться за 15 минут, а до международного аэропорта Рощино за 13 минут. Окончание строительства: ГП 1, 2, 3, 4 – сдача до конца 2024 года, ГП 6, 7, 8 – сдача 2 квартал 2026 года.

Читать полностью

    Для того, чтобы купить однокомнатную квартиру по адресу: Тюмень, улица Андрея Приказнова, 7, позвоните по телефону +7 (961) 202-27-07. Торопитесь! Объявление №30094008961 о продаже однокомнатной квартиры опубликовано Сегодня.

    Позвонить Написать
    6 280 000 Р80 720 $ или 69 200
    Агент
    +7 (961) 202-27-07
    Начать чат с агентом
    Похожие предложения в Тюмени
    2-к кв. Тюменская область, Тюмень ул. Василия Севергина, 7 (68.9 м) - Фото 1
    2-к кв. Тюменская область, Тюмень ул. Василия Севергина, 7 (68.9 м) - Фото 2
    2-комнатная квартира, общая площадь 68м², кухня 21м²

    Очень низкая цена для такой уникальной квартиры. продам : в сданном доме 3к КЛЮЧИ В РУКАХ Полная стоимость в договоре.БЕЗ КОМИССИИ для покупателя+торг.Кирпичный дом. 68,9 м2+балкон 2,83м2. Полноценная 3к.-21,67-кухня-гостиная-9,81-спальня с выходом на...
    • 68 м²
    • 2-ком
    • 2/4 эт.
    • кирпичный
    6 338 000 Р
    Агент
    +7 (912) Показать номер
    Посмотреть контакты
    1-к кв. Тюменская область, Тюмень ул. Дмитрия Менделеева, 7 (48.9 м) - Фото 1
    1-к кв. Тюменская область, Тюмень ул. Дмитрия Менделеева, 7 (48.9 м) - Фото 2
    1-комнатная квартира, общая площадь 48м², кухня 19м²

    Продаётся уютная, светлая и чистая квартира формата 1 в жилом комплексе Времена года .Квартира находится на 8 этаже дома комфорт-класса. Её общая площадь составляет 48,7 квадратных метров. В квартире просторная (20 квадратных метров), большая кухня...
    • 48 м²
    • 1-ком
    • 8/17 эт.
    • монолит
    6 300 000 Р
    Агент
    +7 (982) Показать номер
    Посмотреть контакты
    2-к кв. Тюменская область, Тюмень ул. Обдорская, 7 (49.8 м) - Фото 1
    2-к кв. Тюменская область, Тюмень ул. Обдорская, 7 (49.8 м) - Фото 2
    2-комнатная квартира, общая площадь 49м², кухня 11м²

    Продаётся двухкомнатная квартира в ЖК Ямальский-2 — идеальный дом для семьи с детьми ОСНОВНЫЕ ПРЕИМУЩЕСТВА: Просторная планировка: Общая площадь 49,8 м лоджия. Кухня 11 м — удобство для приготовления и семейных ужинов. Квартира на 4 этаже с качественным...
    • 49 м²
    • 2-ком
    • 4/17 эт.
    • монолит
    6 200 000 Р
    Агент
    +7 (982) Показать номер
    Посмотреть контакты
    3-к кв. Тюменская область, Тюмень Антипино мкр, ул. Буденного, 7 (75.6 ... - Фото 1
    3-к кв. Тюменская область, Тюмень Антипино мкр, ул. Буденного, 7 (75.6 ... - Фото 2
    3-комнатная квартира, общая площадь 75м², кухня 6м²

    Продаётся трёхкомнатная квартира современного формата с просторной кухней-гостиной и двумя изолированными ми, а также 5 соток земли Окна выходят на две стороны света, что позволяет наслаждаться естественным освещением в любое время суток.Площадь кухни-гостиной...
    • 75 м²
    • 3-ком
    • 2/2 эт.
    • кирпичный
    6 200 000 Р
    Агент
    +7 (982) Показать номер
    Посмотреть контакты
    1-комнатная квартира: Тюмень, проезд Капитана Куликова, 7 (41.1 м) - Фото 1
    1-комнатная квартира: Тюмень, проезд Капитана Куликова, 7 (41.1 м) - Фото 2
    1-комнатная квартира, общая площадь 41м²

    Apт.2547267. Просторная 1-комн. квартира с предчистовой отделкой в ЖК Мириады на 13 этаже. Общая площадь: 41.1 кв.м. Высота потолков 2.7 м. Дом монолитный, трехподъездный, переменной этажности, от 14 до 16 этажей. Квартира находится в 3-й секции высотой...
    • 41 м²
    • 1-ком
    • 13/16 эт.
    6 379 711 Р
    Агент
    +7 (966) Показать номер
    Посмотреть контакты

    Не нашли подходящего объявления?

    Оставьте заявку, и наши риэлторы подберут квартиру в районе Тюмени

    (0)