4 600 000 Р 58 420 $ или 50 060

Информация о квартире

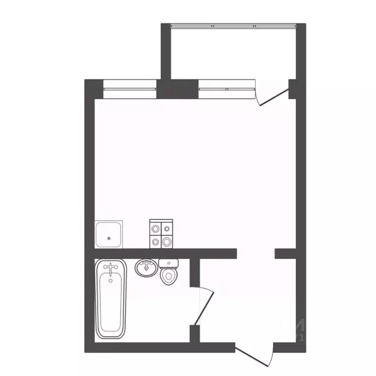
30 м2
Площадь
20 м2
Жилая
студия
Комнат
3
Этаж
18
Этажность

Дополнительная информация

Тип дома
монолит
Развернуть
Агент
+7 (982) 132-20-06
Начать чат с агентом

Студия Тюменская область, Тюмень ул. Обдорская, 1 (30.3 м)

Продается просторная студия в Тюменской Слободе Квартира с хорошим косметическим ремонтом, в которой останется все необходимое для комфортного проживания: диван, кухонный гарнитур и техника (кроме телевизора). Установлен фильтр для питьевой воды, что обеспечит вам чистоту и безопасность. Из студии открывается вид во двор, а просторная лоджия добавляет уют и возможность наслаждаться свежим воздухом. Закрытая территория комплекса предлагает комфортные зоны отдыха, отличные детские площадки и спортивные тренажеры. Район с развитой инфраструктурой: в пешей доступности находятся магазины, школа, детский сад и остановка общественного транспорта. Также предусмотрена большая парковка для вашего автомобиля. Квартира принадлежит одному взрослому собственнику и не имеет обременений. Не упустите возможность стать владельцем этой замечательной студии Бесплатное оформление ипотеки по сниженным ставкам от банков-партнеров. Подаем заявку онлайн в несколько банков сразу. Одобрение в течениеабочего дня. Дополнительно оплачивается комиссия с покупателя. Номер объекта: 4007253

Читать полностью

    Для того, чтобы купить студию по адресу: Тюмень, ул. Обдорская, 1, позвоните по телефону +7 (982) 132-20-06. Торопитесь! Объявление №30094085835 о продаже студии опубликовано Сегодня.

    Позвонить Написать
    4 600 000 Р58 420 $ или 50 060
    Агент
    +7 (982) 132-20-06
    Начать чат с агентом
    Похожие предложения в Тюмени
    2-к кв. Тюменская область, Тюмень Камчатская ул., 1 (51.0 м) - Фото 1
    2-к кв. Тюменская область, Тюмень Камчатская ул., 1 (51.0 м) - Фото 2
    2-комнатная квартира, общая площадь 51м², кухня 8м²

    Продается прекрасная уютная двухкомнатная квартира в микрорайоне Лесобаза,в шаговой доступности от реки Тура .Общая площадь квартиры 51м2 c практичной планировкой - распашенка со светлым качественным ремонтом, без перепланировок. Везде установлены пластиковые...
    • 51 м²
    • 2-ком
    • 4/5 эт.
    • панельный
    4 650 000 Р
    Агент
    +7 (912) Показать номер
    Посмотреть контакты
    Студия Тюменская область, Тюмень ул. Обдорская, 1 (26.3 м) - Фото 1
    Студия Тюменская область, Тюмень ул. Обдорская, 1 (26.3 м) - Фото 2
    студия, общая площадь 26м², кухня 5м²

    Студия в жилом комплексе Клевер Парк представляет собой объект с готовым ремонтом.Объект расположен в одном из наиболее перспективных районов Тюмени, где создана вся необходимая инфраструктура для повседневной жизни.В шаговой доступности находятся торговая...
    • 26 м²
    • студия-ком
    • 18/18 эт.
    • монолит
    4 500 000 Р
    Агент
    +7 (982) Показать номер
    Посмотреть контакты
    Квартира-студия: Тюмень, улица Героев Сталинградской Битвы, 1 (25.2 м) - Фото 1
    Квартира-студия: Тюмень, улица Героев Сталинградской Битвы, 1 (25.2 м) - Фото 2
    студия, общая площадь 25м², жилая 15м²

    Продается просторная и уютная студия в современном жилом комплексе, расположенном в лесопарковой зоне. Район отличается исключительной экологичностью и тишиной благодаря окружению вековых сосен. Квартира выполнена с качественным современным ремонтом в...
    • 25 м²
    • студия-ком
    • 4/10 эт.
    4 500 000 Р
    Агент
    +7 (917) Показать номер
    Посмотреть контакты
    Студия Тюменская область, Тюмень ул. Обдорская, 1 (30.3 м) - Фото 1
    Студия Тюменская область, Тюмень ул. Обдорская, 1 (30.3 м) - Фото 2
    студия, общая площадь 30м², жилая 24м²

    Продаётся просторная студия в ЖК Клевер Парк Выполнен современный ремонт — можно заехать и жить без дополнительных вложений. Площадь 30,3 м 3 этаж. В квартире остаётся вся техника (кроме телевизора). Установлен фильтр для питьевой воды.Просторный балкон...
    • 30 м²
    • студия-ком
    • 3/18 эт.
    4 500 000 Р
    Агент
    +7 (982) Показать номер
    Посмотреть контакты
    Студия Тюменская область, Тюмень ул. Обдорская, 1 (30.3 м) - Фото 1
    Студия Тюменская область, Тюмень ул. Обдорская, 1 (30.3 м) - Фото 2
    студия, общая площадь 30м², кухня 10м²

    ЖК Клевер Парк Тюмень, ул. Обдорская, 1Продаётся просторная студия площадью 30,3 м на комфортном 3 этаже.В квартире выполнен современный ремонт — можно заехать и жить без дополнительных вложений. Установлена 5-ступенчатая система очистки питьевой воды.Что...
    • 30 м²
    • студия-ком
    • 3/18 эт.
    • монолит
    4 610 000 Р
    Агент
    +7 (912) Показать номер
    Посмотреть контакты

    Не нашли подходящего объявления?

    Оставьте заявку, и наши риэлторы подберут квартиру в районе Тюмени

    (0)