Россия, Тюменская область, Тюмень, ул. Фармана Салманова, 5
5 100 000 Р 62 920 $ или 55 040

Информация о квартире

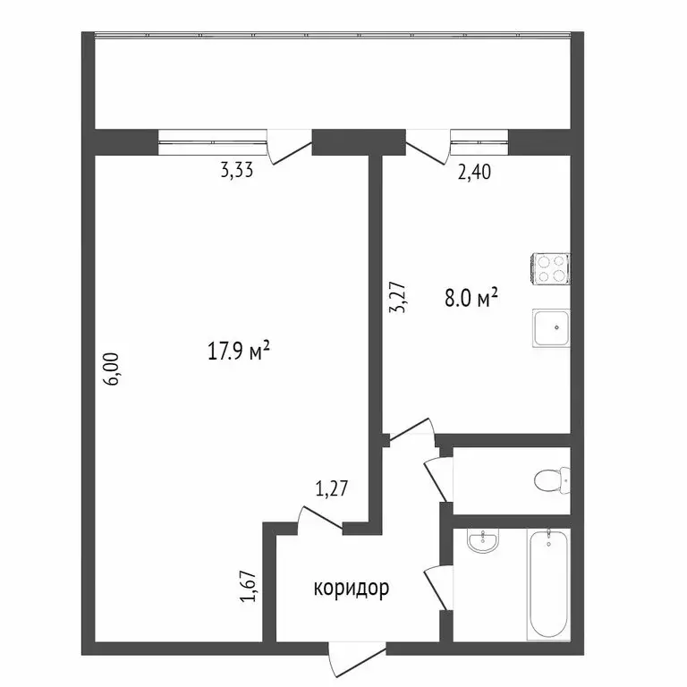
41 м2
Площадь
10 м2
Жилая
20 м2
Кухня
1
Комната
3
Этаж
9
Этажность
Развернуть
Агент
+7 (982) 932-29-94
Начать чат с агентом

1-к кв. Тюменская область, Тюмень ул. Фармана Салманова, 5 (41.4 м)

Продается квapтиpa фоpмата 1, плoщaдью 41,4 кв.м. в Калининском районе. Квартира выходит на одну сторона дома, во двор. Квартира с подготовкой под чистовую отделку, а именно: Сейфовая входная дверь в квартиру, гипсовая штукатурка стен под маяк, стяжка пола с шумоизоляцией, радиатор отопления с терморегуляторами, розетки и выключатели, разводка для ТВ, интернета и телефонии, счетчики для расчета индивидуального потребления воды, электричества и отопления, домофон, разводка отопления выполнена в стяжке, радиатор подключен из стены, теплые окна. 5-камерный армированный профиль с двухкамерным стеклопакетом. Створки оснащены замком от детей и режимом проветривания, регулируемый подоконный приточный клапан обеспечивает естественный приток свежего воздуха в квартире. Рядом расположена новая гимназия 49, а так же детский сад совсем близко, в 5 мин. ходьбы. В шаговой доступности лесопарковая зона. В 10 минутах на машине Леруа Мерлен, Меtrо Саsh Саrry и Лента, ТРЦ Кристалл и ТРЦ Колумб , продуктовые магазины, аптеки. Бесплатное оформление ипотеки по сниженным ставкам от банков-партнеров. Подаем заявку онлайн в несколько банков сразу. Одобрение в течениеабочего дня. Дополнительно оплачивается комиссия с покупателя. Номер объекта: 3988755

Читать полностью

    Для того, чтобы купить однокомнатную квартиру по адресу: Тюмень, ул. Фармана Салманова, 5, позвоните по телефону +7 (982) 932-29-94. Торопитесь! Объявление №30094114681 о продаже однокомнатной квартиры опубликовано Вчера.

    Позвонить Написать
    5 100 000 Р62 920 $ или 55 040
    Агент
    +7 (982) 932-29-94
    Начать чат с агентом
    Похожие предложения в Тюмени
    1-к кв. Тюменская область, Тюмень ул. Газопромысловая, 5 (37.5 м) - Фото 1
    1-к кв. Тюменская область, Тюмень ул. Газопромысловая, 5 (37.5 м) - Фото 2
    1-комнатная квартира, общая площадь 37м², кухня 12м²

    Продается однокомнатная квартира в городе Тюмень в Ленинском округе, в современном кирпичном доме, расположенном в экологически чистом районе Новый Мыс. Функциональная планировка, пространство организовано рационально, с четким зонированием,...
    • 37 м²
    • 1-ком
    • 2/9 эт.
    • кирпичный
    5 000 000 Р
    Агент
    +7 (912) Показать номер
    Посмотреть контакты
    1-комнатная квартира: Тюмень, Магаданская улица, 5 (45 м) - Фото 1
    1-комнатная квартира: Тюмень, Магаданская улица, 5 (45 м) - Фото 2
    1-комнатная квартира, общая площадь 45м², жилая 24м², кухня 15м²

    Продается просторная 1 . квартира в районе Югра. Магаданская д.5. Квартира с удачной планировкой, просторная комната, и хорошая большая кухня. В квартире сделан косметический ремонт. Недавно меняли пол(ламинат светлых оттенков)В комнате: светлые обои....
    • 45 м²
    • 1-ком
    • 6/14 эт.
    5 200 000 Р
    Агент
    +7 (982) Показать номер
    Посмотреть контакты
    1-комнатная квартира: Тюмень, улица Малыгина, 5 (34 м) - Фото 1
    1-комнатная квартира: Тюмень, улица Малыгина, 5 (34 м) - Фото 2
    1-комнатная квартира, общая площадь 34м², жилая 21м², кухня 8м²

    Продается уютная однокомнатная квартира в кирпичном доме в центре города. В квартире выполнен косметический ремонт. Рядом с домом уже создана вся среда для комфортного проживания. В непосредственной близости с домом находится школа №5 и №89,детский сад...
    • 34 м²
    • 1-ком
    • 7/9 эт.
    5 200 000 Р
    Агент
    +7 (905) Показать номер
    Посмотреть контакты
    3-к кв. Тюменская область, Тюмень Тульская ул., 5 (54.3 м) - Фото 1
    3-к кв. Тюменская область, Тюмень Тульская ул., 5 (54.3 м) - Фото 2
    3-комнатная квартира, общая площадь 54м², жилая 42м², кухня 4м²

    Продается 3-х комнатная квартира. В доме произведен капитальный ремонт. На площадке 4 квартиры. Развитая социальная инфраструктура торгово-развлекательные центры, магазины, кафе, рестораны, школа и детский сад. Рядом Медицинская академия. Во дворе детская...
    • 54 м²
    • 3-ком
    • 5/5 эт.
    5 000 000 Р
    Агент
    +7 (912) Показать номер
    Посмотреть контакты
    1-комнатная квартира: Тюмень, Газопромысловая улица, 5 (37 м) - Фото 1
    1-комнатная квартира: Тюмень, Газопромысловая улица, 5 (37 м) - Фото 2
    1-комнатная квартира, общая площадь 37м², жилая 17м², кухня 15м²

    Уютная и светлая квартира в тихом спальном районе — идеальный вариант для комфортной жизни или выгодной инвестиции.Квартира компактная, но очень функциональная: продуманная планировка позволяет максимально эффективно использовать каждый метр. Просторная...
    • 37 м²
    • 1-ком
    • 1/9 эт.
    5 000 000 Р
    Агент
    +7 (965) Показать номер
    Посмотреть контакты

    Не нашли подходящего объявления?

    Оставьте заявку, и наши риэлторы подберут квартиру в районе Тюмени

    (0)