Россия, Тюменская область, Тюмень, улица Первооткрывателей, 11
5 482 000 Р 69 330 $ или 59 990

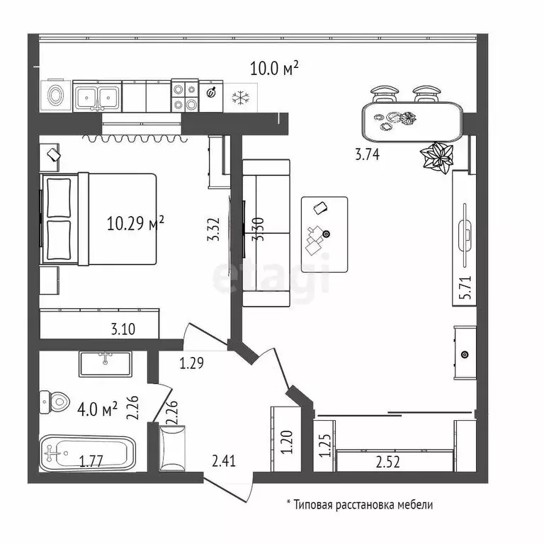
Информация о квартире

39 м2
Площадь
21 м2
Жилая
13 м2
Кухня
1
Комната
2
Этаж
7
Этажность
Развернуть
Агент
+7 (969) 651-38-34
Начать чат с агентом

1-комнатная квартира: Тюмень, улица Первооткрывателей, 11 (39.47 м)

Однокомнатная квартира площадью 39,47 м в современном жилом комплексе «Мотивы предлагает выгодную возможность приобрести просторное жилье на этапе строительства. Объект расположен на втором этаже и сдается с улучшенной черновой отделкой, что обеспечивает будущему собственнику значительную экономию на первоначальном ремонте. Все поверхности подготовлены к финишной отделке: стены выровнены и оштукатурены, выполнена цементно-песчаная стяжка пола, установлены розетки, выключатели, радиаторы отопления и двухкамерные стеклопакеты. Ключевым преимуществом является увеличенная площадь санузла — 4,39 м, что позволяет с комфортом разместить полноценную душевую кабину или ванну, а также необходимую мебель. Высота потолков 2,7 метра создает ощущение простора. Срок ввода дома в эксплуатацию запланирован на второй квартал 2026 года. Жилой комплекс обеспечивает безопасность и приватность благодаря закрытой территории с видеонаблюдением и входу в подъезд с уровня земли. Инфраструктура для повседневных нужд, включая магазины, аптеки и кафе, уже сформирована в пешей доступности, а строительство школы и детского сада будет осуществлено по мере заселения. Отличная транспортная доступность и близость к объездной дороге позволяют быстро добраться до любой точки города, делая эту квартиру практичным выбором как для жизни, так и для долгосрочных инвестиций.МЫ ГАРАНТИРУЕМ ФИНАНСОВУЮ БЕЗОПАСНОСТЬ ДЛЯ НАШИХ КЛИЕНТОВ.Код пользователя: 189017Номер в базе:

Читать полностью

    Для того, чтобы купить однокомнатную квартиру по адресу: Тюмень, улица Первооткрывателей, 11, позвоните по телефону +7 (969) 651-38-34. Торопитесь! Объявление №30094178628 о продаже однокомнатной квартиры опубликовано Вчера.

    Позвонить Написать
    5 482 000 Р69 330 $ или 59 990
    Агент
    +7 (969) 651-38-34
    Начать чат с агентом
    Похожие предложения в Тюмени
    2-комнатная квартира: Тюмень, Вересковая улица, 11 (60.9 м) - Фото 1
    2-комнатная квартира: Тюмень, Вересковая улица, 11 (60.9 м) - Фото 2
    2-комнатная квартира, общая площадь 60м², жилая 42м², кухня 14м²

    Квартира формата 2+ площадью 60,8 кв.м. на 2 этаже 20-этажного дома, вместительная кухня-гостиная и 2 смежные комнаты.СОСТОЯНИЕ: улучшенная черновая отделкаЛОКАЦИЯ: ЖК Вересковый пруд, микрорайон Тура, который характеризуется развитой социальной и коммерческой...
    • 60 м²
    • 2-ком
    • 2/20 эт.
    5 534 000 Р
    Агент
    +7 (937) Показать номер
    Посмотреть контакты
    Студия Тюменская область, Тюмень ул. Василия Подшибякина, 11 (28.8 м) - Фото 1
    Студия Тюменская область, Тюмень ул. Василия Подшибякина, 11 (28.8 м) - Фото 2
    студия, общая площадь 28м², кухня 2м²

    Продам видовую квартиру студию с ремонтом от застройщика в одном из лучших районов города Тюменская слобода в ЖК Уездные Кварталы. Высота потолков 3м. Шикарный вид из окна.В квартире имеется кухонный гарнитур. ЖК находится в самом современном районе...
    • 28 м²
    • студия-ком
    • 14/14 эт.
    • монолит
    5 500 000 Р
    Агент
    +7 (919) Показать номер
    Посмотреть контакты
    2-комнатная квартира: Тюмень, микрорайон Нефтяников, улица Пирогова, ... - Фото 1
    2-комнатная квартира: Тюмень, микрорайон Нефтяников, улица Пирогова, ... - Фото 2
    2-комнатная квартира, общая площадь 46м², жилая 21м², кухня 20м²

    ОБЪЕКТ:Кваpтира формата 2к, общей площадью 46 кв.м. на 5-м этаже в новом кирпичном дoме.СОСТОЯНИЕ:В квартире выполнен отличный ремонт(делали для себя). Кухня перенесена на тёплую лоджию, что дало возможность использовать 2 комнаты для любых целей. В квартире...
    • 46 м²
    • 2-ком
    • 5/9 эт.
    5 590 000 Р
    Агент
    +7 (932) Показать номер
    Посмотреть контакты
    2-комнатная квартира: Тюмень, микрорайон Нефтяников, улица Пирогова, ... - Фото 1
    2-комнатная квартира: Тюмень, микрорайон Нефтяников, улица Пирогова, ... - Фото 2
    2-комнатная квартира, общая площадь 66м², кухня 9м²

    Код предложения ID 507179. Предлагаем Вашему вниманию просторную квартиру в Заречной части города, район Югра - Парфенова. Рядом детский сад №127, магазины: Пятерочка , Магнит , Монетка и несколько местных продуктовых. Преимущество - закрытая территория...
    • 66 м²
    • 2-ком
    • 9/9 эт.
    5 500 000 Р
    Агент
    +7 (912) Показать номер
    Посмотреть контакты
    1-к кв. Тюменская область, Тюмень ул. Константина Посьета, 11 (41.0 м) - Фото 1
    1-к кв. Тюменская область, Тюмень ул. Константина Посьета, 11 (41.0 м) - Фото 2
    1-комнатная квартира, общая площадь 41м², жилая 25м², кухня 10м²

    Арт.Только для агентов АН Самолет плюс,, ставка на вторичное жилье 12,25 Продается отличная ,светлая 1квартира ,в активно развивающем районе Ново- Патрушево.Характеристики:1 комната Общая площадь:41Площадь кухни: 10Этаж: 6/15Лоджия: 1Пассажирский лифт:1Ремонт:...
    • 41 м²
    • 1-ком
    • 6/15 эт.
    • панельный
    5 430 000 Р
    Агент
    +7 (982) Показать номер
    Посмотреть контакты

    Не нашли подходящего объявления?

    Оставьте заявку, и наши риэлторы подберут квартиру в районе Тюмени

    (0)