8 800 000 Р 114 300 $ или 97 760

Информация о квартире

93 м2
Площадь
14 м2
Кухня
3
Комнаты
7
Этаж
8
Этажность

Дополнительная информация

Тип дома
панельный
Развернуть
Агент
+7 (982) 772-51-44
Начать чат с агентом

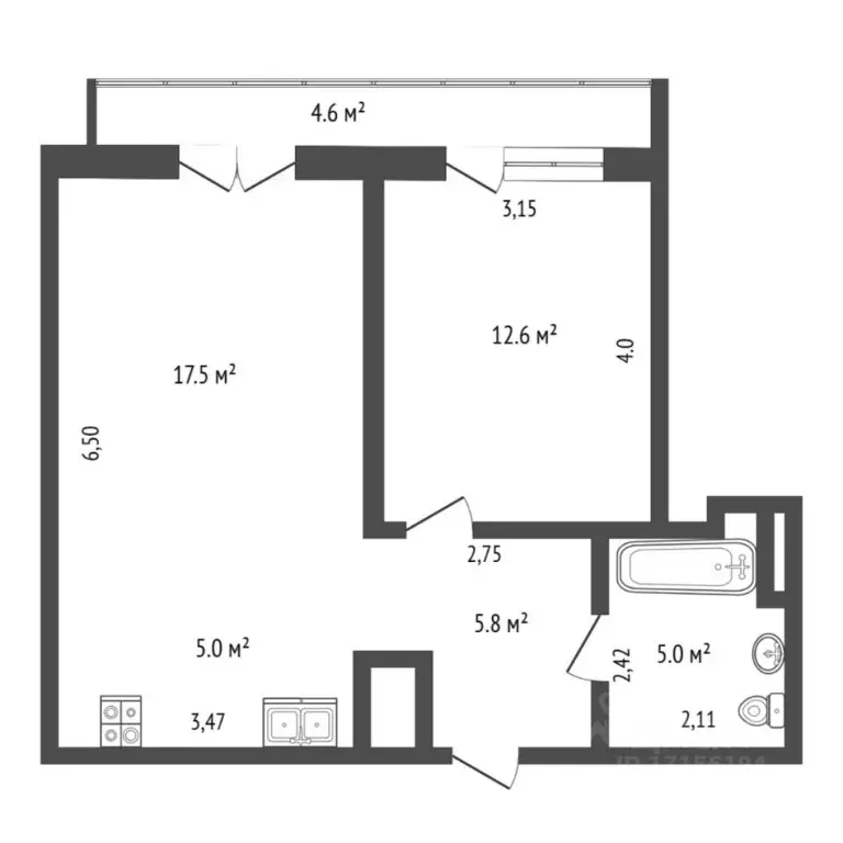
3-к кв. Тюменская область, Тюмень Ставропольская ул., 1/2 (93.0 м)

Представляем вашему вниманию уникальное предложение О КВАРТИРЕ:Трехкомнатная квартира с эргономичной планировкой, идеально подходящая для комфортной жизни. В квартире ощущается простор, благодаря трём изолированным комнатам, большой кухне и холлу, раздельному санузлу. Косметический ремонт уже сделан, вам не придется затрачивать дополнительные средства. Пластиковые окна обеспечивают тепло и уют. В квартире матовые натяжные потолки. На стенах обои спокойных тонов, на полу линолеум. Санузел облицован плиткой, установлена современная сантехника и санфаянс.Квартира-распашонка — это свет и воздух, окна выходят на две стороны, позволяя наслаждаться природным освещением. Квартира имеет большую, облагороженную лоджию.При продаже остается кухонный гарнитур, встроенная бытовая техника (варочная панель, духовой шкаф, посудомоечная машина на 45), вытяжка, мебель. Приятный бонус для новых владельцев- кладовая на этаже О РАЙОНЕ:Местоположение просто идеально: в пешей доступности находятся 2 школы, 2 детских сада и спортивные учреждения для маленьких спортсменов. А для водных развлечений летом — пруд Южный, а зимой — возможность катания на коньках.Этот вариант — находка для семей с детьми, которые ценят комфорт и удобство. Звоните, и я с радостью проведу показ в удобное для вас время. Не упустите шанс обзавестись прекрасным жильем, которое станет настоящим домом для вас и вашей семьи МЫ ГАРАНТИРУЕМ ФИНАНСОВУЮ БЕЗОПАСНОСТЬ ДЛЯ НАШИХ КЛИЕНТОВ.Код пользователя: 131700Номер в базе: 1519728

Читать полностью

    Для того, чтобы купить трехкомнатную квартиру по адресу: Тюмень, ул. Ставропольская, 1/2, позвоните по телефону +7 (982) 772-51-44. Торопитесь! Объявление №30094244049 о продаже трехкомнатной квартиры опубликовано 29 марта 2026.

    Позвонить Написать
    8 800 000 Р114 300 $ или 97 760
    Агент
    +7 (982) 772-51-44
    Начать чат с агентом
    Похожие предложения
    3-к кв. Тюменская область, Тюмень Ставропольская ул., 1/2 (93.0 м) - Фото 1
    3-к кв. Тюменская область, Тюмень Ставропольская ул., 1/2 (93.0 м) - Фото 2
    3-комнатная квартира, общая площадь 93м², жилая 52м², кухня 14м²

    Срочно продается Просторная светлая 3-к квартира в мкрн. Южный.Быстрая сделка: квартира без долей, без обременения, вся сумма проходит по ДКП.Заезжай и живи Так как в квартире остается качественная мебель и встроенная техника.В районе хорошо развита...
    • 93 м²
    • 3-ком
    • 7/8 эт.
    • панельный
    8 800 000 Р
    Агент
    +7 (912) Показать номер
    Посмотреть контакты
    2-к кв. Тюменская область, Тюмень Ставропольская ул., 97к4 (73.5 м) - Фото 1
    2-к кв. Тюменская область, Тюмень Ставропольская ул., 97к4 (73.5 м) - Фото 2
    2-комнатная квартира, общая площадь 73м², кухня 25м²

    Продается великолепная светлая квартира-распашонка, которая станет идеальным местом для комфортной жизни Просторная кухня-гостиная и большие комнаты создают атмосферу уюта и гармонии. Изюминкой квартиры является балкон, где вы сможете наслаждаться утренним...
    • 73 м²
    • 2-ком
    • 13/16 эт.
    • монолит
    8 900 000 Р
    Агент
    +7 (912) Показать номер
    Посмотреть контакты
    1-к кв. Тюменская область, Тюмень Причальная ул., 9 (45.9 м) - Фото 1
    1-к кв. Тюменская область, Тюмень Причальная ул., 9 (45.9 м) - Фото 2
    1-комнатная квартира, общая площадь 45м², кухня 22м²

    Продаётся квартира с кухней-гостиной 22.5 м в ЖК Речной Порт *Улучшенная черновая отделка • Первая линия у реки Тура • Подземный • Проект-победитель 2026* О квартире:Отличная планировка с кухней-гостиной — современное пространство для жизниКухня 22.5...
    • 45 м²
    • 1-ком
    • 5/9 эт.
    8 800 000 Р
    Агент
    +7 (911) Показать номер
    Посмотреть контакты
    2-к кв. Тюменская область, Тюмень ул. Ю.-Р.Г. Эрвье, 26 (60.2 м) - Фото 1
    2-к кв. Тюменская область, Тюмень ул. Ю.-Р.Г. Эрвье, 26 (60.2 м) - Фото 2
    2-комнатная квартира, общая площадь 60м², кухня 12м²

    В продаже квартира в районе Европейский.Формат планировки 2 (Euro 3)В квартире выполнен хороший ремонт.Материалы для потолка и стен в светлых оттенках.2 лоджии. Выход из спальни и кухни-гостинной. Дом оборудован камерами видео-наблюдения.Инфраструктура...
    • 60 м²
    • 2-ком
    • 3/9 эт.
    • монолит
    8 800 000 Р
    Агент
    +7 (982) Показать номер
    Посмотреть контакты
    2-к кв. Тюменская область, Тюмень ул. Монтажников, 59 (68.8 м) - Фото 1
    2-к кв. Тюменская область, Тюмень ул. Монтажников, 59 (68.8 м) - Фото 2
    2-комнатная квартира, общая площадь 68м², кухня 21м²

    Предлагаю вам комфортную квартиру класса люкс с изолированными ми в современном монолитном доме 2017 года постройки. Этот просторный жилой блок идеально подойдет для тех, кто ценит качество и современные удобства. Большая кухня-гостиная площадью 21 м...
    • 68 м²
    • 2-ком
    • 11/18 эт.
    • монолит
    8 900 000 Р
    Агент
    +7 (919) Показать номер
    Посмотреть контакты

    Не нашли подходящего объявления?

    Оставьте заявку, и наши риэлторы подберут квартиру в районе Тюмени

    (0)