Россия, Тюменская область, Тюмень, Станционная улица, 16Б
5 299 000 Р 65 450 $ или 56 420

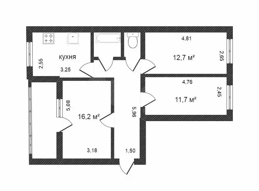
Информация о квартире

60 м2
Площадь
8 м2
Кухня
3
Комнаты
5
Этаж
5
Этажность
Развернуть
Агент
+7 (982) 913-90-19
Начать чат с агентом

3-комнатная квартира: Тюмень, Станционная улица, 16Б (60 м)

Продам 3-х комнатную квартиру в кирпичном доме, в Восточном районе города О КВАРТИРЕ: — Просторная, уютная и светлая — Общая площадь квартиры 60 кв.м., кухня 8 кв.м. — Функциональная планировка: санузел раздельный, 3 комнаты, большая лоджия — Высота потолка 2,5 кв.м. — Ремонт выполнен из качественных материалов: окна пластиковые, в комнатах обои, коридор и кухня выровненные отштукатуренные стены под покраску, на полу плотный линолиум, потолки под заказ — Установлены приборы учета холодной, горячей воды — При продаже останется кухонный гарнитур, стенка в зале, прихожая, бойлер в сан. узле, 2-х спальная кровать 160/200 — К квартире бонусом идёт индивидуальная кладовая, которую можно переоборудовать под гардеробную О ДОМЕ/РАЙОНЕ: — Такие дома служат десятилетиями, обеспечивая безопасность и комфорт для многих поколений, сохраняют тепло зимой, прохладу летом, а также защищают от внешнего шума — В доме проводился капремонт: заменена крыша, трубы ГВС/ХВС, установлены счетчики, чистый подъезд. — Подъезд оборудован домофоном — Остановка рядом с домом — Удобная транспортная развязка с выездом на объездную дорогу. Рядом расположены в торговые центры: «Окей , «Лента — Детский сад во дворе, через дорогу школа и развивающий центр для детей Контакт , в пешей доступности колледж транспортных технологий и сервиса — В доме отделение почты, продуктовые магазины, озон и т.д. — Во дворе детская площадка О СДЕЛКЕ: — Без обременения — Прямая продажа — Полное юридическое сопровождение — Любая форма оплаты ПОЧЕМУ МЫ? — Низкие ставки по ИПОТЕКЕ благодаря скидкам от наших банков-партнеров — Скидки по страховке до 50 от страховых компаний-партнеров — Полное сопровождение сделки от выбора объекта до новоселья — Широкая специализация на рынке недвижимости — Высококвалифицированные специалисты, которые помогают Вам во всем процессе продаж — Трансфер для просмотра квартиры Вариант для людей, которые ценят комфорт и хотят получить максимум выгоды за свои деньги. Звоните прямо сейчас и записывайтесь на просмотр

Читать полностью

    Для того, чтобы купить трехкомнатную квартиру по адресу: Тюмень, Станционная улица, 16Б, позвоните по телефону +7 (982) 913-90-19. Торопитесь! Объявление №30094259637 о продаже трехкомнатной квартиры опубликовано 16 марта 2026.

    Позвонить Написать
    5 299 000 Р65 450 $ или 56 420
    Агент
    +7 (982) 913-90-19
    Начать чат с агентом
    Похожие предложения
    3-к кв. Тюменская область, Тюмень ул. Станционная, 16Б (59.4 м) - Фото 1
    3-к кв. Тюменская область, Тюмень ул. Станционная, 16Б (59.4 м) - Фото 2
    3-комнатная квартира, общая площадь 59м², кухня 8м²

    Продается 3-ком. кв. S = 59,4 кв.м. в спальном районе города с развитой инфраструктурой. Выполнен косметический ремонт, лоджия остеклена, в комнатах на стенах обои, в коридоре и кухне стены окрашены, натяжные потолки матовые и глянец, на полу линолеум,...
    • 59 м²
    • 3-ком
    • 5/5 эт.
    • кирпичный
    5 300 000 Р
    Агент
    +7 (912) Показать номер
    Посмотреть контакты
    2-комнатная квартира: Тюмень, Старый Тобольский тракт, 2-й километр, ... - Фото 1
    2-комнатная квартира: Тюмень, Старый Тобольский тракт, 2-й километр, ... - Фото 2
    2-комнатная квартира, общая площадь 51м², жилая 40м², кухня 6м²

    Продается светлая двухкомнатная квартира площадью 51 кв. м на втором этаже кирпичного дома. Объект предлагается с выполненным аккуратным косметическим ремонтом, что позволяет заселиться сразу после покупки, без дополнительных вложений и хлопот. Квартира...
    • 51 м²
    • 2-ком
    • 2/5 эт.
    5 300 000 Р
    Агент
    +7 (937) Показать номер
    Посмотреть контакты
    3-комнатная квартира: Тюмень, Холодильная улица, 13А (65.3 м) - Фото 1
    3-комнатная квартира: Тюмень, Холодильная улица, 13А (65.3 м) - Фото 2
    3-комнатная квартира, общая площадь 65м², жилая 51м², кухня 9м²

    Продается трехкомнатная квартира в историческом центре города с выгодной планировкой «распашонка . Три изолированные комнаты, раздельные санузел обеспечивают приватность и комфорт для всех жильцов. Квартира без ремонта, что позволяет новому владельцу...
    • 65 м²
    • 3-ком
    • 9/9 эт.
    5 300 000 Р
    Агент
    +7 (937) Показать номер
    Посмотреть контакты
    1-к кв. Тюменская область, Тюмень Широтная ул., 130 (45.0 м) - Фото 1
    1-к кв. Тюменская область, Тюмень Широтная ул., 130 (45.0 м) - Фото 2
    1-комнатная квартира, общая площадь 45м², жилая 18м², кухня 13м²

    Продается очень уютная 1-комнатная квартира на 7-м этаже 10-этажного панельного дома. Просторная кухня площадью 13 кв. метров станет центром притяжения всей семьи и вечерних посиделок с друзьями. В квартире выполнен хороший косметическийемонт. При продаже...
    • 45 м²
    • 1-ком
    • 7/10 эт.
    5 400 000 Р
    Агент
    +7 (919) Показать номер
    Посмотреть контакты
    3-к кв. Тюменская область, Тюмень Парфеново мкр, ул. Тимуровцев, 32 ... - Фото 1
    3-к кв. Тюменская область, Тюмень Парфеново мкр, ул. Тимуровцев, 32 ... - Фото 2
    3-комнатная квартира, общая площадь 63м², кухня 7м²

    Предлагается к продаже просторная и уютная 3-х комнатная квартира в микрорайоне Югра Квартира с косметическим ремонтом, расположенная в кирпичном доме, который обеспечивает отличную звуко- и теплоизоляцию: зимой здесь всегда тепло, а летом прохладно....
    • 63 м²
    • 3-ком
    • 4/5 эт.
    • кирпичный
    5 200 000 Р
    Агент
    +7 (919) Показать номер
    Посмотреть контакты

    Не нашли подходящего объявления?

    Оставьте заявку, и наши риэлторы подберут квартиру в районе Тюмени

    (0)