23 650 000 Р 292 100 $ или 251 800

Информация о квартире

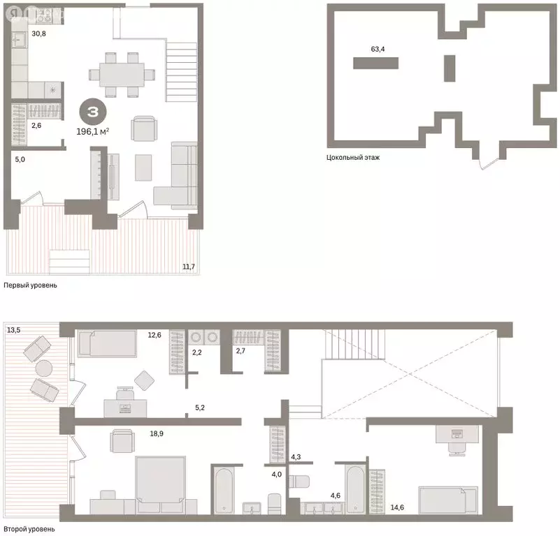
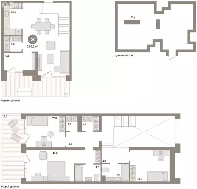
122 м2
Площадь
3
Комнаты
1
Этаж
9
Этажность
Развернуть
Агент
+7 (905) 821-51-25
Начать чат с агентом

3-комнатная квартира: Тюмень, Профсоюзная улица, 6к1 (122.84 м)

Квартира с кухней-гостиной и тремя спальнями в жилом районе «Речной порт . Особенности планировки: антресоль, вид во двор, второй санузел, второй свет, гардеробная, отдельный вход, постирочная, предчистовая отделка, разнесённые спальни, терраса.№ квартиры в нашей базе: П-ГП1-6-170. Новый центр притяжения В основу концепции жилого района «Речной порт , архитекторы заложили две ключевые идеи: сохранение идентичности и «возвращение городу реки. Территорию они планировочно разделили на южную и северную части. Южная зона будет напоминать классический европейский город с гармонично спроектированными улицами, уютными дворами и центральной площадью. В северной части предусмотрены пешеходные маршруты и зеленые зоны с активными площадками, магазинами и ресторанами, открывающими виды на реку Туру. Мировой опыт на берегу Туры Проект вдохновлён успешными примерами реновации, такими как Хафенсити в Гамбурге и Нордхавн в Копенгагене. Основное внимание уделяется развитию, включая интеграцию исторических артефактов, таких как старинные краны и 35-летний дуб, который станет символом и местом отдыха для жителей района, подчеркивая связь с культурным наследием. Дух места При разработке проекта анализируется контекст и история места, что важно для формирования стратегии и сохранения наследия. В «Речном порту останутся несколько артефактов, среди которых два портальных крана — «Ганц и «Альбрехт , произведённые в Венгрии в 1960-х годах. «Ганц будет находиться в южной части, а «Альбрехт — на краю речного порта. Также в проекте предусмотрены полуторатонный якорь и пароходные винты. В северной части сохранится 35-летний дуб, который был включён в мастер-план, вокруг которого спроектированы зоны отдыха. (AQID

Читать полностью

    Для того, чтобы купить трехкомнатную квартиру по адресу: Тюмень, ул. Профсоюзная, 6к1, позвоните по телефону +7 (905) 821-51-25. Торопитесь! Объявление №30094471726 о продаже трехкомнатной квартиры опубликовано Сегодня.

    Позвонить Написать
    23 650 000 Р292 100 $ или 251 800
    Агент
    +7 (905) 821-51-25
    Начать чат с агентом
    Похожие предложения
    3-комнатная квартира: Тюмень, Профсоюзная улица, 6к1 (122.84 м) - Фото 1
    3-комнатная квартира: Тюмень, Профсоюзная улица, 6к1 (122.84 м) - Фото 2
    3-комнатная квартира, общая площадь 122м²

    Квартира с кухней-гостиной и тремя спальнями в жилом районе «Речной порт . Особенности планировки: антресоль, отдельный вход, предчистовая отделка, разнесённые спальни.№ квартиры в нашей базе: П-ГП1-6-170. Новый центр притяжения В основу концепции...
    • 122 м²
    • 3-ком
    • 1/9 эт.
    23 650 000 Р
    Агент
    +7 (905) Показать номер
    Посмотреть контакты
    3-комнатная квартира: Тюмень, Профсоюзная улица, 6к1 (122.84 м) - Фото 1
    3-комнатная квартира: Тюмень, Профсоюзная улица, 6к1 (122.84 м) - Фото 2
    3-комнатная квартира, общая площадь 122м²

    Квартира с кухней-гостиной и тремя спальнями в жилом районе «Речной порт . Особенности планировки: антресоль, отдельный вход, предчистовая отделка, разнесённые спальни.№ квартиры в нашей базе: П-ГП1-6-170. Новый центр притяжения В основу концепции...
    • 122 м²
    • 3-ком
    • 1/9 эт.
    23 650 000 Р
    Агент
    +7 (905) Показать номер
    Посмотреть контакты
    3-к кв. Тюменская область, Тюмень ул. Николая Федорова, 30 (144.5 м) - Фото 1
    3-к кв. Тюменская область, Тюмень ул. Николая Федорова, 30 (144.5 м) - Фото 2
    3-комнатная квартира, общая площадь 144м², кухня 37м²

    Объект находится в ипотеке и есть возможность оформления покупки по ставке от 9 Не упустите возможность стать владельцем этой великолепной квартиры Ипотека со ставкой 9 делает покупку еще более доступной.Продается уникальная 3-комнатная квартира в...
    • 144 м²
    • 3-ком
    • 1/9 эт.
    • кирпичный
    24 000 000 Р
    Агент
    +7 (919) Показать номер
    Посмотреть контакты
    2-к кв. Тюменская область, Тюмень ул. Щербакова, 2к2 (93.5 м) - Фото 1
    2-к кв. Тюменская область, Тюмень ул. Щербакова, 2к2 (93.5 м) - Фото 2
    2-комнатная квартира, общая площадь 93м², кухня 27м²

    Покупай сейчас - плати потом На данный объект доступна рассрочка на выгодных условияхЖить в центре города - это не только престижно, но ещё и очень удобно Вам гарантированы приятное окружение, потрясающие виды из окна, дворы и хорошие соседи.Квартира...
    • 93 м²
    • 2-ком
    • 3/5 эт.
    • кирпичный
    23 000 000 Р
    Агент
    +7 (982) Показать номер
    Посмотреть контакты
    3-к кв. Тюменская область, Тюмень ул. Николая Машарова, 2 (111.1 м) - Фото 1
    3-к кв. Тюменская область, Тюмень ул. Николая Машарова, 2 (111.1 м) - Фото 2
    3-комнатная квартира, общая площадь 111м², кухня 32м²

    Продается трехкомнатная квартира на видовом этаже в первом доме проекта Авторский квартал Машаров . Объект предлагает исключительные условия для комфортной жизни благодаря панорамному остеклению, высоте потолков 3,3 метра и удачной свободной планировке,...
    • 111 м²
    • 3-ком
    • 18/21 эт.
    • монолит
    23 500 000 Р
    Агент
    +7 (982) Показать номер
    Посмотреть контакты

    Не нашли подходящего объявления?

    Оставьте заявку, и наши риэлторы подберут квартиру в районе Тюмени

    (0)