Россия, Тюменская область, Тюмень, проезд Ямбургский, 3
5 600 000 Р 69 010 $ или 59 940

Информация о квартире

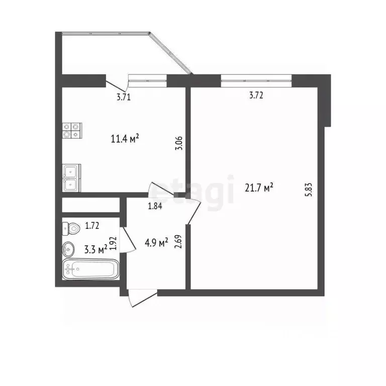
42 м2
Площадь
14 м2
Кухня
1
Комната
5
Этаж
10
Этажность

Дополнительная информация

Тип дома
монолит
Развернуть
Агент
+7 (982) 772-51-44
Начать чат с агентом

1-к кв. Тюменская область, Тюмень проезд Ямбургский, 3 (42.7 м)

Просторная однокомнатная квартира площадью 42,7 кв. м расположена в Тюменской слободе — одном из самых перспективных районов города с развитой инфраструктурой. Объект находится в отличном состоянии: выполнен качественный косметический ремонт с натяжными потолками, уложен ламинат, установлены современные межкомнатные двери. Высота потолков 2,6 метра визуально увеличивает пространство, создавая ощущение простора. Планировка квартиры продумана до мелочей: изолированная кухня прямоугольной формы площадью 14 кв. м позволяет удобно разместить мебель и бытовую технику, а просторная комната подходит как для отдыха, так и для работы. Дополнительное преимущество — остекленный балкон, который можно использовать в качестве зоны отдыха или места для хранения. Район отличается удобной транспортной доступностью: в пешей доступности остановки общественного транспорта, обеспечивающие быстрый выезд в центр и другие части города. В шаговой доступности расположены детский сад, гимназия 49/1, современная поликлиника, что делает квартиру привлекательной для семей с детьми. Благоустроенная территория включает детские и спортивные площадки, зоны для парковки и озелененные участки. Квартира подойдет как для собственного проживания, так и для инвестиций — район активно развивается, что обеспечивает стабильный рост стоимости недвижимости. Объект полностью готов к заселению, не требует дополнительных вложений и оформлен по всем юридическим нормам. Для осмотра доступен в любое удобное время.МЫ ГАРАНТИРУЕМ ФИНАНСОВУЮ БЕЗОПАСНОСТЬ ДЛЯ НАШИХ КЛИЕНТОВ.Код пользователя: 131700Номер в базе: 9198731

Читать полностью

    Для того, чтобы купить однокомнатную квартиру по адресу: Тюмень, проезд Ямбургский, 3, позвоните по телефону +7 (982) 772-51-44. Торопитесь! Объявление №30094523788 о продаже однокомнатной квартиры опубликовано 2 дня назад.

    Позвонить Написать
    5 600 000 Р69 010 $ или 59 940
    Агент
    +7 (982) 772-51-44
    Начать чат с агентом
    Похожие предложения в Тюмени
    Квартира-студия: Тюмень, проезд Капитана Куликова, 3 (33.9 м) - Фото 1
    Квартира-студия: Тюмень, проезд Капитана Куликова, 3 (33.9 м) - Фото 2
    студия, общая площадь 33м², жилая 23м²

    Apт.2547110. Однокомнатная квартира-студия с предчистовой отделкой в ЖК Мириады на 8 этаже. Общая площадь: 33.9 кв.м., площадь гостиной 23.7 кв.м., из которых 7.7 кв.м. выделено под кухонную зону. Все окна выходят на одну сторону. В квартире одна лоджия,...
    • 33 м²
    • студия-ком
    • 8/24 эт.
    5 697 304 Р
    Агент
    +7 (966) Показать номер
    Посмотреть контакты
    1-к кв. Тюменская область, Тюмень ул. Обдорская, 3 (41.5 м) - Фото 1
    1-к кв. Тюменская область, Тюмень ул. Обдорская, 3 (41.5 м) - Фото 2
    1-комнатная квартира, общая площадь 41м², кухня 11м²

    Уютная 1-комнатная квартира в сердце Тюменской Слободы - современный квартал без старого фонда.Предлагаю к продаже просторную однокомнатную квартиру в монолитно-кирпичном доме. Это идеальный вариант для тех, кто ценит комфорт, безопасность и хочет переехать...
    • 41 м²
    • 1-ком
    • 6/17 эт.
    • монолит
    5 600 000 Р
    Агент
    +7 (982) Показать номер
    Посмотреть контакты
    1-к кв. Тюменская область, Тюмень ул. Евгения Войнова, 3 (23.0 м) - Фото 1
    1-к кв. Тюменская область, Тюмень ул. Евгения Войнова, 3 (23.0 м) - Фото 2
    1-комнатная квартира, общая площадь 23м², жилая 10м², кухня 8м²

    Центр города Студия с ремонтом ,мебелью и техникой , ремонт выполнен в 2026, возле дома есть остановка, рядом школа, детский сад. Очень развита инфраструктура. В новом премиальном районе. Район Айвазовского. Номер предложения: 64769.
    • 23 м²
    • 1-ком
    • 12/25 эт.
    5 500 000 Р
    Агент
    +7 (982) Показать номер
    Посмотреть контакты
    Квартира-студия: Тюмень, проезд Капитана Куликова, 3 (33.9 м) - Фото 1
    Квартира-студия: Тюмень, проезд Капитана Куликова, 3 (33.9 м) - Фото 2
    студия, общая площадь 33м², жилая 23м²

    Apт.2547094. 1-комн. квартира-студия с предчистовой отделкой в ЖК Мириады на 2 этаже. Общая площадь: 33.9 кв.м., площадь гостиной 23.7 кв.м., из которых 7.7 кв.м. выделено под кухонную зону. Все окна выходят на одну сторону. В квартире одна лоджия,...
    • 33 м²
    • студия-ком
    • 2/24 эт.
    5 597 305 Р
    Агент
    +7 (966) Показать номер
    Посмотреть контакты
    1-комнатная квартира, общая площадь 33м², жилая 20м², кухня 8м²

    Продается однокомнатная квартира в кирпичном доме в центральном районе Тюмени. Объект отличается выгодным расположением и развитой инфраструктурой. Жилье находится в непосредственной близости от парка «Загородный сад , что обеспечивает тишину и доступ...
    • 33 м²
    • 1-ком
    • 6/9 эт.
    5 500 000 Р
    Агент
    +7 (937) Показать номер
    Посмотреть контакты

    Не нашли подходящего объявления?

    Оставьте заявку, и наши риэлторы подберут квартиру в районе Тюмени

    (0)