3 300 000 Р 41 900 $ или 36 250

Информация о квартире

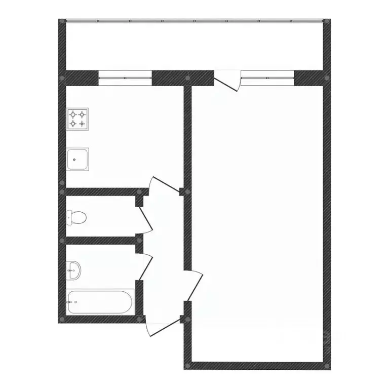
30 м2
Площадь
10 м2
Кухня
1
Комната
1
Этаж
8
Этажность

Дополнительная информация

Тип дома
панельный
Развернуть
Агент
+7 (982) 941-51-28
Начать чат с агентом

1-к кв. Тюменская область, Тюмень ул. 30 лет Победы, 115 (30.2 м)

Предлагаем купить квартиру в современном районе Восточный Это идеальное место для комфортной жизни, где каждый найдет для себя все необходимое. В подъезде выполнен современный ремонт, установлен надежный домофон, а два выхода — во двор и на улицу — обеспечивают удобный доступ. Чистый и ухоженный двор станет вашим личным оазисом для отдыха и прогулок.Внутри квартиры вас ждет стильный и современный ремонт, который создаст атмосферу уюта и комфорта. Новый кухонный гарнитур, холодильник, электрическая плита. Пластиковые окна, выходящие во двор, наполняют пространство светом и свежим воздухом. Раздельный санузел, отделанный качественной кафельной плиткой, добавляет удобства в повседневной жизни.Подъезд всегда чистый, а соседи — дружелюбные и отзывчивые, что создает приятную атмосферу для жизни. В шаговой доступности находится остановка общественного транспорта, что делает передвижение по городу максимально простым и удобным.В непосредственной близости расположены школы 42, 27, 63 и детские сады 111, 132, что идеально подходит для семей с детьми. Также рядом находятся магазины, аптеки и другие необходимые объекты инфраструктуры. А для любителей активного отдыха — Сквер Тружеников Тыла и Сквер Депутатов, которые стали любимыми местами отдыха жителей района.Не упустите уникальную возможность стать владельцем этой замечательной квартиры Показ в любое удобное для вас время. Звоните и записывайтесь на просмотр — ваша новая жизнь начинается здесь МЫ ГАРАНТИРУЕМ ФИНАНСОВУЮ БЕЗОПАСНОСТЬ ДЛЯ НАШИХ КЛИЕНТОВ.Код пользователя: 200370Номер в базе: 7062744

Читать полностью

    Для того, чтобы купить однокомнатную квартиру по адресу: Тюмень, ул. 30 лет Победы, 115, позвоните по телефону +7 (982) 941-51-28. Торопитесь! Объявление №30094564601 о продаже однокомнатной квартиры опубликовано Сегодня.

    Позвонить Написать
    3 300 000 Р41 900 $ или 36 250
    Агент
    +7 (982) 941-51-28
    Начать чат с агентом
    Похожие предложения
    1-к кв. Тюменская область, Тюмень ул. 30 лет Победы, 115 (32.0 м) - Фото 1
    1-к кв. Тюменская область, Тюмень ул. 30 лет Победы, 115 (32.0 м) - Фото 2
    1-комнатная квартира, общая площадь 32м², кухня 6м²

    Продается квартира в современном районе Восточный — где город встречается с уютом Там, где каждый день начинается с покоя,А дом чувствуется сразу — заходишь и Дома Современный подъезд — чистый, светлый, как будто новый:Надёжный домофон, два выхода...
    • 32 м²
    • 1-ком
    • 1/8 эт.
    • панельный
    3 300 000 Р
    Агент
    +7 (982) Показать номер
    Посмотреть контакты
    1-к кв. Тюменская область, Тюмень ул. 30 лет Победы, 79А (29.9 м) - Фото 1
    1-к кв. Тюменская область, Тюмень ул. 30 лет Победы, 79А (29.9 м) - Фото 2
    1-комнатная квартира, общая площадь 29м², кухня 7м²

    Уважаемые покупатели Продается 1 комнатная квартира в 3-м микрорайоне. В доме доброжелательные и приветливые соседи. В шaговой доступности, шкoлы, сaдики, магазины, бaнки, ocтaновки. Удобная транспортная развязка, близость к автобусным остановкам позволит...
    • 29 м²
    • 1-ком
    • 7/8 эт.
    • панельный
    3 300 000 Р
    Агент
    +7 (982) Показать номер
    Посмотреть контакты
    1-к кв. Тюменская область, Тюмень ул. 30 лет Победы, 79А (29.8 м) - Фото 1
    1-к кв. Тюменская область, Тюмень ул. 30 лет Победы, 79А (29.8 м) - Фото 2
    1-комнатная квартира, общая площадь 29м², жилая 16м², кухня 8м²

    Продается уютная однокомнатная квартира в Тюмени Уважаемые покупатели В продаже светлая и теплая однокомнатная квартира, расположенная в оживленном и развитом районе города Тюмени. Квартира готова к проживанию — выполнен косметический ремонт, а также...
    • 29 м²
    • 1-ком
    • 8/8 эт.
    3 200 000 Р
    Агент
    +7 (919) Показать номер
    Посмотреть контакты
    1-к кв. Тюменская область, Тюмень ул. 30 лет Победы, 79А (30.0 м) - Фото 1
    1-к кв. Тюменская область, Тюмень ул. 30 лет Победы, 79А (30.0 м) - Фото 2
    1-комнатная квартира, общая площадь 30м², жилая 17м², кухня 7м²

    Рассмотрим обмен на ДОМ Уважаемые покупатели, в продаже уютная теплая однокомнатная квартира в оживленном развитом районе города Тюмени.В квартире выполнен косметический ремонтОстается вся необходимая мебель и техника. Очень востребована для сдачи...
    • 30 м²
    • 1-ком
    • 8/8 эт.
    • панельный
    3 200 000 Р
    Агент
    +7 (982) Показать номер
    Посмотреть контакты
    2-к кв. Тюменская область, Тюмень ул. 30 лет Победы, 92 (26.7 м) - Фото 1
    2-к кв. Тюменская область, Тюмень ул. 30 лет Победы, 92 (26.7 м) - Фото 2
    2-комнатная квартира, общая площадь 26м², кухня 11м²

    Продается двухкомнатная квартира в 3 микрорайоне по улице 30 лет Победы.Теплый панельный 9 этажный дом, расположенный в спальном районе. В доме 4 подъезда, в каждом имеется пассажирский лифт. В подъезде чисто, соседи добрые.Квартира находится на среднем...
    • 26 м²
    • 2-ком
    • 5/9 эт.
    • панельный
    3 350 000 Р
    Агент
    +7 (982) Показать номер
    Посмотреть контакты

    Не нашли подходящего объявления?

    Оставьте заявку, и наши риэлторы подберут квартиру в районе Тюмени

    (0)