Россия, Тюменская область, Тюмень, ул. Краснооктябрьская, 16
4 650 000 Р 57 200 $ или 49 770

Информация о квартире

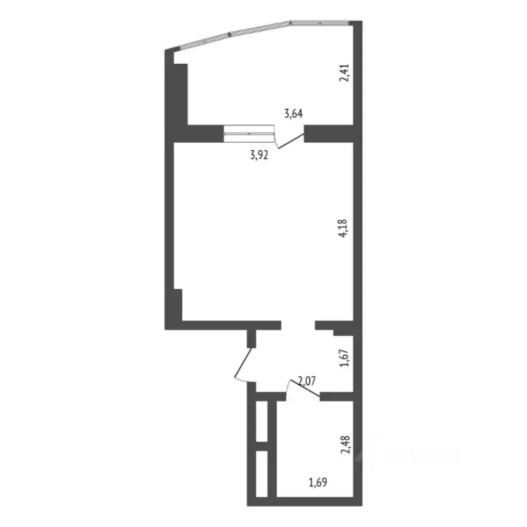
33 м2
Площадь
12 м2
Кухня
1
Комната
11
Этаж
20
Этажность

Дополнительная информация

Тип дома
монолит
Развернуть
Агент
+7 (982) 929-80-64
Начать чат с агентом

1-к кв. Тюменская область, Тюмень ул. Краснооктябрьская, 16 (33.6 м)

Просторная однокомнатная квартира площадью 33.6 м в улучшенной черновой отделке предоставляет полную свободу для реализации любого дизайн-проекта. Удачная планировка с кухней в 12м и продуманными нишами позволяет без потерь разместить полноценную гардеробную и функциональную зону отдыха. Французский балкон открывает вид на тихий двор и р.Тура. Объект расположен в историческом, полностью сформированном районе с развитой инфраструктурой: школа и детский сад находятся в пяти минутах ходьбы, в шаговой доступности — супермаркеты, аптеки и отделения банков. В пятнадцати минутах неспешной прогулки начинается благоустроенная набережная — идеальное место для отдыха. Дом отличается надежными инженерными коммуникациями, установлены современные стеклопакеты и индивидуальный счетчик тепла. Ключевое преимущество — готовность к немедленной сделке, что минимизирует сроки и риски при покупке. Это рациональный выбор для первичного приобретения или инвестиции: качественный ремонт по индивидуальному проекту значительно повысит ликвидность объекта в будущем. Звоните , договоримся о просмотре в удобное время )МЫ ГАРАНТИРУЕМ ФИНАНСОВУЮ БЕЗОПАСНОСТЬ ДЛЯ НАШИХ КЛИЕНТОВ.Код пользователя: 200846Номер в базе:

Читать полностью

    Для того, чтобы купить однокомнатную квартиру по адресу: Тюмень, ул. Краснооктябрьская, 16, позвоните по телефону +7 (982) 929-80-64. Торопитесь! Объявление №30094594595 о продаже однокомнатной квартиры опубликовано Вчера.

    Позвонить Написать
    4 650 000 Р57 200 $ или 49 770
    Агент
    +7 (982) 929-80-64
    Начать чат с агентом
    Похожие предложения
    1-комнатная квартира: Тюмень, Краснооктябрьская улица, 16 (31.1 м) - Фото 1
    1-комнатная квартира: Тюмень, Краснооктябрьская улица, 16 (31.1 м) - Фото 2
    1-комнатная квартира, общая площадь 31м², жилая 9м², кухня 17м²

    Продам квартиру формата 1+ с улучшенной черновой отделкой Эта уютная квартира расположена в новом, уже сданном доме, который находится в быстро развивающемся районе Док. Вы будете наслаждаться жизнью на берегу живописной реки Тура, всего в нескольких...
    • 31 м²
    • 1-ком
    • 4/20 эт.
    4 800 000 Р
    Агент
    +7 (937) Показать номер
    Посмотреть контакты
    1-комнатная квартира: Тюмень, Краснооктябрьская улица, 16 (31.1 м) - Фото 1
    1-комнатная квартира: Тюмень, Краснооктябрьская улица, 16 (31.1 м) - Фото 2
    1-комнатная квартира, общая площадь 31м², жилая 9м², кухня 17м²

    Прекрасная возможность стать обладателем стильной квартиры формата 1+ с улучшенной черновой отделкой Эта уютная квартира расположена в новом, уже сданном доме, который находится в быстро развивающемся районе Док. Вы будете наслаждаться жизнью на берегу...
    • 31 м²
    • 1-ком
    • 4/20 эт.
    4 800 000 Р
    Агент
    +7 (937) Показать номер
    Посмотреть контакты
    Студия Тюменская область, Тюмень ул. Станционная, 26Бк1 (24.0 м) - Фото 1
    Студия Тюменская область, Тюмень ул. Станционная, 26Бк1 (24.0 м) - Фото 2
    студия, общая площадь 24м², жилая 10м², кухня 5м²

    Продам студию 24 кв.м. с видом на зеленый двор. Этаж 7/10. Кирпичный дом 2019 года. Мебель, техника остаются. Один собственник.БЕЗ обременений В квартире выполнен ремонт с учетом всех современных требований к комфорту и удобству.Коммунальные платежи зимой-2500р,...
    • 24 м²
    • студия-ком
    • 7/10 эт.
    • кирпичный
    4 700 000 Р
    Агент
    +7 (982) Показать номер
    Посмотреть контакты
    1-к кв. Тюменская область, Тюмень ул. Тальниковая, 3 (40.0 м) - Фото 1
    1-к кв. Тюменская область, Тюмень ул. Тальниковая, 3 (40.0 м) - Фото 2
    1-комнатная квартира, общая площадь 40м², кухня 10м²

    Продается квартира в новом жилом комплексе Дебют в развитом районе города. Объект характеризуется выгодной юго-западной ориентацией окон, что обеспечивает продолжительное естественное освещение в течение дня. Из окон открывается спокойный вид на коттеджную...
    • 40 м²
    • 1-ком
    • 16/19 эт.
    • монолит
    4 700 000 Р
    Агент
    +7 (982) Показать номер
    Посмотреть контакты
    Студия Тюменская область, Тюмень ул. Мельникайте, 2к14 (24.0 м) - Фото 1
    Студия Тюменская область, Тюмень ул. Мельникайте, 2к14 (24.0 м) - Фото 2
    студия, общая площадь 24м²

    Бесплатное оформление ипотеки по сниженным ставкам от банков-партнеров. Подаем заявку онлайн в несколько банков сразу. Одобрение в течениеабочего дня. Дополнительно оплачивается комиссия с покупателя. Номер объекта: 4009212
    • 24 м²
    • студия-ком
    • 12/17 эт.
    4 800 000 Р
    Агент
    +7 (982) Показать номер
    Посмотреть контакты

    Не нашли подходящего объявления?

    Оставьте заявку, и наши риэлторы подберут квартиру в районе Тюмени

    (0)