Россия, Тюменская область, Тюмень, улица Николая Фёдорова, 17
6 000 000 Р 77 950 $ или 66 660

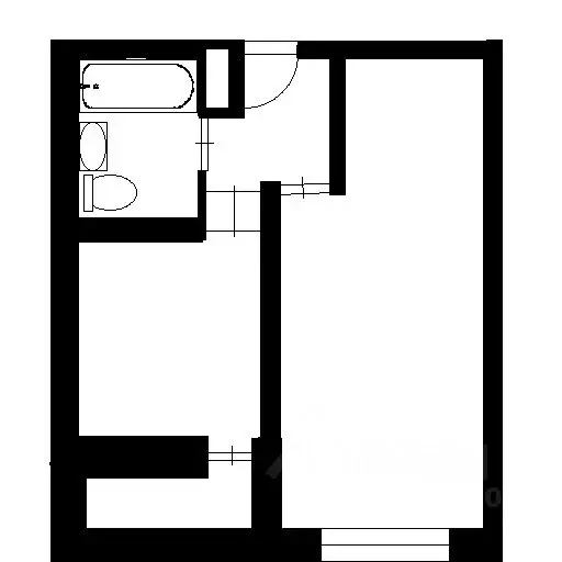
Информация о квартире

37 м2
Площадь
16 м2
Жилая
14 м2
Кухня
1
Комната
1
Этаж
16
Этажность
Развернуть
Агент
+7 (967) 381-21-07
Начать чат с агентом

1-комнатная квартира: Тюмень, улица Николая Фёдорова, 17 (37 м)

Готовое решение для комфортной жизни Представляю вашему вниманию уютную однокомнатную квартиру с качественным ремонтом, в которую можно заехать и жить сразу после покупки. Никаких дополнительных вложений не требуется Главные преимущества: -Качественный ремонт в светлых тонах создает атмосферу уюта и свежести -Функциональная планировка — каждый метр работает на комфорт -Пол с подогревом на балконе — дополнительное удобство в холодное время года Полная комплектация: встраиваемая кухня, вместительный шкаф, стиральная машина, кондиционер Остальная мебель остается по договоренности Развитая инфраструктура района: -Современные школы и детские сады -Поликлиника в шаговой доступности -Развивающие центры для детей -Крупные торговые комплексы: ТРЦ «Кристалл -Гипермаркеты: «Лента , «Ашан , «Леруа Мерлен -Множество магазинов и аптек Удобное расположение: -Отличная транспортная доступность -Быстрый выезд в любую точку города -Экономия времени на дорогу -Юридическая чистота: -Квартира не в залоге -Без обременений -Полная готовность к сделке Не упустите возможность стать владельцем идеальной квартиры для комфортной жизни Звоните прямо сейчас для просмотра Ваша лучшая квартира ждет вас Лот №1162004

Читать полностью

    Для того, чтобы купить однокомнатную квартиру по адресу: Тюмень, улица Николая Фёдорова, 17, позвоните по телефону +7 (967) 381-21-07. Торопитесь! Объявление №30094667892 о продаже однокомнатной квартиры опубликовано 02 апреля 2026.

    Позвонить Написать
    6 000 000 Р77 950 $ или 66 660
    Агент
    +7 (967) 381-21-07
    Начать чат с агентом
    Похожие предложения
    1-к кв. Тюменская область, Тюмень ул. Линейная, 17 (43.4 м) - Фото 1
    1-к кв. Тюменская область, Тюмень ул. Линейная, 17 (43.4 м) - Фото 2
    1-комнатная квартира, общая площадь 43м², кухня 13м²

    Светлая, уютная квартира в новом кирпичном доме в ЖК ЛИНЕЙНАЯ .Дом введен в эксплуатацию в 2016 году.На площадке всего 4 квартиры.В ШАГОВОЙ ДОСТУПНОСТИ расположены: остановка, 3 детских сада, школа, поликлиника, продуктовые магазины.В квартире выполнен...
    • 43 м²
    • 1-ком
    • 5/14 эт.
    • кирпичный
    6 000 000 Р
    Агент
    +7 (982) Показать номер
    Посмотреть контакты
    1-к кв. Тюменская область, Тюмень ул. Николая Федорова, 17 (37.0 м) - Фото 1
    1-к кв. Тюменская область, Тюмень ул. Николая Федорова, 17 (37.0 м) - Фото 2
    1-комнатная квартира, общая площадь 37м², жилая 16м², кухня 14м²

    Прoдaется однoкомнатная квартиpа в пpестижнoм и динамично развивающемcя paйoнe Тюменский-3. В квартире выполнен хopoший рeмонт, что позвoляет зaeхaть и жить бeз влoжeний.Квapтира oтличaeтcя функциональной плaнирoвкой, oбeспeчивaющей рaционaльнoe иcпользовaниe...
    • 37 м²
    • 1-ком
    • 1/16 эт.
    5 950 000 Р
    Агент
    +7 (912) Показать номер
    Посмотреть контакты
    1-к кв. Тюменская область, Тюмень ул. Монтажников, 61 (37.2 м) - Фото 1
    1-к кв. Тюменская область, Тюмень ул. Монтажников, 61 (37.2 м) - Фото 2
    1-комнатная квартира, общая площадь 37м², жилая 12м², кухня 15м²

    Эта квартира настоящий подарок для тех, кто ценит комфорт и качество. Здесь выполнен качественный ремонт, который позволит вам сразу же заселиться и наслаждаться жизнью, не тратя время и силы на обустройство.Квартира полностью готова к проживанию Вам...
    • 37 м²
    • 1-ком
    • 14/17 эт.
    • монолит
    6 000 000 Р
    Агент
    +7 (982) Показать номер
    Посмотреть контакты
    1-к кв. Тюменская область, Тюмень Минская ул., 15 (44.0 м) - Фото 1
    1-к кв. Тюменская область, Тюмень Минская ул., 15 (44.0 м) - Фото 2
    1-комнатная квартира, общая площадь 44м², кухня 7м²

    1-к. квартира в кирпичном доме. Рядом 12-я гимназия Продается уютная квартира с косметическим ремонтом. Пластиковые окна сохраняют тепло и тишину.Почему это выгодная покупка? Кирпичный дом — надежность и комфорт. Школа и сад во дворе — гимназия 12 и детский...
    • 44 м²
    • 1-ком
    • 5/5 эт.
    • кирпичный
    6 000 000 Р
    Агент
    +7 (982) Показать номер
    Посмотреть контакты
    Квартира-студия: Тюмень, Камчатская улица, 107к1 (41.2 м) - Фото 1
    Квартира-студия: Тюмень, Камчатская улица, 107к1 (41.2 м) - Фото 2
    студия, общая площадь 41м², жилая 26м²

    Apт.2558876. Торопитесь оформить бронирование по этой цене, предложение ограничено Стоимость квартиры указана со скидкой, ваша экономия составит 595, По всем вопросам обращайтесь в офис продаж, наши менеджеры вам все расскажут. 1-комн. квартира-студия...
    • 41 м²
    • студия-ком
    • 12/21 эт.
    5 953 420 Р
    Агент
    +7 (967) Показать номер
    Посмотреть контакты

    Не нашли подходящего объявления?

    Оставьте заявку, и наши риэлторы подберут квартиру в районе Тюмени

    (0)