23 650 000 Р 303 800 $ или 260 200

Информация о квартире

122 м2
Площадь
3
Комнаты
1
Этаж
9
Этажность
Развернуть
Агент
+7 (905) 821-51-25
Начать чат с агентом

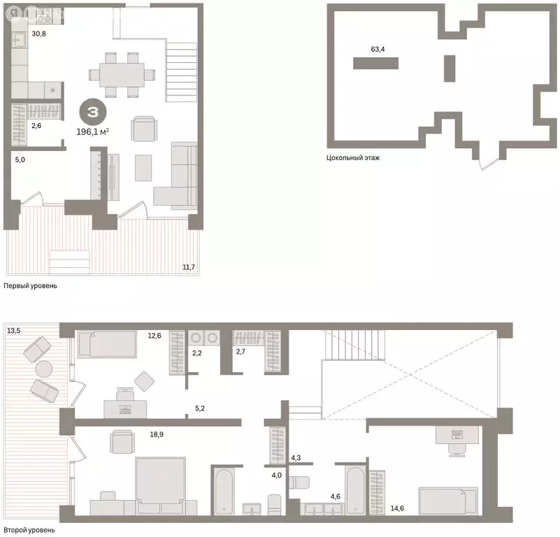
3-комнатная квартира: Тюмень, Профсоюзная улица, 6к1 (122.84 м)

Квартира с кухней-гостиной и тремя спальнями в жилом районе «Речной порт . Особенности планировки: антресоль, вид во двор, второй санузел, второй свет, гардеробная, отдельный вход, постирочная, предчистовая отделка, разнесённые спальни, терраса.№ квартиры в нашей базе: П-ГП1-6-170. Новый центр притяжения В основу концепции жилого района «Речной порт , архитекторы заложили две ключевые идеи: сохранение идентичности и «возвращение городу реки. Территорию они планировочно разделили на южную и северную части. Южная зона будет напоминать классический европейский город с гармонично спроектированными улицами, уютными дворами и центральной площадью. В северной части предусмотрены пешеходные маршруты и зеленые зоны с активными площадками, магазинами и ресторанами, открывающими виды на реку Туру. Мировой опыт на берегу Туры Проект вдохновлён успешными примерами реновации, такими как Хафенсити в Гамбурге и Нордхавн в Копенгагене. Основное внимание уделяется развитию, включая интеграцию исторических артефактов, таких как старинные краны и 35-летний дуб, который станет символом и местом отдыха для жителей района, подчеркивая связь с культурным наследием. Дух места При разработке проекта анализируется контекст и история места, что важно для формирования стратегии и сохранения наследия. В «Речном порту останутся несколько артефактов, среди которых два портальных крана — «Ганц и «Альбрехт , произведённые в Венгрии в 1960-х годах. «Ганц будет находиться в южной части, а «Альбрехт — на краю речного порта. Также в проекте предусмотрены полуторатонный якорь и пароходные винты. В северной части сохранится 35-летний дуб, который был включён в мастер-план, вокруг которого спроектированы зоны отдыха. (AQID

Читать полностью

    Для того, чтобы купить трехкомнатную квартиру по адресу: Тюмень, ул. Профсоюзная, 6к1, позвоните по телефону +7 (905) 821-51-25. Торопитесь! Объявление №30094779417 о продаже трехкомнатной квартиры опубликовано 08 апреля 2026.

    Позвонить Написать
    23 650 000 Р303 800 $ или 260 200
    Агент
    +7 (905) 821-51-25
    Начать чат с агентом
    Похожие предложения
    3-комнатная квартира: Тюмень, Профсоюзная улица, 6к1 (122.84 м) - Фото 1
    3-комнатная квартира: Тюмень, Профсоюзная улица, 6к1 (122.84 м) - Фото 2
    3-комнатная квартира, общая площадь 122м²

    Квартира с кухней-гостиной и тремя спальнями в жилом районе «Речной порт . Особенности планировки: антресоль, вид во двор, второй санузел, второй свет, гардеробная, отдельный вход, постирочная, предчистовая отделка, разнесённые спальни, терраса.№ квартиры...
    • 122 м²
    • 3-ком
    • 1/9 эт.
    23 650 000 Р
    Агент
    +7 (905) Показать номер
    Посмотреть контакты
    3-к кв. Тюменская область, Тюмень ул. Максима Горького, 53 (110.0 м) - Фото 1
    3-к кв. Тюменская область, Тюмень ул. Максима Горького, 53 (110.0 м) - Фото 2
    3-комнатная квартира, общая площадь 110м², кухня 20м²

    Объект находится в ипотеке и есть возможность оформления покупки по ставке от 8.8 ПРОДАМ 110 м2+7 м2 2 балкон- терраса с панорамным остеклением в ЖК HOME SWEET HOME возле Драм театра.Самая БОЛЬШАЯ квартира по КВАДРАТУРЕ для воплощение вашей мечты, полноценная...
    • 110 м²
    • 3-ком
    • 5/9 эт.
    • монолит
    24 500 000 Р
    Агент
    +7 (919) Показать номер
    Посмотреть контакты
    3-к кв. Тюменская область, Тюмень ул. 8 Марта, 2 (170.0 м) - Фото 1
    3-к кв. Тюменская область, Тюмень ул. 8 Марта, 2 (170.0 м) - Фото 2
    3-комнатная квартира, общая площадь 170м², кухня 73м²

    Шикарная квартира в самом ЦЕНТРЕ - ЖК Цитадель Лучшая локация, все в пешей доступности О квартире:- прекрасная 3+ в центре,- кухня-гостиная 73,2кв.м., с зоной приготовления пищи, столовой зоной, зоной отдыха,- качественный, современный ремонт по дизайн-проекту,-...
    • 170 м²
    • 3-ком
    • 5/8 эт.
    • кирпичный
    24 000 000 Р
    Агент
    +7 (982) Показать номер
    Посмотреть контакты
    3-к кв. Тюменская область, Тюмень ул. Николая Машарова, 4 (105.1 м) - Фото 1
    3-к кв. Тюменская область, Тюмень ул. Николая Машарова, 4 (105.1 м) - Фото 2
    3-комнатная квартира, общая площадь 105м², кухня 30м²

    Предлагается к продаже просторная четырехкомнатная квартира в жилом комплексе Машаров с уникальной планировкой и повышенным уровнем комфорта. Ключевая особенность — высота потолков 3 метра, что в сочетании с увеличенными дверными проемами, расширенным...
    • 105 м²
    • 3-ком
    • 19/20 эт.
    • монолит
    24 000 000 Р
    Агент
    +7 (919) Показать номер
    Посмотреть контакты
    2-к кв. Тюменская область, Тюмень ул. Щербакова, 2к2 (93.5 м) - Фото 1
    2-к кв. Тюменская область, Тюмень ул. Щербакова, 2к2 (93.5 м) - Фото 2
    2-комнатная квартира, общая площадь 93м², кухня 27м²

    Покупай сейчас - плати потом На данный объект доступна рассрочка на выгодных условияхЖить в центре города - это не только престижно, но ещё и очень удобно Вам гарантированы приятное окружение, потрясающие виды из окна, дворы и хорошие соседи.Квартира...
    • 93 м²
    • 2-ком
    • 3/5 эт.
    • кирпичный
    23 000 000 Р
    Агент
    +7 (982) Показать номер
    Посмотреть контакты

    Не нашли подходящего объявления?

    Оставьте заявку, и наши риэлторы подберут квартиру в районе Тюмени

    (0)