7 300 000 Р 90 140 $ или 77 180

Информация о помещении и здании

1
Этаж
5
Этажность
Развернуть
Агент
+7 (937) 089-59-40
Начать чат с агентом

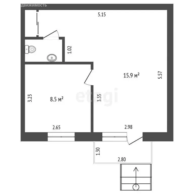
Офис (31 м)

Коммерческое помещение на первом этаже в зоне высокой пешеходной проходимости предлагает готовое решение для стабильного инвестиционного дохода. Объект сдан в долгосрочную аренду надежному арендатору, что гарантирует вам немедленный и прогнозируемый денежный поток без затрат времени и ресурсов на поиск клиента. Помещение имеет качественную чистовую отделку, адаптированную под нужды розничной торговли или сферы услуг, и полностью готово к эксплуатации. Его главное преимущество — расположение на первой линии домов, обеспечивающее максимальное удобство для потенциальных клиентов и создающее постоянный поток посетителей. Площадь позволяет эффективно организовать торговое пространство или зону обслуживания. Важным фактором является наличие бесплатной парковки для сотрудников и клиентов, что значительно повышает привлекательность локации. Транспортная доступность и развитая инфраструктура района с жилыми кварталами и социальными объектами круглогодично поддерживают высокий трафик. Данный объект представляет собой актив с минимальными операционными расходами, идеально подходящий для пассивных инвестиций.ОБРАТИТЕ ВНИМАНИЕ ПОКУПКА КОММЕРЧЕСКОЙ НЕДВИЖИМОСТИ ЧЕРЕЗ КОМПАНИЮ «ЭТАЖИ БЕЗ КОМИССИИ ДЛЯ ПОКУПАТЕЛЯ Код пользователя: 189169Номер в базе:

Читать полностью
    Позвонить Написать
    7 300 000 Р90 140 $ или 77 180
    Агент
    +7 (937) 089-59-40
    Начать чат с агентом
    Похожие предложения
    Офис в Тюменская область, Тюмень ул. Мельникайте, 125б (50 м) - Фото 1
    Офис в Тюменская область, Тюмень ул. Мельникайте, 125б (50 м) - Фото 2
    3-й этаж, всего 14 этажей

    Арт.В продаже офисное помещение площадью - 49,6 кв.м. Помещение расположено на 3 этaжe (правое крыло) нежилой трехэтажной чаcти многоэтажнoгo жилогo дома. Выполнен качественный современный ремонт, витражное остекление с энерго-эффективным стеклопакетом,...
    • 3/14 эт.
    7 250 000 Р
    Агент
    +7 (982) Показать номер
    Посмотреть контакты
    Офис в Тюменская область, Тюмень ул. Газовиков, 2 (76 м) - Фото 1
    Офис в Тюменская область, Тюмень ул. Газовиков, 2 (76 м) - Фото 2
    1-й этаж, всего 17 этажей

    Помещение свободного назначения. Имеется отдельный вход. Есть запасной выход. В помещении сделан типовой ремонт. Прилегающий двор с закрытой территорией. Документы готовы.Номер объекта: 1/545180/22044
    • 1/17 эт.
    7 200 000 Р
    Агент
    +7 (982) Показать номер
    Посмотреть контакты
    Офис в Кемеровская область, Новокузнецк ул. Хитарова, 30 (90 м) - Фото 1
    Офис в Кемеровская область, Новокузнецк ул. Хитарова, 30 (90 м) - Фото 2
    2-й этаж, всего 3 этажа

    Арт.. Продам объект коммерческой недвижимости,офисное помещение свободного назначения.Предлагается вашему вниманию коммерческое помещение общей площадью 90 кв.м.-отдельный вход-трехэтажное офисное здание-бесплатная парковка на прилегающей территории-проведены...
    • 2/3 эт.
    7 200 000 Р
    Агент
    +7 (981) Показать номер
    Посмотреть контакты
    Офис в Новосибирская область, Новосибирск ул. Писарева, 89А (37 м) - Фото 1
    Офис в Новосибирская область, Новосибирск ул. Писарева, 89А (37 м) - Фото 2
    3-й этаж, всего 29 этажей

    БЕЗ КОМИССИИ С ПОКУПАТЕЛЯ. Возможно в рассрочку Предлагаем к продаже помещение свободного назначения для Вашего бизнеса Если Вы в поисках объекта для инвестиций или размещения собственного бизнеса - отличный вариант за ШИКАРНУЮ СТОИМОСТЬ С прекрасными...
    • 3/29 эт.
    7 298 850 Р
    Агент
    +7 (913) Показать номер
    Посмотреть контакты
    Офис в Свердловская область, Екатеринбург ул. Краснофлотцев, 40 (47 м) - Фото 1
    Офис в Свердловская область, Екатеринбург ул. Краснофлотцев, 40 (47 м) - Фото 2
    2-й этаж, всего 10 этажей

    Жилой Квартал Новация вошел в Федеральную программу комплексного развития территории, благодаря чему привычный Эльмаш обретает совершенно новый облик. Масштабный и амбициозный проект обновит не только архитектуру района, но и жизнь каждого жителя. Новация...
    • 2/10 эт.
    7 300 500 Р
    Агент
    +7 (982) Показать номер
    Посмотреть контакты

    Не нашли подходящего объявления?

    Оставьте заявку, и наши риэлторы подберут офис в районе Тюмени

    (0)