4 500 000 Р 53 570 $ или 46 250

Информация о помещении и здании

4
Этаж
4
Этажность
Развернуть
Агент
+7 (982) 771-98-21
Начать чат с агентом

Офис в Тюменская область, Тюмень Олимпийская ул., 6к1 (51 м)

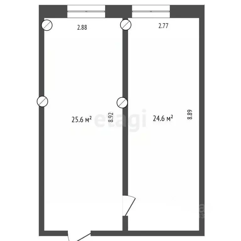
Представляю Вашему вниманию офисное помещение общей площадью 50.2 масположенное в знании на 1-ой линии ,на четвертом этаже/4-х этажного здания. Рядом имеются парковочные места, на первом этаже располагается магазин Монетка. Помещения в настоящее время сдано в аренду, и приносит стабильный доход чистыми . Но это пока по старой цене от 900 за квадрат Аренда съёмщик стабильно платит и находится уже на долгосрочной аренде с 2018г. В договоре сть пункт о том что мы можем повышать арендную ставку и он к этому готов.Что делает для покупателя выгодное приобретения так как окупаемость полностью для этого помещения ровно 9 лет при том что цена аренды помещения по Тюмени ниже рынка. И по статистики если увеличить немного аренду то вы через 6 лет уже будите получать хороший доход от этого помещения что в нынешнее время очень трудно найти ликвидный и столь прибыльный объект Также в продаже есть и другие офисы. Договоры аренды заключены на длительный период времени-поэтому смело можете считать, готовым бизнесом. Детально можете осмотреть всю площадь на фото и видео + поэтажный план. Звоните, отвечу на все интересующие Вас вопросы1) Помещения в собственности 2) Земля под зданием не в аренде а в собственности 3) Возможно купить в ипотеку 4) Прям готовый бизнес 5) Готовы обсуждать торг но только конкретному покупателю 6) Показы возможны с 10:00 до 17:00.ОБРАТИТЕ ВНИМАНИЕ Подходит для: Код пользователя: 21451Номер в базе:

Читать полностью
    Позвонить Написать
    4 500 000 Р53 570 $ или 46 250
    Агент
    +7 (982) 771-98-21
    Начать чат с агентом
    Похожие предложения
    Офис в Тюменская область, Тюмень Полевая ул., 109с9 (35 м) - Фото 1
    Офис в Тюменская область, Тюмень Полевая ул., 109с9 (35 м) - Фото 2
    3-й этаж, всего 3 этажа

    Офисное помещение 34.5 м на первой линии с парковкойКраткая характеристика:Общая площадь: 34.5 кв.м.Назначение: Нежилое помещение (офис).Состояние: Отличный ремонт, готово к использованию.Расположение: Первая линия дома, высокая проходимость и видимость.Парковка:...
    • 3/3 эт.
    4 400 000 Р
    Агент
    +7 (919) Показать номер
    Посмотреть контакты
    Офис в Тюменская область, Тобольск Октябрьская ул., 50 (48 м) - Фото 1
    Офис в Тюменская область, Тобольск Октябрьская ул., 50 (48 м) - Фото 2
    1-й этаж, всего 6 этажей

    Предлагаю вашему вниманию, большое помешенные под коммерцию, Здание готово для реконструкции и подойдет как для тягового помещения так и для производства. две раздельные площади, темная комната, очень интересный вариант для практикующего специалиста....
    • 1/6 эт.
    4 500 000 Р
    Агент
    +7 (982) Показать номер
    Посмотреть контакты
    Офис в Московская область, Люберцы городской округ, Красково пгт ул. ... - Фото 1
    цокольный этаж, всего 10 этажей

    Код лота: РАД-443765. Реализуется на торгах. Продается нежилое помещение в ЖК Красково-Парковый в Люберецком районе МО Площадь помещения составляет 226, 3 кв. м, которое расположено техническом этаже 10-ти этажного жилого дома. Кадастровый номер:...
    • -1/10 эт.
    4 493 250 Р
    Агент
    +7 (983) Показать номер
    Посмотреть контакты
    Офис в Московская область, Люберцы городской округ, Красково пгт ул. ... - Фото 1
    1-й этаж, всего 10 этажей

    Код лота: РАД-443766. Реализуется на торгах. Продаются через эл. торги нежилые помещения (5 лотов) в ЖК Красково-Парковый в Люберецком районе МО Площадь помещений составляет от 113, 2 до 226, 3 кв. м, которые расположены в цокольных и технических...
    • 1/10 эт.
    4 509 535 Р
    Агент
    +7 (983) Показать номер
    Посмотреть контакты
    Офис в Коми, Сыктывкар Первомайская ул., 87 (104 м) - Фото 1
    Офис в Коми, Сыктывкар Первомайская ул., 87 (104 м) - Фото 2
    4-й этаж, всего 4 этажа

    Код объекта: 2061539.Продается офисное помещение состоящее из четырёх кабинетов общей площадью 104, 3 кв. м. со своим санузлом и душевой кабиной, на данный момент свободно, низкие коммунальные платежи. Дополнительно два санузла на этаже. Тихое спокойное...
    • 4/4 эт.
    4 600 000 Р
    Агент
    +7 (912) Показать номер
    Посмотреть контакты

    Не нашли подходящего объявления?

    Оставьте заявку, и наши риэлторы подберут офис в районе Тюмени

    (0)