10 200 000 Р 131 000 $ или 112 200

Информация о таунхаусе

103 м2
Площадь
3
Этажность
1 cоток
Участок
Развернуть
Агент
+7 (982) 972-01-76
Начать чат с агентом

Таунхаус в Тюменская область, Тюмень Выборгская ул., 56 (104 м)

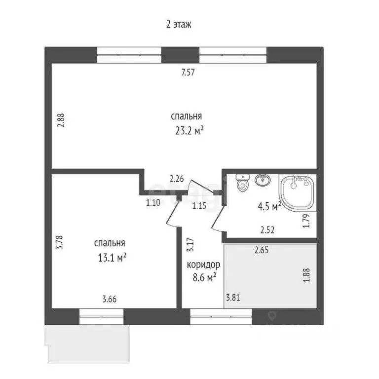
Продается просторный 3-этажный таунхаус в черте города Идеальное сочетание: городская инфраструктура и тишина закрытого квартала. Планировка и состояние:1 этаж (готовый): Прихожая, просторная кухня-гостиная, гостевой санузел. Выполнен хороший ремонт. Остается кухонный гарнитур со встроенной техникой и вся мебель 2 этаж (под ваш дизайн): 2 спальни и большой совмещенный санузел. Стены и потолки выровнены — осталось наклеить обои и уложить пол (возможность создать интерьер под себя ). Санузел готов — сантехника установлена.3 этаж (мансарда с потенциалом): Светлая зона с балконом и окном в потолке. Выполнен предчистовой ремонт — можно обустроить под кабинет, творческую мастерскую или дополнительную спальню. Расположение и территория (район Цимлянское):В черте города с развитой инфраструктурой: рядом Экопарк, магазины, кафе.Тихий и уезный поселок. Квартал таунхаусов — закрытая территория.Удобный въезд с двух сторон: с ул. Барнаульской и ул. Полевой. Ваш выгоды:Полностью готовый первый этаж для жизни.Уникальная возможность доделать отделку на 2-3 этажах под свой вкус и бюджет.Готовый санузел и коммуникации.Безопасность и приватность закрытой территории.Остается мебель и техника на 1 этаже.Звоните, чтобы запланировать просмотр Все детали обсудим по телефону. По запросу отправлю видео-тур по дому. Номер предложения: 57942.

Читать полностью

    Для того, чтобы купить квартирутаунхаус по адресу: Тюмень, ул. Выборгская, 56, позвоните по телефону +7 (982) 972-01-76. Торопитесь! Объявление №50016513259 о продаже -1-комнатного таунхауса опубликовано 28 марта 2026.

    Позвонить Написать
    10 200 000 Р131 000 $ или 112 200
    Агент
    +7 (982) 972-01-76
    Начать чат с агентом
    Похожие предложения
    Таунхаус в Тюменская область, Тюмень Выборгская ул., 56 (104 м) - Фото 1
    Таунхаус в Тюменская область, Тюмень Выборгская ул., 56 (104 м) - Фото 2
    3 этажа, общая площадь 103м², участок 1 сотка

    Таунхаус 103,5 кв.м. в черте города.Таунхаус 3х этажный:1й этаж: прихожая, кухня гостинная, гостевой санузел - выполнен хороший ремонт, установлен кухонный гарнитур со встроенной техникой. Вся мебель и техника остается новым хозяевам 2й этаж: 2 спальни...
    • 3 эт.
    • 103 м²
    • 1 сот.
    10 200 000 Р
    Агент
    +7 (982) Показать номер
    Посмотреть контакты
    Таунхаус в Тюменская область, Тюмень ул. Василия Борисова (85 м) - Фото 1
    Таунхаус в Тюменская область, Тюмень ул. Василия Борисова (85 м) - Фото 2
    2 этажа, общая площадь 84м², участок 1 сотка

    Продается таунхаус в ЖК Зеленые аллеи Зеленые аллеи — это современный малоэтажный квартал в престижном пригороде Тюмени, неподалеку от Цимлянского озера, спроектированный в духе современного европейского пригорода. Стены выполнены в три слоя: облицовочный...
    • 2 эт.
    • 84 м²
    • 1 сот.
    10 500 000 Р
    Агент
    +7 (982) Показать номер
    Посмотреть контакты
    Таунхаус в Тюменская область, Тюмень ул. Алексея Рогожина (90 м) - Фото 1
    Таунхаус в Тюменская область, Тюмень ул. Алексея Рогожина (90 м) - Фото 2
    2 этажа, общая площадь 90м², участок 1 сотка

    СРОЧНАЯ ПРОДАЖА ЦЕНА НИЖЕ, ЧЕМ У ЗАСТРОЙЩИКА Без обременения и детских долей Продается таунхаус ЖК Зеленые Аллеи площадью 90,3 кв.м. с мансардным 3 этажом (не учтен в площадь двух этажей) в 45 кв.м. Таунхаус выполнен из керамзитоблока с внешнего...
    • 2 эт.
    • 90 м²
    • 1 сот.
    9 800 000 Р
    Агент
    +7 (982) Показать номер
    Посмотреть контакты
    Таунхаус в Тюменская область, Тюмень ул. Владимира Соболевского (122 ... - Фото 1
    Таунхаус в Тюменская область, Тюмень ул. Владимира Соболевского (122 ... - Фото 2
    3 этажа, общая площадь 121м², участок 1 сотка

    Предлагаем к продаже новый вариант загородной жизни со всеми условиями комфортного проживания как в квартире - Таунхаус в черте города район ММС. Дом построен из керамзитоблоков, облицован кирпичом , утеплитель минвата. Крыша металлочерепица . Газ,...
    • 3 эт.
    • 121 м²
    • 1 сот.
    9 250 000 Р
    Агент
    +7 (982) Показать номер
    Посмотреть контакты
    Таунхаус в Тюменская область, Тюмень ул. Алексея Рогожина (120 м) - Фото 1
    Таунхаус в Тюменская область, Тюмень ул. Алексея Рогожина (120 м) - Фото 2
    3 этажа, общая площадь 120м², участок 1 сотка

    Покупай сейчас - плати потом На данный объект доступна рассрочка на выгодных условияхУважаемые покупатели Вашему вниманию представлен 3-х этажный таунхаус в черте города Тюмени - отличное предложение для любителей загородной жизни Таунхаус расположен...
    • 3 эт.
    • 120 м²
    • 1 сот.
    10 400 000 Р
    Агент
    +7 (912) Показать номер
    Посмотреть контакты

    Не нашли подходящего объявления?

    Оставьте заявку, и наши риэлторы подберут таунхаус в районе Тюмени

    (0)