Реализация объекта недвижимости приостановлена

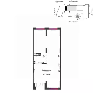
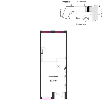
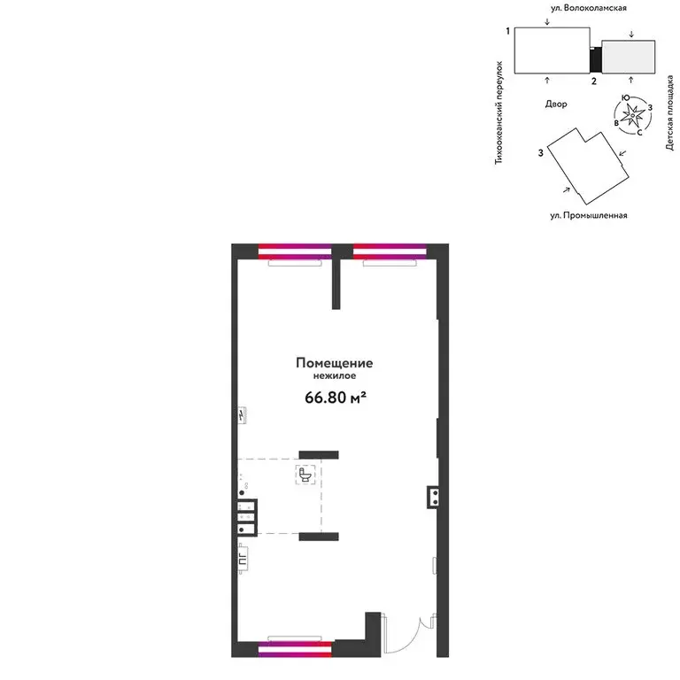
Информация об помещении

1
Этаж

Состояние и оснащение

Количество этажей
20
Развернуть

    Реализация объекта недвижимости приостановлена

    Не нашли подходящего объявления?

    Оставьте заявку, и наши риэлторы подберут торговое помещение в районе Тюмени

    (0)