Реализация объекта недвижимости приостановлена

Информация об помещении

1
Этаж

Состояние и оснащение

Количество этажей
22
Развернуть

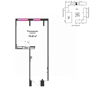
Торговая площадь (58.62 м)

Торговое помещение на 1 этаже, общая площадь 58.62 кв.м., без отделки. Стоимость помещения 10,620,, цена за кв.м 181, Подобно знаменитому исследователю, мы чувствуем себя первооткрывателями этой локации. Хотим показать новую суть места, сформировать для вас жизненный опыт, которого ещё не было. Беринг — район зелёного цвета. Беринг — район, который откроется вам с другой стороны. Впечатлит новым уровнем комфорта и качеством жизни. Беринг — открытие на карте города. Первый квартал расположен в районе Тура, в границах улиц: Камчатская – Западносибирская – Энтузиастов. Вокруг уже есть всё для того, чтобы ежедневная рутина была лишь частью жизни и не доставляла дискомфорта.Школы и детские сады, магазины и аптеки, поликлиника, места для семейного отдыха, пеших и велопрогулок, и даже рыбалки. Масштабное озеленение дворов — визитная карточка ЭНКО и ваш оазис спокойствия, чтобы отвлечься от повседневности. Раскидистые деревья, кустарники, травы и цветы — осталось остановиться, вдохнуть и расслабиться, глядя на эту природную красоту. Стилистика подъездов продолжает концепцию Беринга, вдохновлённого Камчаткой: сдержанный,но при этом впечатляющий дизайн соседствует с удобством и функциональностью. (AQID

Читать полностью

    Реализация объекта недвижимости приостановлена

    Не нашли подходящего объявления?

    Оставьте заявку, и наши риэлторы подберут торговое помещение в районе Тюмени

    (0)