Реализация объекта недвижимости приостановлена

Информация об помещении

1
Этаж

Состояние и оснащение

Количество этажей
16
Развернуть

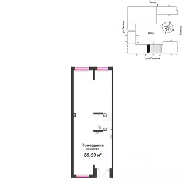
Торговая площадь (87.8 м)

Торговое помещение на 1 этаже, общая площадь 87.8 кв.м., без отделки. Стоимость помещения 17,550,, цена за кв.м 199, Вселенная бесконечных историй. Ранее невиданный Тюмени масштаб: территория 240 гектаров им застройки. Мириады – это город масштабных перемен и больших возможностей. Город зеленых рощ и зеркальных озер. Город для работы, учебы и развлечений. Город для детей и их родителей. Город для всех и каждого. Проект расположен в районе Мыс рядом с ТРЦ «Тюмень Сити Молл в границах улицы Тимофея Чаркова, Тобольского тракта и объездной дороги. Срок полного освоения территории - до 2034 года. (AQID

Читать полностью

    Реализация объекта недвижимости приостановлена

    Не нашли подходящего объявления?

    Оставьте заявку, и наши риэлторы подберут торговое помещение в районе Тюмени

    (0)