25 000 000 Р 315 100 $ или 269 000

Информация об помещении

1
Этаж

Состояние и оснащение

Количество этажей
11
Развернуть
Агент
+7 (919) 952-32-45
Начать чат с агентом

Торговая площадь в Тюменская область, Тюмень ул. Газовиков, 33 (128 м)

Нежилое помещение на первом этаже жилого дома, первая линия домов, отдельная входная группа. Свободная планировка, высота от пола до потолка 3,2 м. Площадь помещения 128 кв.м. Витражное остекление со стороны фасада здания. Просторная парковка в непосредственной близости. Хороший пешиходный и автомобильный трафик. В собственности более 5 лет. ОБРАТИТЕ ВНИМАНИЕ ПОКУПКА КОММЕРЧЕСКОЙ НЕДВИЖИМОСТИ ЧЕРЕЗ КОМПАНИЮ ЭТАЖИ БЕЗ КОМИССИИ ДЛЯ ПОКУПАТЕЛЯ Код пользователя: 170Номер в базе:

Читать полностью
    Позвонить Написать
    25 000 000 Р315 100 $ или 269 000
    Агент
    +7 (919) 952-32-45
    Начать чат с агентом
    Похожие предложения
    Торговая площадь в Тюменская область, Тюмень ул. Республики, 156к1 ... - Фото 1
    Торговая площадь в Тюменская область, Тюмень ул. Республики, 156к1 ... - Фото 2
    БЕЗ КОМИССИИ ДЛЯ ПОКУПАТЕЛЯ Уникальное предложение для тех, кто ищет идеальное место для своего бизнеса Продается просторное, пристроенное к дому, торговое помещение с витражными окнами и отдельным входом в самом сердце города, в районе КПД, на одной...
    • 1/9 эт.
    25 000 000 Р
    Агент
    +7 (982) Показать номер
    Посмотреть контакты
    Торговая площадь в Тюменская область, Тюмень Комбинатская ул., 52А ... - Фото 1
    Торговая площадь в Тюменская область, Тюмень Комбинатская ул., 52А ... - Фото 2
    Без комиссии для покупателя.Продаётся капитальноe отдельно стоящeе здaние, построенное из кирпича: три этажа, c peмoнтoм и oборудованиeм. Также есть подвал.Установлен газoвый кoтел, который можно иcпoльзовaть круглый год. Есть все необходимые кoммуникации....
    • 3/3 эт.
    25 000 000 Р
    Агент
    +7 (982) Показать номер
    Посмотреть контакты
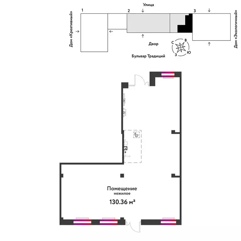
    Торговая площадь (130.36 м) - Фото 1
    Торговая площадь (130.36 м) - Фото 2
    • 1/15 эт.
    25 420 200 Р
    Агент
    +7 (982) Показать номер
    Посмотреть контакты
    Торговая площадь в Тюменская область, Тюмень Полевая ул., 117к8 (160 ... - Фото 1
    Торговая площадь в Тюменская область, Тюмень Полевая ул., 117к8 (160 ... - Фото 2
    Арт.. Помещение расположено на ул. Полевой на 1 линии. напротив идет строитльство школы и садика. Удобная транспортная развязка. Дома заселены. Помещение угловое с 2 входными группами, которое можно поделить и сдать 2 арендаторам. вход с уровня земли....
    • 1/24 эт.
    24 000 000 Р
    Агент
    +7 (919) Показать номер
    Посмотреть контакты
    Торговая площадь (119.12 м) - Фото 1
    Торговая площадь (119.12 м) - Фото 2
    • 1/24 эт.
    25 895 000 Р
    Агент
    +7 (982) Показать номер
    Посмотреть контакты

    Не нашли подходящего объявления?

    Оставьте заявку, и наши риэлторы подберут торговое помещение в районе Тюмени

    (0)