8 333 000 Р 105 300 $ или 90 730

Информация о помещении и здании

1
Этаж
5
Этажность
Развернуть
Агент
+7 (919) 920-59-79
Начать чат с агентом

Офис в Тюменская область, Тюмень ул. Республики, 173 (8333 м)

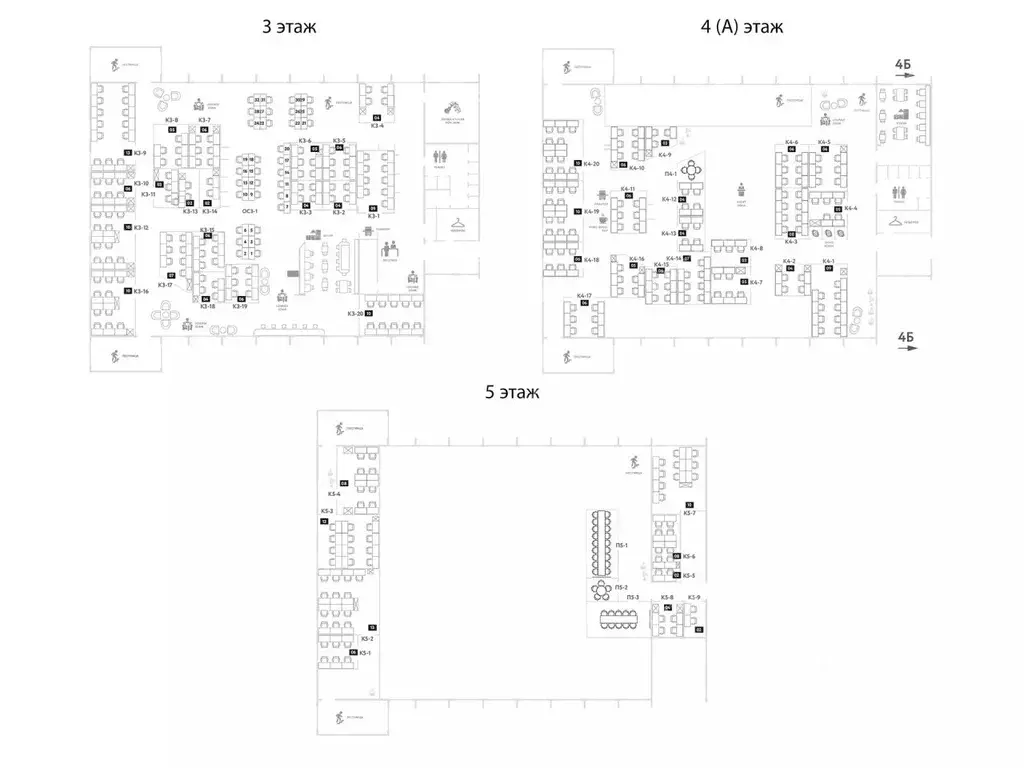
БЕЗ КОМИССИИ ДЛЯ АРЕНДАТОРА Сдается в аренду головной офис корпоративного уровня в центре ТюмениПредлагается к аренде уникальный административно-офисный комплекс на главной улице города. Объект с полностью готовой инфраструктурой для ведения бизнеса высшего уровня Общая площадь комплекса: 8 333 м Компоновка: три корпуса с переменной этажностью (5/5/3 этажей) Планировка: кабинетного типаКлючевая инфраструктура и преимущества: Собственная парковка для арендаторов (условия уточняются) Конференц-зал для проведения переговоров и презентаций Готовое помещение под столовую Отдельные кабинеты для руководства с переговорными Два пассажирских лифта Система контроля и управления доступом (СКУД) Престижный адрес на центральной улице городаСостав помещений: Корпус А: 5 этажей Корпус Б: 5 этажей Корпус В: 3 этажаОбъект оптимально подходит для: Головного офиса крупной региональной или федеральной компании Представительства международной корпорации Штаб-квартиры финансовой организации или холдинга Юридической или консалтинговой фирмы премиум-сегментаОсобенности предложения: Возможность аренды от нескольких кабинетов до целого корпуса или всего комплекса Полностью готовая инфраструктура для начала работы Лучшая транспортная доступность в городе Развитая деловая и социальная инфраструктура в шаговой доступностиЭто решение для компаний, для которых офис — это инструмент формирования корпоративной культуры и укрепления деловой репутацииРассмотрим различные варианты сотрудничества Пишите или звоните для просмотра в удобное время Дополнительно оплачивается комиссия с покупателя. Номер объекта: 1798335

Читать полностью
    Позвонить Написать
    8 333 000 Р105 300 $ или 90 730
    Агент
    +7 (919) 920-59-79
    Начать чат с агентом
    Похожие предложения
    Офис в Санкт-Петербург Малоохтинский просп., 68 (1530 м) - Фото 1
    Офис в Санкт-Петербург Малоохтинский просп., 68 (1530 м) - Фото 2
    1-й этаж, всего 5 этажей

    Офисное помещение 1 530 кв. м в бизнес-центре REGUL.Район: Красногвардейский. Ближайшие станции метро: Новочеркасская, Площадь Александра Невского-1. Характеристики:- Класс: B+; - Арендопригодная площадь: 4845; - Код налоговой: 06; - Размер типового этажа:...
    • 1/5 эт.
    8 300 250 Р
    Агент
    +7 (981) Показать номер
    Посмотреть контакты
    Офис в Москва Поклонная ул., 3к2 (1326 м) - Фото 1
    Офис в Москва Поклонная ул., 3к2 (1326 м) - Фото 2
    1-й этаж, всего 20 этажей

    Бизнес-центр Poklonka Place класса AПлощадь: 1 325,9 м2Арендная ставка: 75 085,. за м2 в год включая НДССтоимость площади в месяц:,. включая НДССистема налогообложения: НДСГотовность: готово к въездуЭтаж: 1Планировка: кабинетнаяНаличие с/у: , ВнутриСтатус:...
    • 1/20 эт.
    8 296 000 Р
    Агент
    +7 (911) Показать номер
    Посмотреть контакты
    Офис в Москва Новохохловская ул., 29 (2822 м) - Фото 1
    Офис в Москва Новохохловская ул., 29 (2822 м) - Фото 2
    9-й этаж, всего 9 этажей

    Экономьте время и деньги: отрисуем планировку под вас бесплатно, с любым количеством правок. Предлагаем в аренду офис в бизнес-центре Ринг Парк по адресу: г Москва, ул Новохохловская, д 29.Рабочих мест: от 353 до 627*.Площадь: 2 822 м2.Планировка: смешанная.Состояние:...
    • 9/9 эт.
    8 230 833 Р
    Агент
    +7 (980) Показать номер
    Посмотреть контакты
    Офис (308 м) - Фото 1
    Офис (308 м) - Фото 2
    3-й этаж, всего 5 этажей

    Лот №1050644 Предложение от Собственника Напишите нам в Ватсап, чтобы получить ПОДРОБНУЮ ПРЕЗЕНТАЦИЮ С ПЛАНИРОВКОЙ И ФОТОГРАФИЯМИ Предлагается к аренде офисное помещение на 3 этаже бизнес-центра Signature Столешников, офис площадью 308.1 массчитан наабочих...
    • 3/5 эт.
    8 204 575 Р
    Агент
    +7 (931) Показать номер
    Посмотреть контакты
    Офис в Москва ул. Сущевский Вал, 18 (1862 м) - Фото 1
    Офис в Москва ул. Сущевский Вал, 18 (1862 м) - Фото 2
    10-й этаж, всего 22 этажа

    Экономьте время и деньги: отрисуем планировку под вас бесплатно, с любым количеством правок. Предлагаем в аренду офис в бизнес-центре НОВО (Новосущевский) по адресу: Москва, улица Сущёвский Вал, 18.Рабочих мест: от 233 до 413*.Площадь: 1 862 м2.Планировка:...
    • 10/22 эт.
    8 339 333 Р
    Агент
    +7 (980) Показать номер
    Посмотреть контакты

    Не нашли подходящего объявления?

    Оставьте заявку, и наши риэлторы подберут офис в районе Тюмени

    (0)