100 000 Р 1 230 $ или 1 060

Информация об помещении

1
Этаж

Состояние и оснащение

Количество этажей
2
Развернуть
Агент
+7 (912) 383-69-40
Начать чат с агентом

Помещение свободного назначения в Тюменская область, Тюмень ул. ...

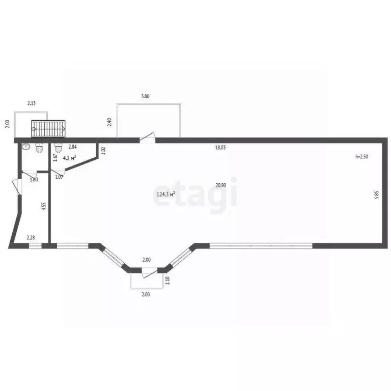
БЕЗ КОМИССИИ ДЛЯ АРЕНДАТОРА Помещение свободного назначения площадью 128,5 масположено в отдельно стоящем здании на 1 этаже , возможно использование под спортивные секции, танцевальные студии, кафе, офис и многое другоеПомещение имеет собственный санузел и подготовлено к использованию: выполнен качественный косметический ремонт, позволяющий начать работу сразу после заключения договора. Здание оснащено системой круглосуточной охраны, обеспечивающей безопасность, и обладает собственной большой парковочной зоной для клиентов и персонала. Высота потолков и конфигурация пространства предоставляют широкие возможности для планировки под различные виды коммерческой деятельности: офис, розничная торговля, оказание услуг. Это решение оптимально для бизнеса, ориентированного на клиентский трафик и создание профессионального имиджа.Объект находится в стратегически важном районе Тюмени с исключительной транспортной доступностью, что обеспечивает постоянный поток клиентов и удобство для сотрудников. В непосредственной близости расположены автовокзал, деловой центр Малахит , многочисленные офисные здания и торговая инфраструктура. ОБРАТИТЕ ВНИМАНИЕ АРЕНДА КОММЕРЧЕСКОЙ НЕДВИЖИМОСТИ ЧЕРЕЗ КОМПАНИЮ ЭТАЖИ БЕЗ КОМИССИИ ДЛЯ АРЕНДАТОРА Код пользователя: 14727Номер в базе: 9752375

Читать полностью
    Позвонить Написать
    100 000 Р1 230 $ или 1 060
    Агент
    +7 (912) 383-69-40
    Начать чат с агентом
    Похожие предложения
    Помещение свободного назначения в Тюменская область, Тюмень ул. ... - Фото 1
    Помещение свободного назначения в Тюменская область, Тюмень ул. ... - Фото 2
    Сдается в аренду уникальное помещение свободного назначения. Площадь 72 кв. м.; 1 этаж жилого дома; 1 линия; Электрическая мощность 150 кВт Современная пожарно-охранная сигнализация, обеспечивающая безопасность вашего бизнеса; Высокий пешеходный...
    • 1/5 эт.
    108 000 Р
    Агент
    +7 (919) Показать номер
    Посмотреть контакты
    Помещение свободного назначения в Тюменская область, Тюмень ул. ... - Фото 1
    Помещение свободного назначения в Тюменская область, Тюмень ул. ... - Фото 2
    Предлагаем в аренду помещение 95,6 кв.м на главной улице города, можно взять 191,2 кв.м.БЕЗ КОМИССИИ ДЛЯ АРЕНДАТОРА*трафик от магазина Светлое и Темное *высота потолков - 4м*удобная транспортная развязка*рядом автобусные остановки___________________________________Регион...
    • 1/12 эт.
    105 160 Р
    Агент
    +7 (982) Показать номер
    Посмотреть контакты
    БЕЗ КОМИССИИ Сдается нежилое помещение под кофейню / пекарню, расположенное в центре города на 1-ой линии ул. Республики, 10, район Моста Влюбленных (общей площадью - 70 кв.м., 2 зала, современный интерьер, витражное остекление, санузел, вентиляция, кондиционирование,...
    • 1/4 эт.
    105 000 Р
    Агент
    +7 (912) Показать номер
    Посмотреть контакты
    Помещение свободного назначения в Тюменская область, Тюмень ул. ... - Фото 1
    Помещение свободного назначения в Тюменская область, Тюмень ул. ... - Фото 2
    БЕЗ КОМИССИИ ДЛЯ АРЕНДАТОРА Сдаётся помещение свободного назначения 96 кв.м. в ЖК Айвазовский. Помещение с отдельным входом на 1 линии, большой паркинг. Входная группа с уровня земли. Свободная планировка с минимальным количеством несущих конструкций....
    • 1/23 эт.
    105 600 Р
    Агент
    +7 (919) Показать номер
    Посмотреть контакты
    Помещение свободного назначения в Тюменская область, Тюмень ул. ... - Фото 1
    Помещение свободного назначения в Тюменская область, Тюмень ул. ... - Фото 2
    БЕЗ КОМИССИИ ДЛЯ АРЕНДАТОРА Сдается от личное коммерческогое помещение в мкр. Ново-Патрушево- площадь 78.7 кв м- 1 этаж- центральные коммуникации- электрическая мощность - 15 кВт- Помещение расположено в густонаселенном районе, с отличным пешеходным и...
    • 1/15 эт.
    106 245 Р
    Агент
    +7 (919) Показать номер
    Посмотреть контакты

    Не нашли подходящего объявления?

    Оставьте заявку, и наши риэлторы подберут псн в районе Тюмени

    (0)