Россия, Тюменская область, Тюмень, ул. Разведчика Кузнецова, 5
940 000 Р 11 620 $ или 10 070

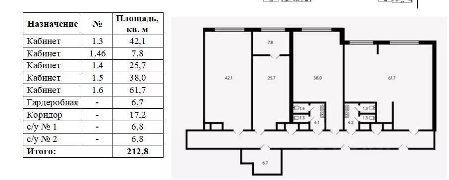
Информация об помещении

2
Этаж

Состояние и оснащение

Количество этажей
2
Развернуть
Агент
+7 (982) 780-72-47
Начать чат с агентом

Помещение свободного назначения в Тюменская область, Тюмень ул. ...

Уникальное помещение в центре перспективной деловой активности.Это отдельно стоящее здание 2 входные группы и лифт.Помещение находится в 5-м Заречном районе.Это новый район города с готовым трафиком.Рядом расположены: Офис компании Новатэк, Новый городской пляж. Строится студенческий кампус.На первом этаже кафе Пицца Миа.В настоящее время продолжается активная застройка данного района. Количество жителей растёт с каждым днём, а так же популярность района возрастает. Данное помещение может отлично подойти для таких направлений как:Ресторан - рядом нехватка качественного места общественного питанияОфис компании. Открытая планировка с возможностью организации кабинетов. Имеются парковочные места.заведение дошкольного образования.медицинский центр.спортивный залБлагодаря открытой планировки помещение можно приспособить под любой запрос. 2 свои входные группы. Индивидуальный пассажирский лифт. 120 кВт электрической мощности.Отсутствие жилых помещений сверху - это большой для плюс.Если вас интересует данное помещение и вы хотите его посмотреть - обращайтесь. Наши услуги для вас бесплатны Номер объекта: 1/537115/24036

Читать полностью
    Позвонить Написать
    940 000 Р11 620 $ или 10 070
    Агент
    +7 (982) 780-72-47
    Начать чат с агентом
    Похожие предложения
    Помещение свободного назначения в Новосибирская область, Новосибирск ... - Фото 1
    Помещение свободного назначения в Новосибирская область, Новосибирск ... - Фото 2
    Код объекта: 1409452. Эксклюзивное предложение , половина этажа в аренду в новых , современных аппартаментах 727,6 м2 с витражным остеклением могуть быть Вашими Удобная локация как для сотрудников , так и для Ваших клиентов ( 8 минут пешком до Речного...
    • 5/14 эт.
    945 880 Р
    Агент
    +7 (983) Показать номер
    Посмотреть контакты
    Помещение свободного назначения в Ярославская область, Ярославль ... - Фото 1
    Помещение свободного назначения в Ярославская область, Ярославль ... - Фото 2
    ОТ СОБСТВЕННИКА. БЕЗ КОМИССИИ ДЛЯ АРЕНДАТОРА.* Работаем без выходных и праздников. Звоните с 10:00 до 20:00 *Сдам помещения в новом ТЦ в 120 м от Ленинградского пр-та.Адрес: ТЦ рядом с домом Ленинградский пр-т, 62 корп. 3 (ТЦ, третий этаж, центральный...
    • 3/3 эт.
    945 000 Р
    Агент
    +7 (915) Показать номер
    Посмотреть контакты
    Помещение свободного назначения в Москва Майприорити Дубровка жилой ... - Фото 1
    Помещение свободного назначения в Москва Майприорити Дубровка жилой ... - Фото 2
    ЖК MYPRIORITY Дубровка - жилой комплекс бизнес-класса, который ГК Гранель возводит в ЮВАО Москвы, в динамично развивающемся районе с богатой историей. Ближайшая станция метро - Дубровка . Объект расположен в шаговой доступности от зоны Южного порта,...
    • 1/30 эт.
    933 300 Р
    Агент
    +7 (915) Показать номер
    Посмотреть контакты
    Помещение свободного назначения в Калининградская область, Калининград ... - Фото 1
    Помещение свободного назначения в Калининградская область, Калининград ... - Фото 2
    Арт.Cдаётся отдельно стоящее коммерческое строение в нежилом фонде. Помещения свободного назначения. Общая площадь 1947.6 кв.м. Площадь 1-го этажа - 705,4 м2.Площадь 2-го этажа - 704,2 м2,Площадь подвала - 538 м2.Сделан косметический ремонт. Центральное...
    • 1/2 эт.
    950 000 Р
    Агент
    +7 (911) Показать номер
    Посмотреть контакты
    Помещение свободного назначения в Москва Трубниковский пер., 11 (241 ... - Фото 1
    Помещение свободного назначения в Москва Трубниковский пер., 11 (241 ... - Фото 2
    Лот 264 618 ПРЯМАЯ АРЕНДА.м. Смоленская, 10 минут пешком. Сдаётся помещение 241 м. ОСНОВНЫЕ ХАРАКТЕРИСТИКИ:1-я линия домов. Отдельный вход.Подвальное помещение: 241 м Жилой здание. Летняя веранда 240 мВытяжка под общепит.Потолки 2,8 метров. 35 кВт.(Увеличение...
    • 1/5 эт.
    949 990 Р
    Агент
    +7 (923) Показать номер
    Посмотреть контакты

    Не нашли подходящего объявления?

    Оставьте заявку, и наши риэлторы подберут псн в районе Тюмени

    (0)