Реализация объекта недвижимости приостановлена

Информация об помещении

1
Этаж

Состояние и оснащение

Количество этажей
5
Развернуть

Помещение свободного назначения в Тюменская область, Тюмень ул. ...

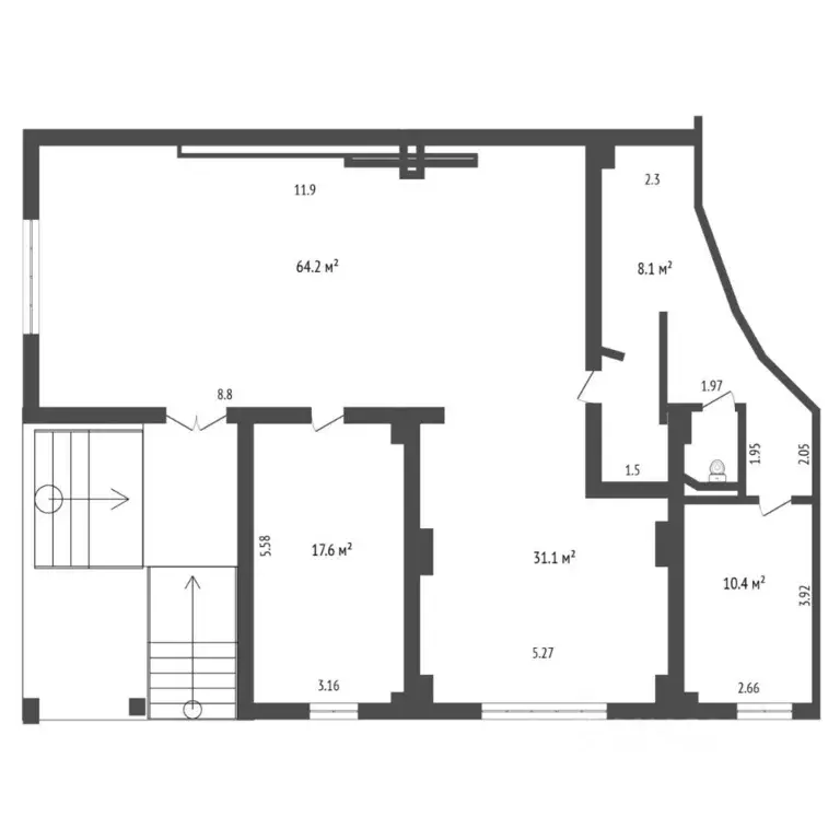
Предлагается в аренду идеальное помещение для организации бизнеса в сфере питанияИщете привлекательное пространство для открытия своей кофейни или заведения общественного питания? У вас появилась уникальная возможность арендовать помещение площадью 153 квадратных метра, расположенное в самом сердце исторического центра города — на пересечении оживленных улиц Челюскинцев и Володарского.Основные характеристики предлагаемого пространства:- Удобство расположения на первом этаже здания с отдельным входом.- Отличная видимость благодаря четырем большим витражным окнам.- Просторная и функциональная свободная планировка позволяет воплотить любые дизайнерские решения.- Высокие потолки высотой 3,2 метра обеспечивают ощущение простора и свободы.- Уже обустроено специальное место для оборудования холодного цеха.- Организована качественная система вентиляции с притоком свежего воздуха и вытяжкой отработанного.- Подключены необходимые мощности электроснабжения (25 кВт).- Возможность удобной доставки товаров и продуктов через дополнительный подъезд со стороны двора или непосредственно с улицы.Преимуществом выбора именно нашего помещения станет также исключительно высокая проходимость, позволяющая быстро привлечь большое количество посетителей как среди автомобилистов, так и среди пеших гостей района.Обратитесь по указанному телефону прямо сейчас, чтобы обсудить условия аренды и договориться о просмотре вашего будущего успешного проекта Комиссия для арендаторов отсутствует. Дополнительно оплачивается комиссия с покупателя. Номер объекта: 3881736

Читать полностью

    Реализация объекта недвижимости приостановлена

    Не нашли подходящего объявления?

    Оставьте заявку, и наши риэлторы подберут псн в районе Тюмени

    (0)