Россия, Тюменская область, Тюмень, ул. Юрия Рогачева, 11к2
60 000 Р 843 $ или 727

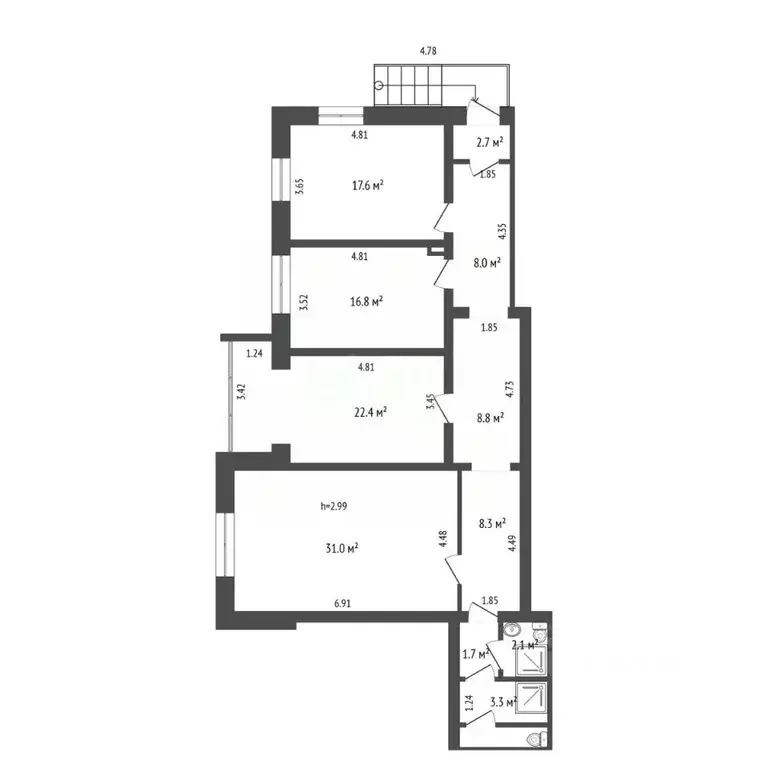
Информация об помещении

1
Этаж

Состояние и оснащение

Количество этажей
17
Развернуть
Агент
+7 (982) 982-51-66
Начать чат с агентом

Помещение свободного назначения в Тюменская область, Тюмень ул. Юрия ...

Сдается коммерческое помещение на долгосрочной основе в престижном районе города в жк Чаркова 72, построенного федеральным застройщиком Самолет.Расчеты следующим образом: с 1 по 3 мес60.уб, с 4 по 6 мес 70.уб, с 7 по 9 мес 80.уб, с 10 по 12 мес 90.уб, с 1 года по 2 год 100.уб с 2 года по 3 год 120.убИндексация не более 15 в год.Район Мыс, рядом с крупным ТЦ Сити Молл.Преимущества помещения:Расположение на первой линии с отдельным входом, ориентированным на оживленную пешеходную зону.Просторная площадь с большими окнами обеспечивает естественный свет и привлекательную витринную экспозицию.Высокие потолки создают дополнительное пространство и возможности дизайна интерьера.Улучшенный черновая отделка позволяет реализовать любые дизайнерские решения под нужды вашего бизнеса.Помещение ранее не использовалось, предоставляется арендатору впервые.На прилегающей территории активно проживает молодая аудитория семей с детьми, а также соседствует с крупным жилым комплексом с высоким уровнем заселенности, гарантирующим стабильный поток потенциальных клиентов.Откройте здесь свой вид бизнеса и получите выгодное расположение с огромным потенциалом развития.

Читать полностью
    Позвонить Написать
    60 000 Р843 $ или 727
    Агент
    +7 (982) 982-51-66
    Начать чат с агентом
    Похожие предложения
    Помещение свободного назначения в Тюменская область, Тюмень ул. ... - Фото 1
    Помещение свободного назначения в Тюменская область, Тюмень ул. ... - Фото 2
    Предлагается в аренду цокольное помещение, общей площадью 100 кв.м. Можно взять 200 кв.м.БЕЗ КОМИССИИ ДЛЯ АРЕНДАТОРАПрактически, 1-я линия, трафикДо исторического центра 5 минут на авто, пешком - 15 минутЕсть окнаМощность электричества - 20 кВтВысота...
    • -1/2 эт.
    60 000 Р
    Агент
    +7 (982) Показать номер
    Посмотреть контакты
    Помещение свободного назначения в Тюменская область, Тюмень ул. ... - Фото 1
    Помещение свободного назначения в Тюменская область, Тюмень ул. ... - Фото 2
    Предлагаем в аренду коммерческую недвижимость. Это помещение расположено в выгодной локации, соединяющей два активно развивающихся района: ЖК Краснолесье с 14 сданными домами и ЖК Мозаика Парк с 5 многоподъездными зданиями. В непосредственной близости...
    • 1/10 эт.
    60 000 Р
    Агент
    +7 (919) Показать номер
    Посмотреть контакты
    Помещение свободного назначения в Тюменская область, Тюмень ул. ... - Фото 1
    Помещение свободного назначения в Тюменская область, Тюмень ул. ... - Фото 2
    Сдам помещение свободного назначения с отличным трафиком и плотной жилой застройкой Площадь помещения 60 м; Арендная ставкауб/м, Коммунальные услуги оплачиваются отдельно; Выделено 15 кВт эл. мощности Потолки - 2.5 м; Есть две сплит системы и видеонаблюдение;...
    • 1/9 эт.
    60 000 Р
    Агент
    +7 (982) Показать номер
    Посмотреть контакты
    Помещение свободного назначения в Тюменская область, Тюмень ул. 50 лет ... - Фото 1
    Помещение свободного назначения в Тюменская область, Тюмень ул. 50 лет ... - Фото 2
    БЕЗ КОМИССИИ ДЛЯ АРЕНДАТОРА Сдается цокольное помещение-кухня, которое идеально подойдет для приготовления еды на заказ/доставку. Ремонт выполнен, вам останется только его освежить, мощность - 40 киловатт. Помимо основного помещения для готовки, имеются...
    • -1/2 эт.
    60 000 Р
    Агент
    +7 (912) Показать номер
    Посмотреть контакты
    Помещение свободного назначения в Тюменская область, Тюмень Заречный ... - Фото 1
    Помещение свободного назначения в Тюменская область, Тюмень Заречный ... - Фото 2
    Без комиссии для арендатора Сдается в аренду нежилое помещение свободного назначения, площадь - 54,6 кв.м. Расположено во 2-м Заречном микрорайоне.Высокий трафик потенциальных клиентов. Хорошая инфраструктура района.Помещение находится на первом этаже...
    • 1/10 эт.
    60 000 Р
    Агент
    +7 (919) Показать номер
    Посмотреть контакты

    Не нашли подходящего объявления?

    Оставьте заявку, и наши риэлторы подберут псн в районе Тюмени

    (0)