754 320 Р 9 770 $ или 8 240

Информация об помещении

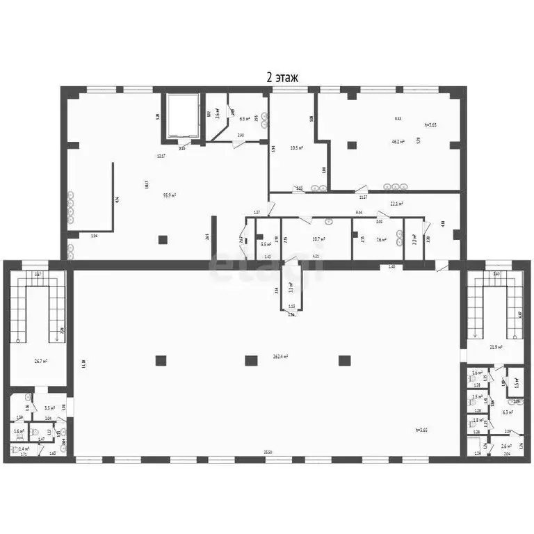
2
Этаж

Состояние и оснащение

Количество этажей
14
Развернуть
Агент
+7 (982) 932-16-30
Начать чат с агентом

Помещение свободного назначения в Тюменская область, Тюмень ул. ...

Уникальное предложение для успешного бизнеса: коммерческое помещение в центре жилого комплекса На Полевой Ваши возможности не ограничены: на продаже просторное помещение 942,9 м на втором этаже с витражным фасадом прямо на первой линии. Каждый день мимо вас будут проходить потенциальные клиенты — активный пешеходный и автомобильный трафик гарантирован благодаря удачному расположению рядом с крупными магистралями, остановками транспорта, институтом, судом и спортивным дворцом.Главные преимущества:Большая площадь (942,9 м) и высота потолков 3,5 м — создайте пространство своей мечты: от супермаркета до фитнес-центра или современного офиса.Эффектное фасадное остекление для максимальной видимости и размещения рекламы.Свободная планировка: воплощайте любые дизайнерские решения — никаких ограничений Мощность 37 кВт — для любых технологичных задач.Собственная парковка вдоль фасада, удобная для ваших клиентов и сотрудников — комфорт в мелочах.Все коммуникации заведены и сделана чистовая отделка — начинайте работу сразу после сделки, не теряйте время и деньги.Окружение: уже сложившаяся инфраструктура, солидные соседи и постоянный поток людей.Успейте приобрести помещение, которое не только отвечает всем требованиям современных бизнесменов, но и выгодно выделит ваш проект среди конкурентов. Номер предложения: 41877.

Читать полностью
    Позвонить Написать
    754 320 Р9 770 $ или 8 240
    Агент
    +7 (982) 932-16-30
    Начать чат с агентом
    Похожие предложения
    Помещение свободного назначения (500 м) - Фото 1
    Помещение свободного назначения (500 м) - Фото 2
    Отдельно стоящее здание каждый этаж 500 кв м , есть две лестницы , можно рассмотреть как аренду поэтажно, так и все здание. Рассмотрим все предложения. В здании есть вытяжка. Помещения свободной планировки с подсобными помещениями. Уникальное предложение...
    • 2/3 эт.
    750 000 Р
    Агент
    +7 (992) Показать номер
    Посмотреть контакты
    Помещение свободного назначения в Тюменская область, Тюменский ... - Фото 1
    Помещение свободного назначения в Тюменская область, Тюменский ... - Фото 2
    Сдам в аренду коммерческое помещение общей площадью - 950 м2. на земельном участке площадью 16.4 соткиНа первом этаже два заезда под гараж с ямой с слесарными помещениями.На втором и третем этаже расположены офисные помещения.Квартал располагается в...
    • 1/3 эт.
    750 000 Р
    Агент
    +7 (982) Показать номер
    Посмотреть контакты
    Помещение свободного назначения в Саратовская область, Балашов ул. ... - Фото 1
    Помещение свободного назначения в Саратовская область, Балашов ул. ... - Фото 2
    сдаются в аренду в самом центра города два этажа с разными площадями. Новый ремонт, новые радиаторы, на поту плитка, новая проводка. 1 этаж -уб за кв.м. площади 25 кв.м, 45кв.м, 50-100 кв.м, аренда кафе 100-400 кв.м. 2 ой этажуб за кв.м. + 50 единовременно....
    • 2/4 эт.
    750 000 Р
    Агент
    +7 (987) Показать номер
    Посмотреть контакты
    Помещение свободного назначения в Ульяновская область, Ульяновск ул. ... - Фото 1
    Помещение свободного назначения в Ульяновская область, Ульяновск ул. ... - Фото 2
    Предлагаем вашему вниманию просторное коммерческое помещение площадью 1000 квадратных метров, расположенное на первой линии домов в самом сердце города. Это уникальное предложение идеально подойдет для реализации масштабных бизнес-проектов и амбициозных...
    • 2/3 эт.
    750 000 Р
    Агент
    +7 (917) Показать номер
    Посмотреть контакты
    Помещение свободного назначения в Белгородская область, Валуйки ... - Фото 1
    Помещение свободного назначения в Белгородская область, Валуйки ... - Фото 2
    Сдается в аренду торговый комплекс, общей площадью 1678,3 квм. расположенный по адресу: Белгородская обл., г. Валуйки, Привокзальная пл., д.8Объект расположен рядом с центральным рынком и авто вокзалом в шаговой доступности жд вокзал.Стоимость за 1 кв.м....
    • 3/3 эт.
    740 131 Р
    Агент
    +7 (919) Показать номер
    Посмотреть контакты

    Не нашли подходящего объявления?

    Оставьте заявку, и наши риэлторы подберут псн в районе Тюмени

    (0)