158 000 000 Р 2 077 500 $ или 1 762 900

Информация об помещении

1
Этаж

Состояние и оснащение

Количество этажей
1
Развернуть
Агент
+7 (982) 923-06-12
Начать чат с агентом

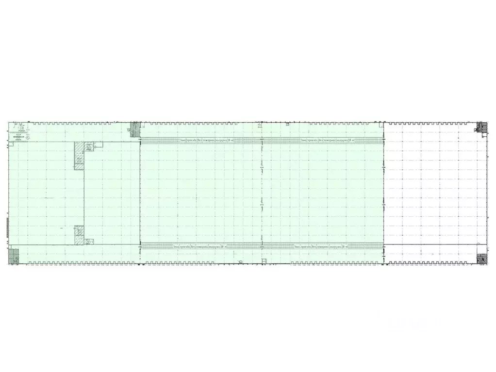
Склад в Тюменская область, Тюмень Антипино мкр, ул. Гуляева, 22 (20000 ...

Складские помещения от 1500 м до 20 000 мИщите склад в аренду с отличной транспортной доступностью? Наш объект в микрорайоне Антипино предлагает идеальные условия для вашего бизнеса.- Площадь блоков: от 1500 м до 20 000 м, с возможностью деления и внесения изменений по техническому заданию клиента.Технические характеристики: - Тип погрузки: ворота/док.- Шаг колонн: 12х18, 12х12, 12х24, 18х24- Рабочая высота: от 8 до 12 метров в зависимости от типа объекта.- Нагрузка на пол: от 5 тонн/м. - Уровень пола: 0 или 1,2 метра.- Инфраструктура: система пожаротушения, парковка для грузового и легкового транспорта.- Дополнительные возможности: аренда офисных помещений, дополнительные требования по согласованию.Преимущества:Наши складские помещения идеально подходят как для производства, так и для хранения продукции. Опытный девелопер гарантирует высокое качество и надежность объектов. Отличная транспортная доступность, гибкие условия аренды.Хотите узнать больше о наших складских помещениях в аренду или продажу? Получите консультацию, где мы подробно расскажем о проекте и вы получите индивидуальные условия по проекту. Мы всегда на связи

Читать полностью
    Позвонить Написать
    158 000 000 Р2 077 500 $ или 1 762 900
    Агент
    +7 (982) 923-06-12
    Начать чат с агентом
    Похожие предложения
    Склад в Московская область, Домодедово городской округ, д. Кучино 50Б ... - Фото 1
    Склад в Московская область, Домодедово городской округ, д. Кучино 50Б ... - Фото 2
    Складское помещение 92 424.3 кв. м в NK Парк Домодедово 2 .Направление: Юг. Шоссе: Симферопольское, Каширское, Трасса М4 Дон. Расстояние от МКАД: 17 км. Характеристики:- Класс: A; - Ворота: Доки; - Тип склада: Сухой склад; - Высота потолков: 12 м; -...
    • 1/1 эт.
    166 086 468 Р
    Агент
    +7 (915) Показать номер
    Посмотреть контакты
    Склад в Московская область, Богородский городской округ, Обухово пгт, ... - Фото 1
    Склад в Московская область, Богородский городской округ, Обухово пгт, ... - Фото 2
    Складское помещение 122 372 кв. м в А2 Обухово .Направление: Восток. Шоссе: Горьковское. Расстояние от МКАД: 29 км. Характеристики:- Класс: A; - Ворота: Доки; - Тип склада: Сухой склад; - Высота потолков: 12 м, 13 м; - Нагрузка на пол: 8 т/ кв.м; -...
    • 1/1 эт.
    159 205 972 Р
    Агент
    +7 (915) Показать номер
    Посмотреть контакты
    Склад в Московская область, Раменский муниципальный округ, д. Кошерово ... - Фото 1
    Склад в Московская область, Раменский муниципальный округ, д. Кошерово ... - Фото 2
    Склад класс АНа Участке пл. 32 га в Раменском го округе в границах сельского поселения Гжельское, 39 км от МКАД, Рядом: ЦКАД, А 107 (Московское малое кольцо) и Егорьевского шоссе. Подъезд на участок возможен с внешней стороны автомобильной дороги А...
    • 1/1 эт.
    158 050 000 Р
    Агент
    +7 (985) Показать номер
    Посмотреть контакты
    Склад в Московская область, Богородский городской округ, Обухово пгт, ... - Фото 1
    Склад в Московская область, Богородский городской округ, Обухово пгт, ... - Фото 2
    Отапливаемый склад в субаренду без комиссии. Класс A. Объявление актуально. Охраняемая территория. 26 км от МКАД. Никаких скрытых платежей. Открыты к диалогу по условиям аренды. ID объекта 4259. Добавьте в избранное, чтобы не потерять Общая площадь:...
    • 1/1 эт.
    159 246 355 Р
    Агент
    +7 (982) Показать номер
    Посмотреть контакты
    Склад в Московская область, Богородский городской округ, Обухово пгт  ... - Фото 1
    Склад в Московская область, Богородский городской округ, Обухово пгт  ... - Фото 2
    Адрес: Московская обл, г Ногинск, пгт Обухово, тер Обухово-Парк (Восток, 45 км от МКАД).Общая площадь 210372 мОтправим презентацию, организуем просмотр в удобное для вас время ID: MR-4095
    • 1/1 эт.
    159 246 763 Р
    Агент
    +7 (915) Показать номер
    Посмотреть контакты

    Не нашли подходящего объявления?

    Оставьте заявку, и наши риэлторы подберут склад в районе Тюмени

    (0)