Реализация объекта недвижимости приостановлена

Информация об помещении

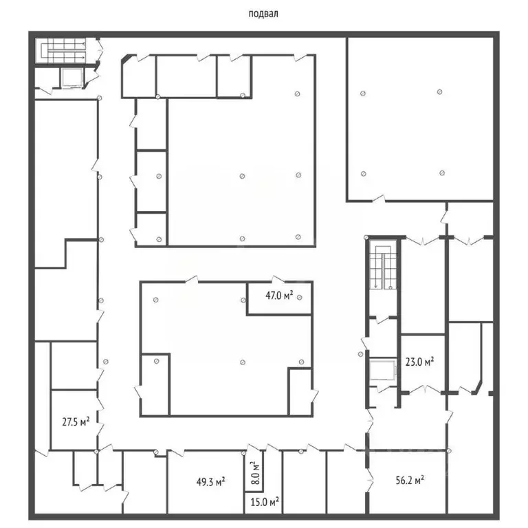
цоколь
Этаж

Состояние и оснащение

Количество этажей
5
Развернуть

Склад в Тюменская область, Тюмень Советская ул., 54 (49 м)

БЕЗ КОМИССИИ ДЛЯ АРЕНДАТОРА В самом Центре города сдаются помещения в цокольном этаже от 15 м.кв до 230 м.кв. Площади идеально подойдут под хранение/склад. Электрическая мощность 15 кВт, есть возможность увеличения до 40 кВт. Удобный подъезд к зданию, через шлакбаум - имеется парковка. Все помещения закрыты сеткой и оборудованы дверями с замками Входная группа с видеонаблюдением. Возможно выделить удобную для вас площадь. Все что видите на фотографиях, (коробки, оборудование) все будет вывезено к заезду арендатора Заинтересовало предложение? Звоните ОБРАТИТЕ ВНИМАНИЕ АРЕНДА КОММЕРЧЕСКОЙ НЕДВИЖИМОСТИ ЧЕРЕЗ КОМПАНИЮ ЭТАЖИ БЕЗ КОМИССИИ ДЛЯ АРЕНДАТОРА Код пользователя: 63239Номер в базе: 4264837

Читать полностью

    Реализация объекта недвижимости приостановлена

    Не нашли подходящего объявления?

    Оставьте заявку, и наши риэлторы подберут склад в районе Тюмени

    (0)