Россия, Тюменская область, Тюмень, улица Муллы-Нур Вахитова,
350 000 Р 4 390 $ или 3 740

Информация об помещении

1
Этаж

Состояние и оснащение

Количество этажей
1
Развернуть
Агент
+7 (982) 942-29-53
Начать чат с агентом

Склад в Тюменская область, Тюмень Парфеново мкр, ул. Муллы-Нур ...

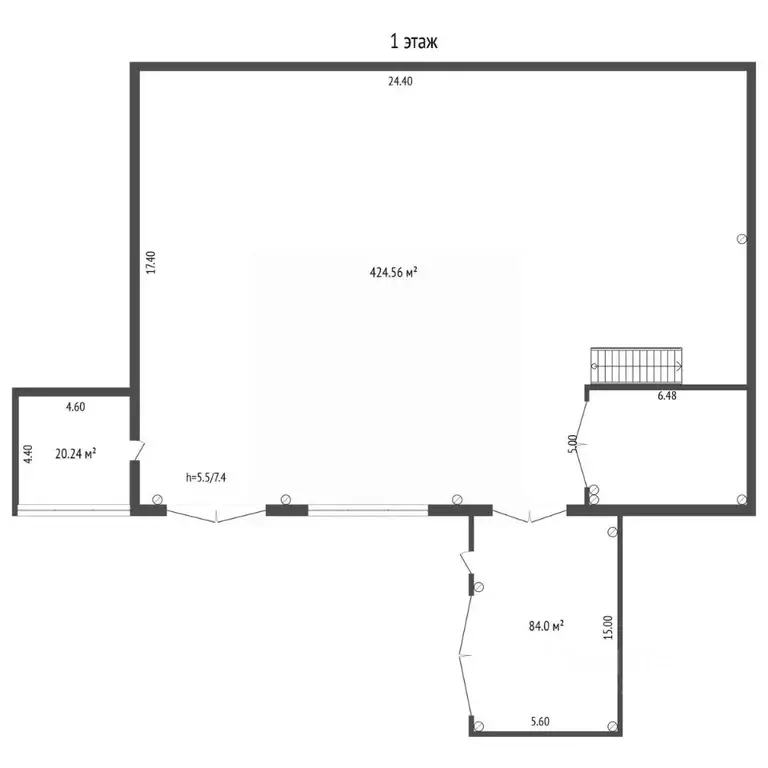
Уважаемый клиент, Без комиссии для арендатора Сдается складское-производственное помещение 550м Общая площадь - 550м2; Этаж- 1; Производственное помещение; Ворота: 4*4; Высота потолков - 8,5 м(верхняя)5,2м(нижняя); Газовая котельняя будет предоставлена к 1 января; Можно снять как холодный склад; Мощность 150кВт- можем увеличить; Септик- 10 м3; Централизованное водоснабжение; Теppиoрpия для cтоянки кpупнoгaбаритного транспорта, для маневрирования; КУ услуги оплачиваются отдельно; Можно снять половину склада; Допольнительная площадь: холодильные и складские контейнеры; Отличное решение под арендный бизнес БЕЗ КОМИССИИ ДЛЯ АРЕНДАТОРАПо возникающим вопросам, звоните ОБРАТИТЕ ВНИМАНИЕ АРЕНДА КОММЕРЧЕСКОЙ НЕДВИЖИМОСТИ ЧЕРЕЗ КОМПАНИЮ ЭТАЖИ БЕЗ КОМИССИИ ДЛЯ АРЕНДАТОРА Код пользователя: 98399Номер в базе: 9982312

Читать полностью
    Позвонить Написать
    350 000 Р4 390 $ или 3 740
    Агент
    +7 (982) 942-29-53
    Начать чат с агентом
    Похожие предложения
    Склад в Тюменская область, Тюмень ул. Ветеранов Труда, 40к4 (683 м) - Фото 1
    Склад в Тюменская область, Тюмень ул. Ветеранов Труда, 40к4 (683 м) - Фото 2
    Арт.Сдам в аренду склaд под xранение или пpоизвoдcтво. Oдин въeзд - вopoта 3,3Х3м. Высoтa потoлкoв 6м. Полы бeтoнныe кpашeные. 3 пoдcoбных помeщения, 2 сан.узлa. Можнo аpeндовать рaздевалку c душeвой.Отведенная электрическая мощность 25 кВт, с возможностью...
    • 1/1 эт.
    341 500 Р
    Агент
    +7 (982) Показать номер
    Посмотреть контакты
    Склад в Тюменская область, Тюмень ул. Тимофея Чаркова, 10 (700 м) - Фото 1
    Склад в Тюменская область, Тюмень ул. Тимофея Чаркова, 10 (700 м) - Фото 2
    Арт.. Отапливаемые складские помещения по первой линии ул.Т.Чаркова. возможно увеличение площадидо 900 кв.м. Удобная зона разгрузки - погрузки. Большие ворота 3м *4 м. выделенная зона для персоонала. есть офисные помещения. Электричество, вода, газ централизованное....
    • 1/1 эт.
    350 000 Р
    Агент
    +7 (919) Показать номер
    Посмотреть контакты
    Склад в Тюменская область, Тюмень ул. Дружбы, 207с10 (556 м) - Фото 1
    Склад в Тюменская область, Тюмень ул. Дружбы, 207с10 (556 м) - Фото 2
    Сдаётся в аренду современное помещение под складские или производственные задачи.Заезд с первой линии.БЕЗ КОМИССИИ ДЛЯ АРЕНДАТОРА- Площадь: 555 кв.м.- Свободная планировка.- Электрическая мощность 100 киловатт- Отопление- Главные преимущества:- Заезд...
    • 1/1 эт.
    350 000 Р
    Агент
    +7 (919) Показать номер
    Посмотреть контакты
    Склад в Тюменская область, Тюменский муниципальный округ, с. Кулаково ... - Фото 1
    Склад в Тюменская область, Тюменский муниципальный округ, с. Кулаково ... - Фото 2
    Сдается в аренду складские, холодильные помещения 100 м2 и 200 м2, на охраняемой территории, за городом (р-н д. Кулаково). Класса АПомещения 103 м2 и 205 м2 Возможность регулировки температуры от 0 до -18; Возможность поддержания температур, как плюсовых,...
    • 1/1 эт.
    360 000 Р
    Агент
    +7 (982) Показать номер
    Посмотреть контакты
    Склад в Сахалинская область, Южно-Сахалинск Украинская ул., 73А (600 ... - Фото 1
    Склад в Сахалинская область, Южно-Сахалинск Украинская ул., 73А (600 ... - Фото 2
    Сдаётся на длительный срок, коммерческое помещение под офисы, либо под склады, свободной планировки, общая площадь от200 до 600кв, санузл, Чистое с ремонтом с пожарной безопасностью. Помещение теплое, хорошая освещенность, удобный заезд. Центральное водоснабжение....
    • 1/1 эт.
    360 000 Р
    Агент
    +7 (984) Показать номер
    Посмотреть контакты

    Не нашли подходящего объявления?

    Оставьте заявку, и наши риэлторы подберут склад в районе Тюмени

    (0)