272 000 Р 3 440 $ или 2 960

Информация об помещении

1
Этаж

Состояние и оснащение

Количество этажей
2
Развернуть
Агент
+7 (982) 771-71-24
Начать чат с агентом

Торговая площадь в Тюменская область, Тюмень Авторемонтная ул., 12 ...

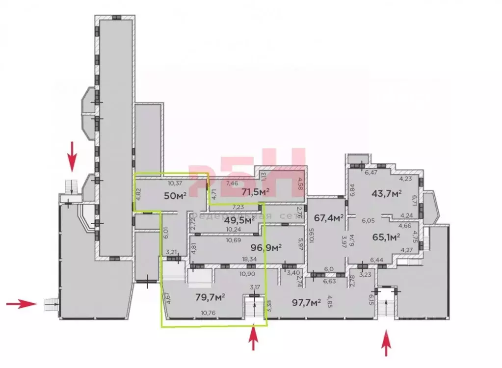
Предлагается в аренду нежилое помещение площадью 340 кв. м. в г. ТюмениБЕЗ КОМИССИИ ДЛЯ АРЕНДАТОРА 1-линия ул. Авторемонтная;1-й этаж, доступ 24/7;площадь торгового зала 130 кв. м, склад 153 кв. м, кабинет, 2 сан-узла, подсобные помещения;есть разгрузка;высокий автомобильный трафик;парковка;в шаговом доступе магазины авто-запчастей, Тюменское ремонтно-техническое предприятие, Дизель-Центр, Урал-Автоцентр, ЕвроАзия-Моторс и др. ;своя котельная, что снижает затраты на отопление.Аргументированный торг при осмотре.Коммунальные платежи в арендную плату не входят, оплачиваются по счетчикам.Подробную информацию уточняйте у наших специалистов._________________________________________________ ____________________Регион Бизнес НедвижимостьКоммерческая недвижимостьБез комиссии для арендаторовАрт.

Читать полностью
    Позвонить Написать
    272 000 Р3 440 $ или 2 960
    Агент
    +7 (982) 771-71-24
    Начать чат с агентом
    Похожие предложения
    Торговая площадь в Тюменская область, Тюмень Олимпийская ул., 11 (232 ... - Фото 1
    Торговая площадь в Тюменская область, Тюмень Олимпийская ул., 11 (232 ... - Фото 2
    Предлагается в аренду свободное помещение 232, 1 кв. м. Восточный округ БЕЗ КОМИССИИ ДЛЯ АРЕНДАТОРОВ - расположено на 1-этаже 1-линии ул. Олимпийская;- высокий пешеходный и автомобильный трафик;- центральный вход с ул. Олимпийская, + разгрузка;-...
    • 1/9 эт.
    278 520 Р
    Агент
    +7 (982) Показать номер
    Посмотреть контакты
    Торговая площадь в Тюменская область, Тюмень ул. 50 лет Октября, 26 ... - Фото 1
    Торговая площадь в Тюменская область, Тюмень ул. 50 лет Октября, 26 ... - Фото 2
    Предлагается в аренду торговое помещение 175, 6 кв. м в ТюмениБЕЗ КОМИССИИ ДЛЯ АРЕНДАТОРА - активный пешеходный трафик, рядом остановка;- 1-линия, 1-этаж, отдельный вход, доступ 24/7;- запасной выход;- выполнен качественный ремонт;- 40 кВт.Торговое...
    • 1/9 эт.
    263 400 Р
    Агент
    +7 (982) Показать номер
    Посмотреть контакты
    Торговая площадь в Ярославская область, Ярославль ул. Калинина, 45 ... - Фото 1
    Торговая площадь в Ярославская область, Ярославль ул. Калинина, 45 ... - Фото 2
    Арт.. Арендуйте помещения в новом ТЦ Калина по адресу: г. Ярославль, ул. Калинина, д. 45. Общая площадь ТЦ 2 670 кв. м. , с коммерческой площадью 1 868 кв. м. ТЦ УЖЕ РАБОТАЕТ Мы предлагаем вам уникальные возможности: -Внутренняя перепланировка...
    • 1/1 эт.
    280 000 Р
    Агент
    +7 (936) Показать номер
    Посмотреть контакты
    Аренда торгового помещения, м. Алексеевская, Мира пр-кт. - Фото 1
    Аренда торгового помещения, м. Алексеевская, Мира пр-кт. - Фото 2
    Аренда торгового помещения, м. Алексеевская, Мира пр-кт. - Фото 3
    Аренда торгового помещения, м. Алексеевская, Мира пр-кт. - Фото 4
    Аренда торгового помещения, м. Алексеевская, Мира пр-кт. - Фото 5
    Аренда торгового помещения, м. Алексеевская, Мира пр-кт. - Фото 6
    Аренда торгового помещения, м. Алексеевская, Мира пр-кт. - Фото 7
    общая площадь 13.7м², реализуемая площадь 13.7м²

    Аренда торгового помещения на 1-й линии проспекта Мира. Street-retail, от метро Алексеевская 1 минута пешком. Помещение площадью 13,7 кв.м (блок №1 на плане) расположено на 1-м этаже жилого 9-ти этажного дома. Планировка — открытая, все городские инженерные...
    • 13.7 м²
    • 1/9 эт.
    300 000 Р /в месяц
    Агент
    +7 (903) Показать номер
    Посмотреть контакты
    Торговая площадь в Московская область, Мытищи пер. 1-й Стрелковый, 5 ... - Фото 1
    Торговая площадь в Московская область, Мытищи пер. 1-й Стрелковый, 5 ... - Фото 2
    Арт.Сдается помещение на 1 этаже в крупном жилом комплексе. ЖК заселен. -витринное остекление -отдельный вход с пешеходной аллеи-рядом продуктовый магазин Пятерочка -свободная планировка-мощность 23кВт, с возможностью увеличения-наличие сетевых арендаторов...
    • 1/16 эт.
    275 000 Р
    Агент
    +7 (923) Показать номер
    Посмотреть контакты

    Не нашли подходящего объявления?

    Оставьте заявку, и наши риэлторы подберут торговое помещение в районе Тюмени

    (0)