Россия, Тюменская область, Тюмень, улица Московский Тракт, 161
39 000 Р 478 $ или 412

Состояние и оснащение

Количество этажей
10
Развернуть
Агент
+7 (988) 980-11-19
Начать чат с агентом

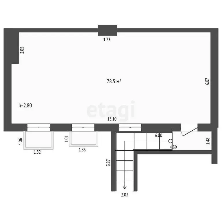
Торговая площадь (78.5 м)

Сдается цокольное коммерческое помещение универсального назначения, расположенное на первой линии с отличной видимостью и доступностью. Высокий трафик обеспечен как за счет автомобилистов с объездной дороги, так и благодаря пешеходам, использующим ближайший подземный переход. Для бизнеса, зависящего от потока клиентов или удобной логистики, это ключевое преимущество.Прилегающая территория оборудована просторной парковкой и специальной площадкой для погрузочно-разгрузочных работ, что исключает типичные проблемы с парковкой и доставкой. Объект имеет отдельный вход, естественное освещение через окно и полностью подготовлен для эксплуатации: подведены центральное отопление и электричество. Дополнительным полезным объемом служит холодное помещение площадью 12 м, не входящее в общий метраж. Помещение используется как сухой склад, но идеально подойдет для сауны, фитнес-клуба, квест-комнаты или иного формата коммерческой деятельности. Рассматривается вариант сдачи вместе с коммерческим помещением на первом этаже или отдельно. Показ в удобное для вас время. Звоните ОБРАТИТЕ ВНИМАНИЕ АРЕНДА КОММЕРЧЕСКОЙ НЕДВИЖИМОСТИ ЧЕРЕЗ КОМПАНИЮ «ЭТАЖИ БЕЗ КОМИССИИ ДЛЯ АРЕНДАТОРА Код пользователя: 53084Номер в базе:

Читать полностью
    Позвонить Написать
    39 000 Р478 $ или 412
    Агент
    +7 (988) 980-11-19
    Начать чат с агентом
    Похожие предложения
    Торговая площадь в Иркутская область, Иркутск ул. Мира, 100 (13 м) - Фото 1
    Торговая площадь в Иркутская область, Иркутск ул. Мира, 100 (13 м) - Фото 2
    Помещение под торговлю разливными напитками Удобное расположение, пешеходный трафик. Окно, металлическая дверь, источник воды, электричество, высота потолков позволяет установить стеллажи. Также подойдёт для продажи овощей и фруктов, табачной продукции....
    • 1/9 эт.
    40 000 Р
    Агент
    +7 (984) Показать номер
    Посмотреть контакты
    Торговая площадь в Ульяновская область, Ульяновск ул. Тельмана, 24 ... - Фото 1
    Торговая площадь в Ульяновская область, Ульяновск ул. Тельмана, 24 ... - Фото 2
    ОписаниеПомещение Торговое 113,17 мБЕЗ КОМИССИИ ДЛЯ АРЕНДАТОРА Номер объекта в базе 10596Площадь: 113.17 кв.мЭтаж: 1Этажность: 5Все коммуникации проведеныДоступ в помещение: 24/7Количество входов: 2 отдельный и зона разгрузки Коммунальные платежи: Оплачиваются...
    • 1/5 эт.
    40 000 Р
    Агент
    +7 (917) Показать номер
    Посмотреть контакты
    Торговая площадь в Ульяновская область, Ульяновск ул. 40-летия Победы, ... - Фото 1
    Торговая площадь в Ульяновская область, Ульяновск ул. 40-летия Победы, ... - Фото 2
    Предлагается торговый павильон 40 метров на пешеходном трафике.Реконструкция под арендатора, с витринными окнами (как в соседнем у Хлебницы).Первая линия, большой пешеходный трафик.
    • 1/1 эт.
    40 000 Р
    Агент
    +7 (986) Показать номер
    Посмотреть контакты
    Аренда торгового помещения, м. Технопарк, Лихачёва пр-кт - Фото 1
    Аренда торгового помещения, м. Технопарк, Лихачёва пр-кт - Фото 2
    Аренда торгового помещения, м. Технопарк, Лихачёва пр-кт - Фото 3
    Аренда торгового помещения, м. Технопарк, Лихачёва пр-кт - Фото 4
    Аренда торгового помещения, м. Технопарк, Лихачёва пр-кт - Фото 5
    Аренда торгового помещения, м. Технопарк, Лихачёва пр-кт - Фото 6
    Аренда торгового помещения, м. Технопарк, Лихачёва пр-кт - Фото 7
    Аренда торгового помещения, м. Технопарк, Лихачёва пр-кт - Фото 8
    Аренда торгового помещения, м. Технопарк, Лихачёва пр-кт - Фото 9
    Аренда торгового помещения, м. Технопарк, Лихачёва пр-кт - Фото 10
    общая площадь 140м², реализуемая площадь 140м²

    Аренда помещения свободного назначения в ЖК бизнес класса Nagatino I Land в Даниловском районе, ЮАО. Метро Технопарк в пешей доступности, 7 минут. Общая площадь - 140 м2, 1-й этаж 10-ти этажного жилого дома. Возможна аренда по блокам (115 м2 и 35...
    • 140 м²
    • 1/10 эт.
    450 000 Р /в месяц
    Агент
    +7 (903) Показать номер
    Посмотреть контакты
    Аренда торгового помещения, м. Стрешнево, Большой Волоколамский проезд - Фото 1
    Аренда торгового помещения, м. Стрешнево, Большой Волоколамский проезд - Фото 2
    Аренда торгового помещения, м. Стрешнево, Большой Волоколамский проезд - Фото 3
    Аренда торгового помещения, м. Стрешнево, Большой Волоколамский проезд - Фото 4
    Аренда торгового помещения, м. Стрешнево, Большой Волоколамский проезд - Фото 5
    Аренда торгового помещения, м. Стрешнево, Большой Волоколамский проезд - Фото 6
    Аренда торгового помещения, м. Стрешнево, Большой Волоколамский проезд - Фото 7
    Аренда торгового помещения, м. Стрешнево, Большой Волоколамский проезд - Фото 8
    Аренда торгового помещения, м. Стрешнево, Большой Волоколамский проезд - Фото 9
    Аренда торгового помещения, м. Стрешнево, Большой Волоколамский проезд - Фото 10
    Аренда торгового помещения, м. Стрешнево, Большой Волоколамский проезд - Фото 11
    Аренда торгового помещения, м. Стрешнево, Большой Волоколамский проезд - Фото 12
    общая площадь 67.4м², реализуемая площадь 67.4м²

    Аренда торгового помещения площадью 67,4 м2 (42,8 м2 +24,6 м2 антресоль), расположенного на 1-м этаже в комплексе апартаментов Байрес (на плане - помещение № 2.1 во 2-м корпусе). Панорамное остекление, состояние - без отделки. Помещение имеет отдельный...
    • 67.4 м²
    • 1/18 эт.
    222 400 Р /в месяц
    Агент
    +7 (903) Показать номер
    Посмотреть контакты

    Не нашли подходящего объявления?

    Оставьте заявку, и наши риэлторы подберут торговое помещение в районе Тюмени

    (0)