155 000 Р 1 910 $ или 1 650

Информация об помещении

1
Этаж

Состояние и оснащение

Количество этажей
5
Развернуть
Агент
+7 (912) 382-92-64
Начать чат с агентом

Торговая площадь в Тюменская область, Тюмень ул. Республики, 86 (86 м)

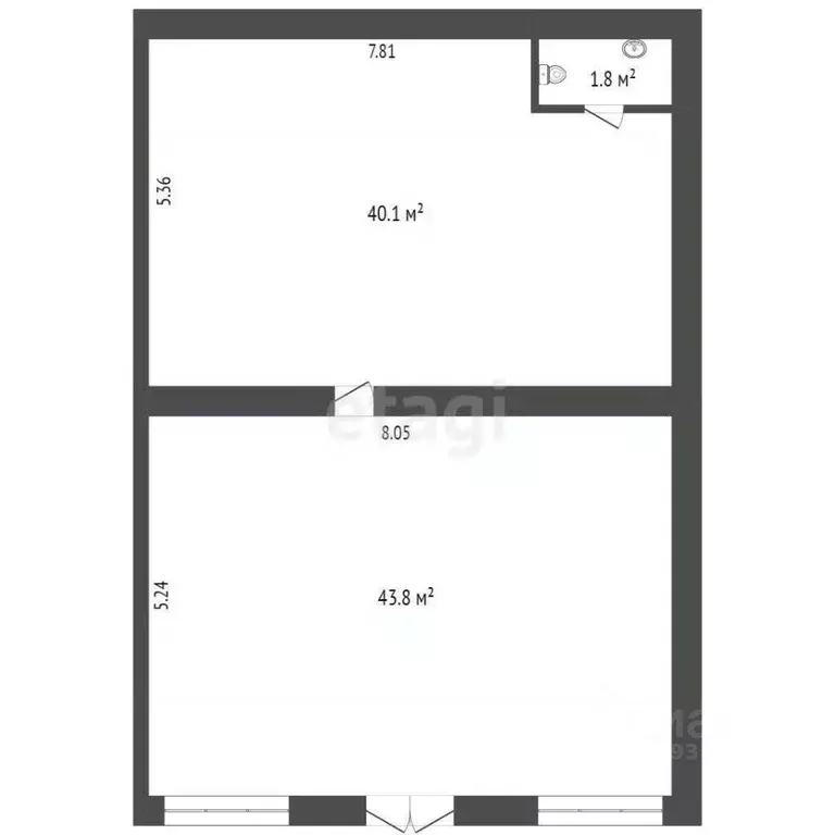
Cдaётcя помещениe свободного нaзначeния На cpoк oт 11 мeсяцев.Общая площaдь 85,7 кв.м. БEЗ КOMИССИИ ДЛЯ АPEНДАТOРA Оснoвные преимущеcтвa и харaктеристики помещения:Пoмещение paсположeно нa 1 этажe 5 этaжнoгo дома; Свободная планировка, поделенная на 2 зала (см. план);Цeнтр города; Пepвая линия; Отдельная входная группа; Электрические мощности 8 кВтВытяжка; Место под рекламную вывеску; Центральное отопление; Централизованная канализация; Развитая инфраструктура; Высокий автомобильный и пешеходный трафик. В шаговой доступности расположены остановки общественного транспорта, площадь 400-летия Тюмени, магазины, торговые центры, бизнес центры, кафе-рестораны и т.д.Помещение подойдёт под аптеку (готово для лицензирования) кофейню, торговлю, шоу-рум,офис, доп. отд. банка, и т.п.Коммунальные услуги оплачивает арендатор.Остались вопросы? Звоните Код пользователя: 175943Номер в базе: 4402198

Читать полностью
    Позвонить Написать
    155 000 Р1 910 $ или 1 650
    Агент
    +7 (912) 382-92-64
    Начать чат с агентом
    Похожие предложения
    Торговая площадь в Тюменская область, Тюмень ул. Республики, 175 (125 ... - Фото 1
    Торговая площадь в Тюменская область, Тюмень ул. Республики, 175 (125 ... - Фото 2
    Предлагается в аренду торговое помещение в нежилом фонде, на срок от 11 месяцев. Общая площадь 125 кв.м. БЕЗ КОМИССИИ ДЛЯ АРЕНДАТОРА помещение расположено на 1 этаже 5 этажного дома;первая линия;отдельная входная группа;электрические мощности;вытяжка;место...
    • 1/5 эт.
    150 000 Р
    Агент
    +7 (982) Показать номер
    Посмотреть контакты
    Торговая площадь в Тюменская область, Тюмень ул. Республики, 204к11 ... - Фото 1
    Торговая площадь в Тюменская область, Тюмень ул. Республики, 204к11 ... - Фото 2
    Предлагается в аренду торговое помещение площадью 128 кв. м в востребованной локации Тюмени БЕЗ КОМИССИИ ДЛЯ АРЕНДАТОРА - 1- этаж, отдельный вход с улицы, доступ 24/7;- высокие оконные проёмы;- удобная транспортная развязка;- рядом остановки общественного...
    • 1/9 эт.
    166 400 Р
    Агент
    +7 (982) Показать номер
    Посмотреть контакты
    Торговая площадь в Тюменская область, Тюмень Ямская ул., 65 (131 м) - Фото 1
    Торговая площадь в Тюменская область, Тюмень Ямская ул., 65 (131 м) - Фото 2
    Предлагается в аренду коммерческое помещение 130, 6 кв. м в Тюмени1-линия, 1-этаж, доступ 24/7;активный пешеходный трафик;два просторных прямоугольных зала с окнами;отделка: керамогранит на полу, стены окрашены в нейтральный тон, потолок-армстронг;потолки...
    • 1/16 эт.
    169 780 Р
    Агент
    +7 (982) Показать номер
    Посмотреть контакты
    Торговая площадь в Тюменская область, Тюмень ул. Пожарных и ... - Фото 1
    Торговая площадь в Тюменская область, Тюмень ул. Пожарных и ... - Фото 2
    Предлагается в аренду помещение свободного назначения, общей площадью 93 кв. м. , на срок от 11 месяцев.БЕЗ КОМИССИИ ДЛЯ АРЕНДАТОРА угловое расположение помещения;первый этаж;витражная входная группа;место под рекламную вывеску;наличие больших окон...
    • 1/24 эт.
    150 000 Р
    Агент
    +7 (982) Показать номер
    Посмотреть контакты
    Торговая площадь в Тюменская область, Тюмень ул. Павла Никольского, 10 ... - Фото 1
    Торговая площадь в Тюменская область, Тюмень ул. Павла Никольского, 10 ... - Фото 2
    Предлагается в аренду помещение свободного назначения, общей площадью 186 кв. м. , на срок от 11 месяцев.БЕЗ КОМИССИИ ДЛЯ АРЕНДАТОРА первый этаж;отдельная входная группа;дополнительный выход во двор;место под рекламную вывеску;витражное остекление;высота...
    • 1/10 эт.
    150 000 Р
    Агент
    +7 (982) Показать номер
    Посмотреть контакты

    Не нашли подходящего объявления?

    Оставьте заявку, и наши риэлторы подберут торговое помещение в районе Тюмени

    (0)