6 000 000 Р 73 870 $ или 63 940

Информация о коттедже

63 м2
Площадь
1
Этажность
7 cоток
Участок

Дополнительная информация

Дом продаётся вместе с участком
есть
Развернуть
Агент
+7 (919) 931-40-48
Начать чат с агентом

Дом в Тюменская область, Тюменский муниципальный округ, с. Борки ул. ...

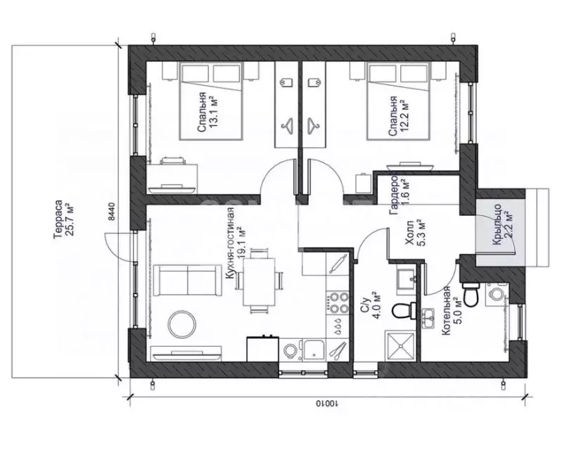
Предлагаем вашему вниманию ПОДРЯД + земельный участок 7,5 сот. с возможностью покупки по льготным ипотечным программам БЕЗ ПВ - эксклюзивное предложение И это еще не все - предложение БЕЗ КОМИССИИ ДЛЯ ПОКУПАТЕЛЯ Отделка White Box 6.000.000Отделка Теплый контур 5.350.000Можно добавить террасу за дополнительную платуО ЛОКАЦИИ:Близость к Тюмени: Село Борки расположено всего в ~15 км к югу от центра Тюмени (по Ялуторовскому тракту), что обеспечивает быструю доступность города (ориентировочно 15-25 минут на автомобиле).Развитая инфраструктура села: Борки достаточно крупное и развитое село с необходимой инфраструктурой: магазины, школа, детский сад, ФАП, общественный транспорт. Позволяет жить за городом без полной изоляции.Транспортная доступность: Удобный выезд на Ялуторовский тракт (Р402), связывающий с Тюменью, Ялуторовском и другими населенными пунктами.Загородная атмосфера: Тишина, свежий воздух, возможность ведения подсобного хозяйства.О ДОМЕ:Кухня-Гостиная: 20м (просторная совмещенная зона для приготовления пищи, отдыха и приема гостей).Спальни: 2 изолированные комнаты по 12м каждая (достаточный размер для комфортного размещения).Прихожая: 7м (включая входную зону).Санузел: Совмещенный (ванна/душ, унитаз, раковина - размер не указан, но логично входит в план).Котельная: 4.5м (отдельное техническое помещение).Вход: Тамбур/зона входа 9.4м (предположительно, включает крыльцо или небольшой холодный тамбур для сохранения тепла).Инженерия и Комплектация (Премиальное оснащение):Отопление:Электрический котел.Накопительный водонагревательный бойлер (обеспечивает ГВС).Комбинированная система отопления:Водяные теплые полы по ВСЕЙ площади дома (максимальный комфорт).Радиаторы отопления дополнительно установлены в жилых комнатах (спальнях).Вентиляция: Приточные клапаны смонтированы в КАЖДОЙ комнате (гарантирует постоянный приток свежего воздуха без сквозняков).Водоснабжение: Собственная скважина (автономное водоснабжение).Канализация: Собственный септик (автономная очистка стоков).Котельная: Полностью укомплектована указанным оборудованием и готова к эксплуатации.Высота потолков: 3 метра (создает ощущение простора и комфорта).Состояние: Строительство под ключ по договору подряда. Дом сдается с чистовой отделкой, готовый к заселению ( заезжай и живи , под тапочки ).В качестве ПВ можно использовать Мат.капМЫ ГАРАНТИРУЕМ ФИНАНСОВУЮ БЕЗОПАСНОСТЬ ДЛЯ НАШИХ КЛИЕНТОВ.Код пользователя: 186324Номер в базе: 9250791

Читать полностью

    Для того, чтобы купить 1-этажный коттедж по адресу: Борки, Мехряковская улица, позвоните по телефону +7 (919) 931-40-48. Торопитесь! Объявление №50016501282 о продаже одноэтажного коттеджа опубликовано 28 октября 2025.

    Позвонить Написать
    6 000 000 Р73 870 $ или 63 940
    Агент
    +7 (919) 931-40-48
    Начать чат с агентом
    Похожие предложения
    Дом в Борки, Филиновская улица (70 м) - Фото 1
    Дом в Борки, Филиновская улица (70 м) - Фото 2
    1 этаж, общая площадь 70м², участок 15 соток

    Дом с участком в 15 минутах от города Этот дом с плодоносящим участком станет идеальным решением для тех, кто мечтает о тишине и единении с природой. На участке уже высажены плодовые деревья и ягодные кустарники: яблони, абрикосы, два сорта малины, ежевика,...
    • 1 эт.
    • 70 м²
    • 15 сот.
    5 900 000 Р
    Агент
    +7 (966) Показать номер
    Посмотреть контакты
    Дом в Тюменская область, Тюменский муниципальный округ, с. Борки  (80 ... - Фото 1
    1 этаж, общая площадь 80м², участок 10 соток

    МЫ ГАРАНТИРУЕМ ФИНАНСОВУЮ БЕЗОПАСНОСТЬ ДЛЯ НАШИХ КЛИЕНТОВ.Код пользователя: 181732Номер в базе: 9803099
    • 1 эт.
    • 80 м²
    • 10 сот.
    5 990 000 Р
    Агент
    +7 (982) Показать номер
    Посмотреть контакты
    Дом в Тюменская область, Тюменский район, Новокаменский кп ул. Сократа ... - Фото 1
    Дом в Тюменская область, Тюменский район, Новокаменский кп ул. Сократа ... - Фото 2
    1 этаж, общая площадь 62м², участок 8 соток

    Арт.Дом за без первоначального взноса Возможно? Да В очень крутой локации по Ирбитскому тракту на участке от 7,5 соток земли.Но, можно построить и на своём участке за 4- (в зависимости от внутренней отделки). Либо улучшенная черновая, либо вайт -...
    • 1 эт.
    • 62 м²
    • 8 сот.
    6 000 000 Р
    Агент
    +7 (982) Показать номер
    Посмотреть контакты
    Дом в Тюменская область, Тюменский район, Целинное СНТ ул. Калиновая, ... - Фото 1
    Дом в Тюменская область, Тюменский район, Целинное СНТ ул. Калиновая, ... - Фото 2
    общая площадь 95м², участок 9 соток

    Дом в окружении сосен со своей уникальной коллекцией деревьев в 10 минутах от города.Дом + Новая баня с террасой + уютная беседка с мангальной зоной и лесом. Для детей есть детская площадка.Ну участке выполнен ландшафтный дизайн, 2 теплицы, множество...
    • 95 м²
    • 9 сот.
    6 000 000 Р
    Агент
    +7 (982) Показать номер
    Посмотреть контакты
    Дом в Тюменская область, Тюменский муниципальный округ, Приозерное СПК ... - Фото 1
    Дом в Тюменская область, Тюменский муниципальный округ, Приозерное СПК ... - Фото 2
    1 этаж, общая площадь 42м², участок 7 соток

    Продается новый жилой дом формата 2+ для круглогодичного проживания.Уютный каркасный дом площадью 42 м с электрическим отоплением, ремонтом и полностью мебелирован.Внутри — две раздельные спальни правильной формы с панорамными окнами, кухня-гостиная,...
    • 1 эт.
    • 42 м²
    • 7 сот.
    5 990 000 Р
    Агент
    +7 (982) Показать номер
    Посмотреть контакты

    Не нашли подходящего объявления?

    Оставьте заявку, и наши риэлторы подберут купить дом в районе

    (0)