Реализация объекта недвижимости приостановлена

Информация о коттедже

100.0 м2
Площадь
1
Этажность
8.0 cоток
Участок

Дополнительная информация

Дом продаётся вместе с участком
есть
Развернуть

Дом в Тюменская область, Тюменский район, д. Елань 14 (100 м)

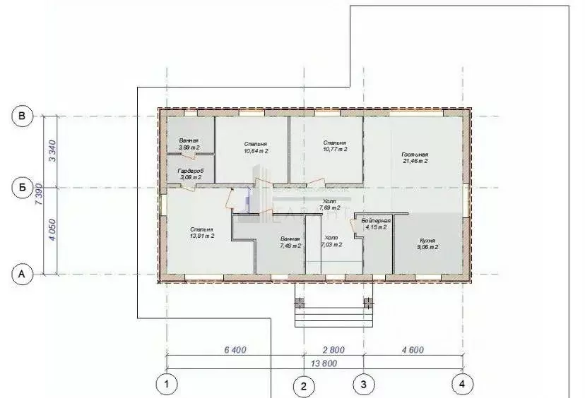
Продается уютный дом в живописном поселке д. Елань, расположенном в Тюменском районе Тюменской области. Этот объект с юридическим статусом ИЖС станет идеальным местом для вашей семьи. Участок площадью 8 соток уже разработан, а сам дом, общей площадью 100 м и жилой площадью 45 м, ждет своего нового владельца. Строительство завершится в 2025 году, а готовность объекта позволяет вам самостоятельно выбрать отделку на ваш вкус. Планировка дома включает три комфортные комнаты, просторную кухню площадью 21,46 м, где можно воплотить любые кулинарные фантазии, а также уютные зоны для отдыха. Фундамент выполнен из железобетонной монолитной плиты с подготовкой и гидроизоляцией, что обеспечивает долговечность и надежность конструкции. Стены дома сложены из газобетонных блоков, что гарантирует отличные тепло- и звукоизоляционные характеристики. Благодаря умному проектированию и современным технологиям, дом оснащен системой теплых полов, электроотоплением и водоснабжением от буровой скважины с кессоном. Расположение дома обеспечивает отличную возможность для комфортной жизни. В расположенном неподалеку поселке Перевалово действуют школа, дошкольные учреждения, а также фельдшерско-акушерский пункт. Дети из близлежащих населенных пунктов имеют возможность посещать школу на автобусе. Кроме того, организован подвоз пациентов в Успенскую участковую больницу, что добавляет уверенности в доступности медицинских услуг. Такие дополнения, как антисептирование пиломатериалов, качественные входные двери с терморазрывом и окна с тройным остеклением, делают дом не только красивым, но и энергоэффективным. Укажите свои пожелания по отделке, и данный дом станет вашим идеальным уголком уюта и спокойствия Не упустите возможность приобрести этот замечательный дом в д. Елань. Звоните сейчас, чтобы обсудить детали и организовать просмотр

Читать полностью

    Реализация объекта недвижимости приостановлена

    Не нашли подходящего объявления?

    Оставьте заявку, и наши риэлторы подберут купить дом в районе Елани

    (0)