8 500 000 Р 105 000 $ или 90 640

Информация о коттедже

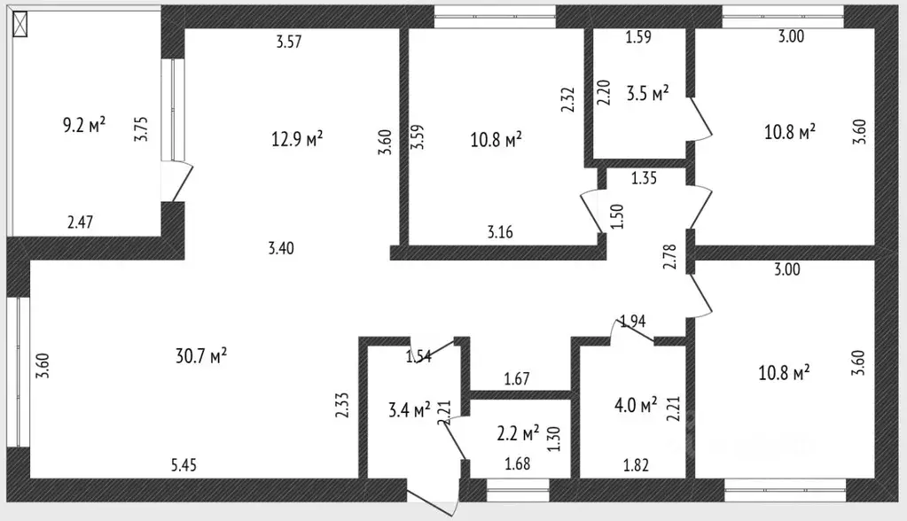
97 м2
Площадь
1
Этажность
7 cоток
Участок

Дополнительная информация

Дом продаётся вместе с участком
есть
Развернуть
Агент
+7 (982) 772-26-49
Начать чат с агентом

Коттедж в Тюменская область, Тюменский муниципальный округ, с. ...

Продам отличный дом с качественным ремонтом в живописном селе Перевалово Дом площадью 97,9 квадратных метра расположен на 7,5 сотках земли.Один собственник, без обременения ОБМЕН на однокомнатную квартиру с вашей доплатой Этот дом станет идеальным местом для вашего загородного отдыха и комфортной жизни Благодаря качественному ремонту и стильному дизайну вы сразу почувствуете себя как дома.Просторная кухня-гостиная, 2 спальные комнаты и современный санузел.В доме есть терраса, тёплый пол, скважина, канализация, а также качественные окна и стеклопакеты, которые обеспечат вам комфорт и уют. Газ на границе участка. Wi-Fi, телевидение.Развитая инфраструктура района обеспечит вас всем необходимым. Недалеко от дома находятся школа, детский сад, магазины и остановка городского автобуса. Кроме того, рядом с домом есть лес и водоём, где можно насладиться отдыхом на природе Приобретая этот дом, вы получите не только качественное жильё, но и возможность наслаждаться спокойствием загородной жизни. Вы сможете отдыхать на свежем воздухе, заниматься активными видами спорта и улучшать своё здоровье.Звоните или пишите в чат Организую показ дома и быстрый выход на безопасную сделку Дополнительно оплачивается комиссия с покупателя. Номер объекта: 1248811

Читать полностью

    Для того, чтобы купить 1-этажный коттедж по адресу: Перевалово, Васильевская улица, 16, позвоните по телефону +7 (982) 772-26-49. Торопитесь! Объявление №50016587873 о продаже одноэтажного коттеджа опубликовано Вчера.

    Позвонить Написать
    8 500 000 Р105 000 $ или 90 640
    Агент
    +7 (982) 772-26-49
    Начать чат с агентом
    Похожие предложения
    Коттедж в Тюменская область, Тюменский муниципальный округ, с. ... - Фото 1
    Коттедж в Тюменская область, Тюменский муниципальный округ, с. ... - Фото 2
    1 этаж, общая площадь 102м², участок 6 соток

    ГОТОВЫЙ ДОМ 2025 ГОДА В КП РОДНИКИ Село Перевалово • 15 минут до Тюмени • Экологичный район Конструкция и коммуникации:Стены: пеноблок Поревит 300 минвата 50 ммФундамент: плита на винтовых сваяхКровля: мягкая черепица с утеплением 200 ммФасад: штукатурка...
    • 1 эт.
    • 102 м²
    • 6 сот.
    8 400 000 Р
    Агент
    +7 (981) Показать номер
    Посмотреть контакты
    Коттедж в Тюменская область, Тюменский муниципальный округ, с. ... - Фото 1
    Коттедж в Тюменская область, Тюменский муниципальный округ, с. ... - Фото 2
    1 этаж, общая площадь 125м², участок 12 соток

    Продается большой уютный дом в КП Радужный, п. Перевалово на Московском тракте Ваш идеальный семейный дом с выгодной СЕМЕЙНОЙ 6 Преимущества дома:- Просторный дом 3 с полноценными 3 спальнями и большой кухней-гостиной 32 м- Общая площадь 124,9 м на...
    • 1 эт.
    • 125 м²
    • 12 сот.
    8 500 000 Р
    Агент
    +7 (982) Показать номер
    Посмотреть контакты
    Дом в Тюменская область, Тюменский муниципальный округ, с. Перевалово ... - Фото 1
    Дом в Тюменская область, Тюменский муниципальный округ, с. Перевалово ... - Фото 2
    1 этаж, общая площадь 98м², участок 9 соток

    Уважаемые покупатели Продам дом в с. Перевалова. В доме 3 комнаты + большая кухня-гостиная, гардеробная и 2 сан узла.Рядом красивая природа поле, лес.В поселке есть вся инфраструктура (школа, детский сад, круглосуточная пятерочка и тд).Отопление от...
    • 1 эт.
    • 98 м²
    • 9 сот.
    8 450 000 Р
    Агент
    +7 (912) Показать номер
    Посмотреть контакты
    Дом в Тюменская область, Тюменский муниципальный округ, с. Перевалово, ... - Фото 1
    Дом в Тюменская область, Тюменский муниципальный округ, с. Перевалово, ... - Фото 2
    общая площадь 90м², участок 7 соток

    Продаётся уютный одноэтажный дом площадью 90 м на участке 7 соток, расположенный всего в 20 км от города. В доме выполнен дизайнерский ремонт с использованием качественной сантехники и материалов, по всему дому смонтированы тёплые полы, что обеспечивает...
    • 90 м²
    • 7 сот.
    8 500 000 Р
    Агент
    +7 (919) Показать номер
    Посмотреть контакты
    Дом в Тюменская область, Тюменский муниципальный округ, с. Перевалово ... - Фото 1
    Дом в Тюменская область, Тюменский муниципальный округ, с. Перевалово ... - Фото 2
    общая площадь 125м², участок 6 соток

    Качественный дом, в предчистовой отделке, три отдельных спальни и просторная кухня гостиная с панорамным выходом на большую террасу 8м2.По всему дому теплый пол, потолки 3,2м,сделаны откосы, подоконники. Установлен забор, септик переливной 6 кубов, скважина....
    • 125 м²
    • 6 сот.
    8 500 000 Р
    Агент
    +7 (912) Показать номер
    Посмотреть контакты

    Не нашли подходящего объявления?

    Оставьте заявку, и наши риэлторы подберут купить дом в районе Перевалово

    (0)