Реализация объекта недвижимости приостановлена

Информация о квартире

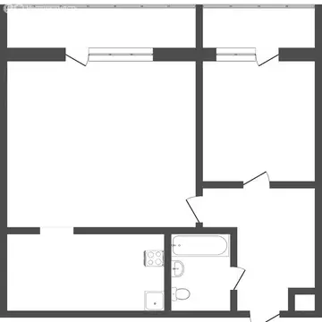
57.0 м2
Площадь
50.0 м2
Жилая
6.0 м2
Кухня
3
Комнаты
3
Этаж
3
Этажность
Развернуть

3-комнатная квартира: Ялуторовск, улица Карбышева, 10 (57.3 м)

Трехкомнатная квартира площадью 57.3 кв.м расположена на третьем этаже кирпичного трехэтажного дома в тихой зальной части Ялуторовска. Планировка включает три изолированные комнаты, раздельный санузел и застекленный балкон. Состояние квартиры предполагает необходимость косметического ремонта, что предоставляет новому владельцу возможность реализовать индивидуальные дизайнерские решения без необходимости проведения капитальных работ. При продаже остается функциональная мебель и бытовая техника, позволяя использовать объект для проживания сразу после завершения отделочных работ. Ключевым преимуществом является развитая инфраструктура в шаговой доступности: остановки общественного транспорта с маршрутами во все районы города, продуктовые магазины, детский сад и детская площадка. Асфальтированная дорога и спокойная внутридворовая территория обеспечивают комфортное проживание. Для заинтересованных покупателей возможен обсудимый торг. Код пользователя: 194928Номер в базе:

Читать полностью

    Реализация объекта недвижимости приостановлена

    Не нашли подходящего объявления?

    Оставьте заявку, и наши риэлторы подберут квартиру в районе Ялуторовска

    (0)