253 000 000 Р 3 277 700 $ или 2 758 700

Информация об помещении

1
Этаж

Состояние и оснащение

Количество этажей
4
Развернуть
Агент
+7 (982) 983-76-21
Начать чат с агентом

Помещение свободного назначения в Тюменская область, Тобольск ...

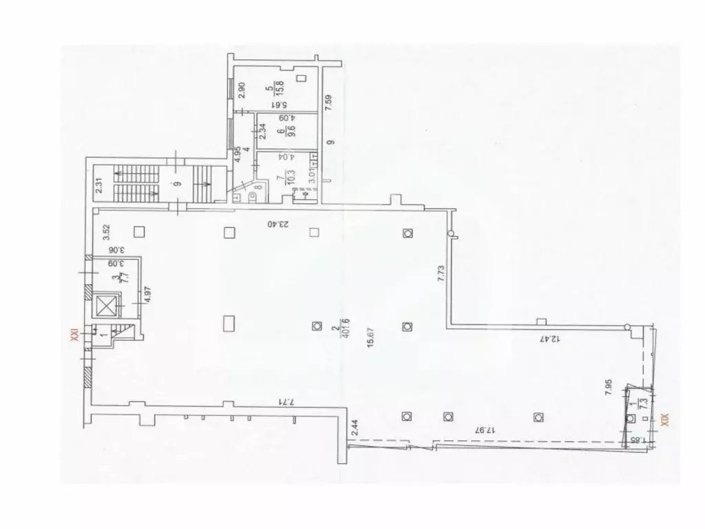
Отдельно стоящее четырехэтажное здание общей площадью 1250 кв. м расположено на улице Октябрьской в исторической части Тобольска. Объект находится на первой линии одной из центральных улиц с интенсивным пешеходным и автомобильным трафиком, непосредственно на туристическом маршруте, что обеспечивает постоянный потребительский поток и высокий потенциал для бизнеса. Здание передается без внутренней отделки, что позволяет новому собственнику реализовать индивидуальный проект планировки и дизайна в соответствии с конкретными задачами. Помещения различной площади подойдут как для солидных компаний, так и для небольших организаций, предоставляя возможность размещения офисов, торговых точек или объектов сервиса. Местоположение характеризуется развитой инфраструктурой и транспортной доступностью. Объект имеет оформленное право собственности, что гарантирует юридическую чистоту. Для получения дополнительной информации и организации просмотра звоните.

Читать полностью
    Позвонить Написать
    253 000 000 Р3 277 700 $ или 2 758 700
    Агент
    +7 (982) 983-76-21
    Начать чат с агентом
    Похожие предложения
    Помещение свободного назначения в Тюменская область, Тюмень Фабричная ... - Фото 1
    Помещение свободного назначения в Тюменская область, Тюмень Фабричная ... - Фото 2
    Без комисии для покупателя Продается офисное помещение площадью 1466,6 м в современном деловом центре Тюмени, представляющее собой готовый инвестиционный актив с гарантированным пассивным доходом. Объект сдан в долгосрочную аренду федеральной образовательной...
    • 2/2 эт.
    260 000 000 Р
    Агент
    +7 (912) Показать номер
    Посмотреть контакты
    Помещение свободного назначения в Тюменская область, Тюмень ул. ... - Фото 1
    Помещение свободного назначения в Тюменская область, Тюмень ул. ... - Фото 2
    Продажа коммерческого здания по улице Республики 252: первая линия , 4 этажа, 3030 кв метров. В данный момент свободно. Ранее использовалось под фитнес, сауны, банкетный зал и т.п. Есть вместительная парковка. Земельный участок 40 соток в собственности....
    • 4/4 эт.
    250 000 000 Р
    Агент
    +7 (982) Показать номер
    Посмотреть контакты
    Помещение свободного назначения в Тюменская область, Тюмень ул. ... - Фото 1
    Помещение свободного назначения в Тюменская область, Тюмень ул. ... - Фото 2
    В продаже здание 7 этаже, площадью - 21 000 кВ.м на первой линии по улице федюнинского и собственный участок 1,2 гектара земли. Здание было построено под паркинг, но не дошло до полной реализации. На данный момент можно сделать реконструкцию под любую...
    • 1/7 эт.
    250 000 000 Р
    Агент
    +7 (982) Показать номер
    Посмотреть контакты
    Помещение свободного назначения в Москва Щелковское ш., 79К1 (1065 м) - Фото 1
    Помещение свободного назначения в Москва Щелковское ш., 79К1 (1065 м) - Фото 2
    643955-gab . Предлагаем торговое помещение формата Street Retail с сетевыми арендаторами Магнит и Яндекс.Лавка, площадью 1064.7 кв. м., расположенное в встроенно-пристроенной части жилого дома.Преимущества объекта:-пешая доступность от станции метро ...
    • 1/9 эт.
    246 650 000 Р
    Агент
    +7 (938) Показать номер
    Посмотреть контакты
    Помещение свободного назначения в Москва ш. Энтузиастов, 30 (1962 м) - Фото 1
    Помещение свободного назначения в Москва ш. Энтузиастов, 30 (1962 м) - Фото 2
    645937-gab . Предлагаем отдельно стоящее здание с арендаторами Чайхана Манас | Хостел, площадью 1 962.4 кв. м. Подвал, 1,2 этаж. Без комиссии для покупателя.Преимущества объекта:-первая линия Шоссе Энтузиастов;-пешая доступность от станции метро Авиамоторная...
    • 1/3 эт.
    250 000 000 Р
    Агент
    +7 (938) Показать номер
    Посмотреть контакты

    Не нашли подходящего объявления?

    Оставьте заявку, и наши риэлторы подберут псн в районе Тобольска

    (0)