Реализация объекта недвижимости приостановлена

Информация о коттедже

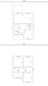
152.0 м2
Площадь
2
Этажность
7.0 cоток
Участок

Дополнительная информация

Дом продаётся вместе с участком
есть
Развернуть

Дом в Тюменская область, Тюмень Самотлорская ул. (152 м)

Готовый коттедж,( возможно включить современный ремонт от подрядчика)район ММС, ШКОЛА в шаговой доступности Пройдём по семейной ипотеке по 6 Отделка White box считается промежуточным звеном между черновой и чистовой отделкой, второе название предчистовые работы. Все коммуникации в доме (электричество, газ, водопровод, канализация, теплый пол по всему дому).Просторная терраса будет очень уютным местом на вашем участке Вокруг только каттеджная застройка НОВАЯ ШКОЛА В ШАГОВОЙ ДОСТУПНОСТИ Вся инфраструктура имеется (магазины, таверни, остановочные комплексы. Коттедж абсолютно новый - добротно построен в 2023 году , пятикомнатный, отлично подойдет для большой дружной семьи или под сдачу в аренду. Месторасположение черта города, до центра 7 минут на авто.Подрядчик делает хороший ремонт на любой вкус, и кошелёк Успевайте купить по хорошей цене.Подходит по семейной ипотеке.Звоните прямо сейчас Код пользователя: 62320Номер в базе: 1376885

Читать полностью

    Реализация объекта недвижимости приостановлена

    Не нашли подходящего объявления?

    Оставьте заявку, и наши риэлторы подберут купить дом в районе Тюмени

    (0)