Реализация объекта недвижимости приостановлена

Информация о квартире

51.0 м2
Площадь
22.0 м2
Жилая
15.0 м2
Кухня
2
Комнаты
3
Этаж
16
Этажность
Развернуть

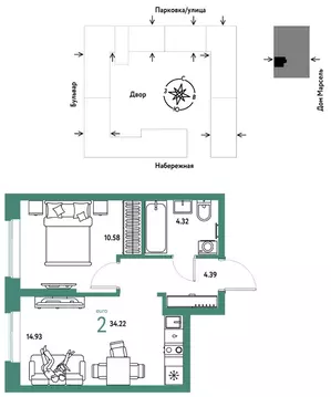
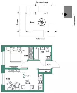
2-комнатная квартира: Тюмень, Ленинский округ (51.1 м)

Apт.2522658. Просторная 2-комн. квартира с предчистовой отделкой в ЖК Мириады на 3 этаже. Общая площадь: 51.1 кв.м., жилая: 22.8 кв.м., площадь просторной кухни-столовой: 15.9 кв.м. Комнаты изолированные, все окна выходят на одну сторону. В квартире один балкон, один совмещенный санузел. Высота потолков 2.7 м. Дом монолитный, многоподъездный, переменной этажности, от 14 до 16 этажей. Квартира находится в 4-й секции высотой 16 этажей в корпусе ГП-72.102. На этаже 6 квартир. В подъезде 1 пассажирский и 1 грузовой лифт. Окончание строительства - 4 квартал 2025 года. Оформление сделки по договору долевого участия. Вселенная бесконечных историй. Ранее невиданный Тюмени масштаб: территория 240 гектаров им застройки. Мириады – это город масштабных перемен и больших возможностей. Город зеленых рощ и зеркальных озер. Город для работы, учебы и развлечений. Город для детей и их родителей. Город для всех и каждого. Проект расположен в районе Мыс рядом с ТРЦ «Тюмень Сити Молл в границах улицы Тимофея Чаркова, Тобольского тракта и объездной дороги. Срок полного освоения территории - до 2034 года.

Читать полностью

    Реализация объекта недвижимости приостановлена

    Не нашли подходящего объявления?

    Оставьте заявку, и наши риэлторы подберут квартиру в новостройке в районе Тюмени

    (0)