Россия, Тюменская область, Тюмень, улица Первооткрывателей, 10

Реализация объекта недвижимости приостановлена

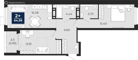
Информация о квартире

37.0 м2
Площадь
9.0 м2
Жилая
студия
Комнат
11
Этаж
11
Этажность
Развернуть

Квартира-студия: Тюмень, улица Первооткрывателей, 10 (37.7 м)

В квартире сделан тематический дизайнерский ремонт. Есть все необходимое для сдачи в аренду, также можно переоборудовать для постоянного проживания. Вся мебель и техника, а по желанию даже посуда, остаются при продаже. На стенах обои под покраску, потолок натяжной, пол керамогранит по всей площади. Кухонная зона, варочная панель, чайник, микроволновая печь , холодильник. Зона гостиной, большой удобный диван, журнальный стол, телевизор смарт. Санузел совмещенный, стены пол керамогранит, потолок натяжной с эффектом парения, вся необходимая сантехника, душ, вытяжка. Так же в квартире есть кондиционер. Вся мебель, техника и ремонт новые.Лот №1160394

Читать полностью

    Реализация объекта недвижимости приостановлена

    Не нашли подходящего объявления?

    Оставьте заявку, и наши риэлторы подберут квартиру в районе Тюмени

    (0)