Россия, Тюменская область, Тюмень, Республики 205 жилой комплекс
33 360 000 Р 431 700 $ или 365 400

Информация об помещении

1
Этаж

Состояние и оснащение

Количество этажей
16
Развернуть
Агент
+7 (912) 383-09-33
Начать чат с агентом

Помещение свободного назначения в Тюменская область, Тюмень Республики ...

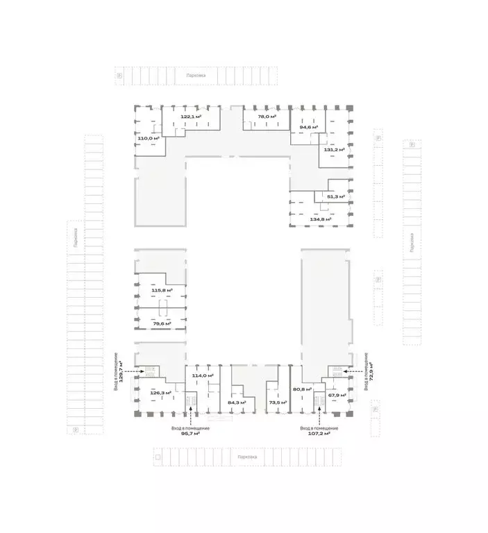
Помещение свободного назначения на 1 этаже, общая площадь 134.77 кв.м., без отделки. Стоимость помещения 33,360,, цена за кв.м 247, 2 квартал 2026 Продается коммерческое помещение в Жилом районе РеспубликичеловекПерспективное количество жителей жилого района 35 000 человекКоличество жителей в шаговой доступности 7,01 ГаПлощадь застройки 447 733 м2Площадь жилья Здесь всегда происходит что-то интересное и всегда есть чем заняться Республики 205 — проект, который перезапустит территорию бывшего завода. Комфортный район с собственным событийным кластером, насыщенный деловой, развлекательной, образовательной, медицинской и детской инфраструктурой. С парками, скверами и бульварами. Это самодостаточное живое пространство, где всегда будет что-то происходить — выставки, фестивали, детские праздники, спортивные соревнования. Следуя концепции города в городе , мы наполним проект разнообразными функциями и сформируем тематические кластеры: культурно-досуговый, гастрономический, спортивный, торговый. Проезды между домами станут полноценными улицами и сформируют проницаемую среду с атмосферой безопасного и комфортного городского центра. На первых этажах домов Республикиазместятся магазины и сервисы: салоны красоты, пункты выдачи заказов, минимаркеты, аптеки. В дополнение к этому — большая зона ритейла с супермаркетом. Она займет два уровня жилого дома, главный фасад которого выходит на улицу Республики. Такое решение подчеркнёт активный характер квартала и его открытость горожанам. Здесь же будет работать многопрофильный медицинский центр. В Республики 205 откроются школы, детские сады и развлека тельный детский центр. Последний займёт 400 м2 в стилобате одного из домов и будет доступен для всех горожан. Технические параметры:Высота потолков от 3 метровОтдельный вход в каждое помещениеПредусмотрено место для информационно-рекламной вывескиВитражное остеклениеИнженерные коммуникации: водоотведение, канализация, вентиляция, электричествоИнвестировать в коммерческие помещения Брусники это обдуманный шаг для открытия собственного дела или создания арендного бизнеса с высокой доходностью. Мы проектируем наши объекты таким образом, чтобы они становились центрами притяжения для жителей района и его гостей. Благодаря удачному расположению и тщательно продуманной инфраструктуре, наши проекты привлекают большой пешеходный трафик. Это можно увидеть на примере наших реализованных проектов, таких как Европейский , Видный и Новин , где бизнесы успешно функционируют и привлекают клиентов.

Читать полностью
    Позвонить Написать
    33 360 000 Р431 700 $ или 365 400
    Агент
    +7 (912) 383-09-33
    Начать чат с агентом
    Похожие предложения в Тюмени
    Помещение свободного назначения в Тюменская область, Тюмень ул. ... - Фото 1
    Помещение свободного назначения в Тюменская область, Тюмень ул. ... - Фото 2
    БЕЗ КОМИССИИ ДЛЯ ПОКУПАТЕЛЯ Продам уникальное помещение общей площадью 217,43 м2. расположено в отдельно стоящем нежилом двухэтажном здании на Ирбитском тракте в современном комплексе Купеческий двор. Преимущества помещения:• Высокий трафик - Ирбитский...
    • 1/2 эт.
    32 614 500 Р
    Агент
    +7 (919) Показать номер
    Посмотреть контакты
    Помещение свободного назначения в Тюменская область, Тюмень Республики ... - Фото 1
    Помещение свободного назначения в Тюменская область, Тюмень Республики ... - Фото 2
    Помещение свободного назначения на 1 этаже, общая площадь 131.22 кв.м., без отделки. Стоимость помещения 32,860,, цена за кв.м 250, 2 квартал 2026 Продается коммерческое помещение в Жилом районе РеспубликичеловекПерспективное количество жителей жилого...
    • 1/16 эт.
    32 860 000 Р
    Агент
    +7 (912) Показать номер
    Посмотреть контакты
    Помещение свободного назначения на 1 этаже, общая площадь 131.22 кв.м., без отделки. Стоимость помещения 32,860,, цена за кв.м 250, 2 квартал 2026 Продается коммерческое помещение в Жилом районе «РеспубликичеловекПерспективное количество жителей жилого...
    • 1/16 эт.
    32 860 000 Р
    Агент
    +7 (958) Показать номер
    Посмотреть контакты
    Помещение свободного назначения в Тюменская область, Тюмень ул. ... - Фото 1
    Помещение свободного назначения в Тюменская область, Тюмень ул. ... - Фото 2
    Отличное предложение в 245 м2 Помещение занимает весь первый этаж. Ранее сдавалось как частный детский сад, очень длительное время. На сегодняшний день свободно. Ремонт требуется полностью , отсюда и будет торг. Два отдельных входа-выхода. Охранная сигнализация....
    • 1/10 эт.
    32 000 000 Р
    Агент
    +7 (912) Показать номер
    Посмотреть контакты
    Помещение свободного назначения в Тюменская область, Тюмень ул. ... - Фото 1
    Помещение свободного назначения в Тюменская область, Тюмень ул. ... - Фото 2
    Отличное предложение в 283 м2 Отдельно стоящее здание На сегодняшний день свободно. Ремонт требуется .Два отдельных входа-выхода. Охранная сигнализация. Находится на второй линии , но с отличным проходным трафиком. Просмотр в любое время по предварительной...
    • 1/2 эт.
    32 000 000 Р
    Агент
    +7 (912) Показать номер
    Посмотреть контакты

    Не нашли подходящего объявления?

    Оставьте заявку, и наши риэлторы подберут псн в районе Тюмени

    (0)