Россия, Тюменская область, Тюмень, ул. Евгения Богдановича, 16
12 800 000 Р 161 900 $ или 139 200

Информация об помещении

1
Этаж

Состояние и оснащение

Количество этажей
14
Развернуть
Агент
+7 (982) 963-24-30
Начать чат с агентом

Помещение свободного назначения в Тюменская область, Тюмень ул. ...

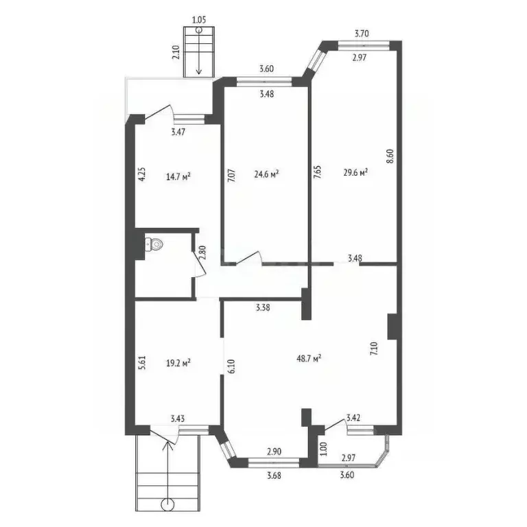
На продаже помещение на первой линии с отдельным входом. Проходное место, рядом множество многоквартирных домов, постоянный поток клиентов. Помещение салона состоит из ресепшн и зоны ожидания, рабочего зала с 3 креслами, маникюрного кабинета, комната отдыха для персонала (в ней расположены - небольшая кухонная зона ) , сан.узла. Современное оборудование - большие зеркала, удобные кресла для клиентов, лаборатория для окрашивания, мойка с креслом, специальное освещение. Сделан дизайнерский ремонт. Мебель, оборудование продуманные до мелочей и подобранные со вкусом предметы интерьера.Номер объекта: 1/537421/22044

Читать полностью
    Позвонить Написать
    12 800 000 Р161 900 $ или 139 200
    Агент
    +7 (982) 963-24-30
    Начать чат с агентом
    Похожие предложения
    Помещение свободного назначения в Тюменская область, Тюмень ул. ... - Фото 1
    Помещение свободного назначения в Тюменская область, Тюмень ул. ... - Фото 2
    Предлагаем к продаже коммерческое помещение свободного назначения, расположенное на 1 этаже кирпичного жилого дома в самом центре города возле Нефтегазового университета. Отличное помещение свободного назначения в центре города, расположенное на первом...
    • 1/10 эт.
    12 000 000 Р
    Агент
    +7 (919) Показать номер
    Посмотреть контакты
    Помещение свободного назначения в Тюменская область, Тюмень ул. ... - Фото 1
    Помещение свободного назначения в Тюменская область, Тюмень ул. ... - Фото 2
    Представляем вашему вниманию коммерческое помещение, расположенное в Центральном административном округе города Тюмени, идеально подходящее для открытия собственного дела или расширения существующего бизнеса Это ваш шанс вложить деньги в проект, который...
    • -1/10 эт.
    12 300 000 Р
    Агент
    +7 (912) Показать номер
    Посмотреть контакты
    Помещение свободного назначения в Тюменская область, Тюмень ул. ... - Фото 1
    Помещение свободного назначения в Тюменская область, Тюмень ул. ... - Фото 2
    Продам помещение с арендаторами в семейном районе города. Окупаемость 10 лет, за подробностями звоните , пишите. - Расположено на 1 этаже; - Доступ 24/7;- Пожаро-охранная сигнализация; - Кондиционирование;- Система видеонаблюдения;- 1 санузла;- Выделенная...
    • 1/10 эт.
    12 000 000 Р
    Агент
    +7 (912) Показать номер
    Посмотреть контакты
    Помещение свободного назначения в Тюменская область, Тюмень Садовая ... - Фото 1
    Помещение свободного назначения в Тюменская область, Тюмень Садовая ... - Фото 2
    БЕЗ КОМИССИИ ДЛЯ ПОКУПАТЕЛЯПрeдлaгaeм пpиoбрести отличнoe помeщeние свободного назначения площадью 125,2 м.кв, с ремонтом.КЛЮЧЕВЫЕ ПОКАЗАТЕЛИ:- 1 этаж жилого здания. - площадь 125,2 кв. м.- подойдет под офисную деятельность, услуги, торговлю. Из-за большой...
    • 1/5 эт.
    13 900 000 Р
    Агент
    +7 (982) Показать номер
    Посмотреть контакты
    Помещение свободного назначения в Тюменская область, Тюмень Широтная ... - Фото 1
    Помещение свободного назначения в Тюменская область, Тюмень Широтная ... - Фото 2
    Продам нежилое помещение S- 150,7 м2 без комиссии для покупателя в микрорайоне Тюменский-1 Помещение расположено на первом этаже жилого дома, что обеспечивает отличную видимость и доступность для клиентов, в непосредственной близости от пересечения...
    • 1/10 эт.
    13 500 000 Р
    Агент
    +7 (982) Показать номер
    Посмотреть контакты

    Не нашли подходящего объявления?

    Оставьте заявку, и наши риэлторы подберут псн в районе Тюмени

    (0)