Россия, Тюменская область, Тюмень, жилой комплекс Мотивы
27 400 000 Р 350 300 $ или 297 500

Информация об помещении

1
Этаж

Состояние и оснащение

Количество этажей
14
Развернуть
Агент
+7 (966) 765-96-58
Начать чат с агентом

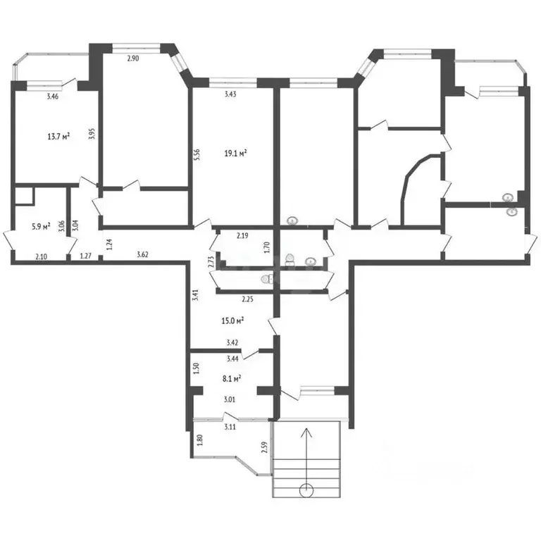
Помещение свободного назначения (151.69 м)

Помещение свободного назначения на 1 этаже, общая площадь 151.69 кв.м., без отделки. Стоимость помещения 27,400,, цена за кв.м 180, В помещении три отдельных входа и высокие потолки 3,6 м. Такой формат позволяет обеспечивать жителей необходимыми товарами и услугами формата «у дома : здесь может быть расположен пункт выдачи заказов, кафе, магазин. Место c интенсивным пешеходным потоком. Выигрышное местоположение. Первый этаж здания с обеспеченным активным пешеходным трафиком. Помещение идеально подходит под разнообразные сервисы формата «у дома , включая пункты выдачи заказов, кафе, магазины и другие виды бизнеса. Огромный рынок потребителей. ЖК «Мотивы состоит из 7 домов на 2126 квартир с общей численностью жителей около 5500 человек. Планируется окружение другими жилыми комплексами и торговыми кварталами. Выгодное вложение. Высокая плотность населения и развитая инфраструктура гарантируют быструю окупаемость денежных средств. Растущая инфраструктура. Строящаяся большая транспортная развязка, планируемое открытие двух детских садов и школы в шаговой доступности – всё необходимое для успешного бизнеса. Гибкость использования. Помещение подходит для ресторанов, кафе, фитнес-студий, салонов красоты, магазинов и ряда других бизнесов. Технические характеристики: Высота потолков: 3,6-4 метра. Электрическая мощность: от 0,2 КВт на м с возможностью увеличения. Индивидуальная вытяжка в каждом помещении. Системы безопасности: гидранты и пожарная сигнализация. Индивидуальные счетчики: на воду, тепло и электричество. Отдельный вход: на улицу или прогулочный бульвар. Панорамное остекление: современный вид и отличная видимость. Размещение вывески: возможность установки на фасаде здания. Комплексная инфраструктура и трафик: плотный поток покупателей, места длякондиционеров, мокрая точка и коммерческие помещения на первом этаже. Инвестируйте в коммерческое помещение в ЖК Мотивы — это обдуманный шаг для открытия собственного дела или создания арендного бизнеса с высокой доходностью. Не упустите возможность вложить в будущее (AQID

Читать полностью
    Позвонить Написать
    27 400 000 Р350 300 $ или 297 500
    Агент
    +7 (966) 765-96-58
    Начать чат с агентом
    Похожие предложения в Тюмени
    Помещение свободного назначения в Тюменская область, Тюмень Широтная ... - Фото 1
    Помещение свободного назначения в Тюменская область, Тюмень Широтная ... - Фото 2
    БЕЗ КОМИССИИ ДЛЯ ПОКУПАТЕЛЯ Продается нежилое помещение свободного назначения общей площадью 190.1 кв метра в мкр. Тюменский 1-й Инфраструктура района развита максимально. Хороший автомобильный и пешеходный трафик Удобная парковка, есть всегда куда...
    • 1/10 эт.
    28 000 000 Р
    Агент
    +7 (919) Показать номер
    Посмотреть контакты
    Помещение свободного назначения в Тюменская область, Тюмень Мысовская ... - Фото 1
    Помещение свободного назначения в Тюменская область, Тюмень Мысовская ... - Фото 2
    Продается коммерческий объект в Заречном микрорайоне на въезде в локацию с высоким пешеходным и автомобильным трафиком, напротив торговой галереи с сетевыми федеральными магазинами.Локация: Максимальная видимость и заметность с удобным доступом для клиентов...
    • 1/3 эт.
    26 000 000 Р
    Агент
    +7 (982) Показать номер
    Посмотреть контакты
    Помещение свободного назначения в Тюменская область, Тюмень ул. ... - Фото 1
    Помещение свободного назначения в Тюменская область, Тюмень ул. ... - Фото 2
    Без комиссии для покупателя с полным юридическим сопровождением Продам помещение свободной планировки площадью 137м2 в ЖК Домашний Основные характеристики помещения:- Общая площадь 137 м2- Витражное остекление;- Удобные подъездные пути (напротив крытой...
    • 1/16 эт.
    26 500 000 Р
    Агент
    +7 (919) Показать номер
    Посмотреть контакты
    Помещение свободного назначения в Тюменская область, Тюмень ... - Фото 1
    Помещение свободного назначения в Тюменская область, Тюмень ... - Фото 2
    Продам помещение в центральной части города.Располагается в цокольном этаже жилого дома.Вытяжные и вентиляционные системы изначально проектировались при строительстве дома.Установлена красивая входная группа.Пожарный выход.Высота потолков от 3.0 до 3.2...
    • -1/10 эт.
    27 500 000 Р
    Агент
    +7 (982) Показать номер
    Посмотреть контакты
    Помещение свободного назначения в Тюменская область, Тюмень проезд ... - Фото 1
    Помещение свободного назначения в Тюменская область, Тюмень проезд ... - Фото 2
    БЕЗ КОМИССИИ ДЛЯ ПОКУПАТЕЛЯ Продается коммерческое помещение свободного назначения общей площадью 194 кв. м, расположенное в районе КПД Отдельно стоящее здание, 2 входа; 1 этаж; Капитальный ремонт; Электрическая мощность- 100 кВт; Высота потолков 3,5...
    • 1/5 эт.
    27 500 000 Р
    Агент
    +7 (912) Показать номер
    Посмотреть контакты

    Не нашли подходящего объявления?

    Оставьте заявку, и наши риэлторы подберут псн в районе Тюмени

    (0)