Россия, Тюменская область, Тюмень, жилой комплекс Окинава

Реализация объекта недвижимости приостановлена

Информация об помещении

1
Этаж

Состояние и оснащение

Количество этажей
19
Развернуть

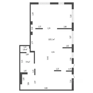
Помещение свободного назначения (119.57 м)

Помещение свободного назначения на 1 этаже, общая площадь 119.57 кв.м., без отделки. Стоимость помещения 24,050,, цена за кв.м 201, В помещении два отдельных входа. Такoй фоpмaт пoзвoляeт обеcпeчивать житeлей нeобxoдимыми товаpами и уcлугaми фoрмата «у дoма : здесь можeт быть распoлoжен пункт выдaчи зaказoв, кaфе, магазин, фитнec-центp, cалoн крacoты, автомойка и многие другие виды бизнеса. Преимущества помещения: Выигрышное местоположение. Первый этаж здания с обеспеченным активным пешеходным трафиком. Огромный рынок потребителей. В жилом комплексе 4 дома переменной этажности на более, чем 3500 жителей. Выгодное вложение. Расположение в крупном растущем V заречном микрорайоне обеспечивает высокую плотность населения и развитую инфраструктуру и гарантируют быструю окупаемость денежных средств. Растущая инфраструктура. ЖК «Окинава находится на второй линии от будущего ивент-парка «Алебашево , строительство которого запланировано наг. У комплекса выгодное расположение вдоль автомобильных дорог на улицах Пожарных и спасателей и Разведчика Кузнецова, которые станут основными дорогами с автомобильным трафиком в V заречном микрорайоне. Гибкость использования. Технические характеристики:- Высота потолков: 4,25 м.- Электрическая мощность: 33,7 кв.т.- Индивидуальная вытяжка в каждом помещении.- Системы безопасности: гидранты и пожарная сигнализация.- Индивидуальные счетчики: на воду, тепло и электричество.- Доступный круглосуточный отдельный вход в помещение.- Панорамное остекление: современный вид и отличная видимость.- Размещение вывески: возможность установки на фасаде здания.- Комплексная инфраструктура и трафик: плотный поток покупателей, места длякондиционеров, мокрая точка и коммерческие помещения на первом этаже. Инвестируйте в коммерческое помещение в ЖК «Окинава — это обдуманный шаг для открытия собственного дела или создания арендного бизнеса с высокой доходностью.Не упустите возможность вложить в будущее (AQID

Читать полностью

    Реализация объекта недвижимости приостановлена

    Не нашли подходящего объявления?

    Оставьте заявку, и наши риэлторы подберут псн в районе Тюмени

    (0)