Россия, Тюменская область, Тюмень, улица Андрея Приказнова, 7
15 860 000 Р 203 800 $ или 173 900

Информация об помещении

1
Этаж

Состояние и оснащение

Количество этажей
14
Развернуть
Агент
+7 (966) 765-96-58
Начать чат с агентом

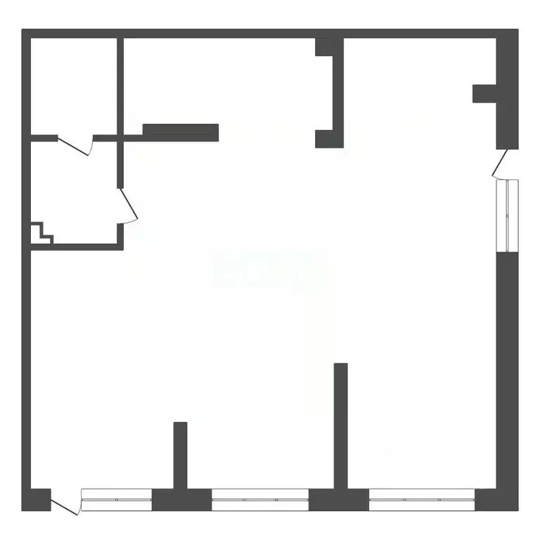
Помещение свободного назначения (87.1 м)

Помещение свободного назначения на 1 этаже, общая площадь 87.1 кв.м., без отделки. Стоимость помещения 15,860,, цена за кв.м 182, В помещении два отдельных входа и высокие потолки 3,9 м. Такой формат позволяет обеспечивать жителей необходимыми товарами и услугами формата «у дома : здесь может быть расположен пункт выдачи заказов, кафе, магазин. Место c интенсивным пешеходным потоком. Выигрышное местоположение. Первый этаж здания с обеспеченным активным пешеходным трафиком. Помещение идеально подходит под разнообразные сервисы формата «у дома , включая пункты выдачи заказов, кафе, магазины и другие виды бизнеса. Огромный рынок потребителей. ЖК «Мотивы состоит из 7 домов на 2126 квартир с общей численностью жителей около 5500 человек. Планируется окружение другими жилыми комплексами и торговыми кварталами. Выгодное вложение. Высокая плотность населения и развитая инфраструктура гарантируют быструю окупаемость денежных средств. Растущая инфраструктура. Строящаяся большая транспортная развязка, планируемое открытие двух детских садов и школы в шаговой доступности – всё необходимое для успешного бизнеса. Гибкость использования. Помещение подходит для ресторанов, кафе, фитнес-студий, салонов красоты, магазинов и ряда других бизнесов. Технические характеристики: Высота потолков: 3,6-4 метра. Электрическая мощность: от 0,2 КВт на м с возможностью увеличения. Индивидуальная вытяжка в каждом помещении. Системы безопасности: гидранты и пожарная сигнализация. Индивидуальные счетчики: на воду, тепло и электричество. Отдельный вход: на улицу или прогулочный бульвар. Панорамное остекление: современный вид и отличная видимость. Размещение вывески: возможность установки на фасаде здания. Комплексная инфраструктура и трафик: плотный поток покупателей, места длякондиционеров, мокрая точка и коммерческие помещения на первом этаже. Инвестируйте в коммерческое помещение в ЖК Мотивы — это обдуманный шаг для открытия собственного дела или создания арендного бизнеса с высокой доходностью. Не упустите возможность вложить в будущее (AQID

Читать полностью
    Позвонить Написать
    15 860 000 Р203 800 $ или 173 900
    Агент
    +7 (966) 765-96-58
    Начать чат с агентом
    Похожие предложения
    Помещение свободного назначения в Тюменская область, Тюмень ул. Андрея ... - Фото 1
    Помещение свободного назначения в Тюменская область, Тюмень ул. Андрея ... - Фото 2
    Помещение свободного назначения на 1 этаже, общая площадь 84.64 кв.м., без отделки. Стоимость помещения 15,490,, цена за кв.м 183, В помещении два отдельных входа. Такой формат позволяет обеспечивать жителей необходимыми товарами и услугами формата...
    • 1/14 эт.
    15 490 000 Р
    Агент
    +7 (982) Показать номер
    Посмотреть контакты
    Помещение свободного назначения в Тюменская область, Тюмень ул. Андрея ... - Фото 1
    Помещение свободного назначения в Тюменская область, Тюмень ул. Андрея ... - Фото 2
    Предлагаем вашему вниманию уникальное коммерческое помещение свободногo назначения в популярном жилом комплексе Мотивы . Идеально подходит для бизнеса площадью 84,2 кв.м. с высокими потолками (4 метра). Расположение на первой линии со стороны живописного...
    • 1/14 эт.
    17 000 000 Р
    Агент
    +7 (912) Показать номер
    Посмотреть контакты
    Помещение свободного назначения на 1 этаже, общая площадь 84.64 кв.м., без отделки. Стоимость помещения 15,490,, цена за кв.м 183, В помещении два отдельных входа. Такой формат позволяет обеспечивать жителей необходимыми товарами и услугами формата...
    • 1/14 эт.
    15 490 000 Р
    Агент
    +7 (966) Показать номер
    Посмотреть контакты
    Помещение свободного назначения (71.3 м) - Фото 1
    Помещение свободного назначения (71.3 м) - Фото 2
    Помещение свободного назначения на 1 этаже, общая площадь 71.3 кв.м., без отделки. Стоимость помещения 15,453,, цена за кв.м 216, Вселенная бесконечных историй. Ранее невиданный Тюмени масштаб: территория 240 гектаров им застройки. Мириады – это город...
    • 1/16 эт.
    15 453 000 Р
    Агент
    +7 (345) Показать номер
    Посмотреть контакты
    Помещение свободного назначения в Тюменская область, Тюмень ... - Фото 1
    Помещение свободного назначения в Тюменская область, Тюмень ... - Фото 2
    Помещение свободного назначения на 1 этаже, общая площадь 83.37 кв.м., без отделки. Стоимость помещения 15,699,, цена за кв.м 188, Подобно знаменитому исследователю, мы чувствуем себя первооткрывателями этой локации. Хотим показать новую суть места,...
    • 1/21 эт.
    15 699 000 Р
    Агент
    +7 (912) Показать номер
    Посмотреть контакты

    Не нашли подходящего объявления?

    Оставьте заявку, и наши риэлторы подберут псн в районе Тюмени

    (0)